Главная Проекты домов Проект двухэтажного дома с большим санузлом на первом этаже, кабинетом, гаражом на один автомобиль, балконом

D5421 Проект двухэтажного дома с большим санузлом на первом этаже, кабинетом, гаражом на один автомобиль, балконом

Сравнить проект В избранное
Проект двухэтажного дома с большим санузлом на первом этаже, кабинетом, гаражом на один автомобиль, балконом / 1
Проект двухэтажного дома с большим санузлом на первом этаже, кабинетом, гаражом на один автомобиль, балконом / 2
Проект двухэтажного дома с большим санузлом на первом этаже, кабинетом, гаражом на один автомобиль, балконом / 3
Проект двухэтажного дома с большим санузлом на первом этаже, кабинетом, гаражом на один автомобиль, балконом / 4
Проект двухэтажного дома с большим санузлом на первом этаже, кабинетом, гаражом на один автомобиль, балконом / 1
Проект двухэтажного дома с большим санузлом на первом этаже, кабинетом, гаражом на один автомобиль, балконом / 2
Проект двухэтажного дома с большим санузлом на первом этаже, кабинетом, гаражом на один автомобиль, балконом / 3
Проект двухэтажного дома с большим санузлом на первом этаже, кабинетом, гаражом на один автомобиль, балконом / 4
D5421
168 м²
Подготовка проекта:
33 рабочих дня
Стоимость проекта
Купить проект
Задайте вопросы по проекту нашему архитектору
8 (800) 200-28-83
Время работы: пн-вс: с 9:00 до 20:00
Задать вопрос по проекту

Технические характеристики
Общие
Материал стен
Кирпич
Общая площадь
168 м²
Жилая площадь
92 м²
Площадь застройки
153.8 м²
Приведенная площадь
168.27 м²
Количество жилых комнат/спален
4
Этажи
2 этажа
Гараж
Нет гаража
Количество машин
1
Подвал / цокольный этаж
Без подвала
Длина дома
13.03 м
Ширина дома
12.03 м
Кровля
Металлочерепица
Облицовка внешних стен
Облицовочный кирпич
Толщина несущих наружных стен
380 мм
Межэтажные перекрытия
Монолитные
Фундамент
Ленточный заглубленный из ФБС
Терраса
Терраса крытая
Дополнительные
Окна
Окна до пола
Камин
Есть
Сауна/баня внутри
Нет
Площадь гостиной
25 м²
Площадь кухни
12.2 м²
Количество санузлов
2
Окно в ванной комнате
Есть
Котельная
Есть
Кабинет
Есть
Балкон / лоджия
Балкон
Длина участка
22.13 м
Ширина участка
22.13 м
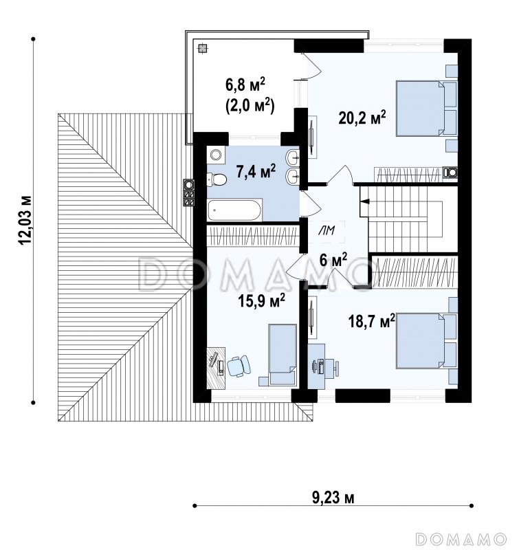
Планы помещений
Описание проекта
Компания Domamo предлагает проект двухэтажного дома с большим санузлом на первом этаже, кабинетом, гаражом на один автомобиль, балконом D5421. Общая площадь - 168 м2, размер - 13.03х12.03 м. Фундамент - ленточный заглубленный из фбс, кровля - металлочерепица, внешняя отделка - облицовочный кирпич. Для заказа проекта или внесения изменений свяжитесь с нами с помощью форм обратной связи на сайте или по телефону +7 (800) 200-28-83.
Категории проекта: для постоянного проживания кирпич современные от 100 до 200 кв.м в европейском стиле с террасой из кирпича с террасой готовые загородные из кирпича двухэтажные из кирпича двухэтажные кирпичные с котельной с котельной кирпичные до 200 кв.м до 200 кв.м загородные с четырехскатной крышей с камином прямоугольные с балконом современные кирпичные Проекты двухэтажных домов с террасой Проекты двухэтажных домов с верандой без гаража с террасой и камином облицованные кирпичом с кабинетом двухэтажные 200 кв м с 4 спальнями двухэтажные от 150 до 200 кв м с балконом и террасой двухэтажные до 180 кв.м двухэтажные с камином двухэтажные с 4 спальнями двухэтажные с балконом двухэтажные с балконом и террасой двухэтажные в современном стиле двухэтажные без гаража современные без гаража современные с окнами в пол современные с террасой современные от 100 до 200 кв. м из клееного бруса без гаража Показать все категории Скрыть категории

Похожие проекты
Состав проекта
Входит в стоимость
Цена, руб. Сроки, дней
Комплект архитектурно-строительных чертежей (АС) Входит в стоимость Готов к отправке
Готово к продаже
Цена, руб. Сроки, дней
Паспорт рабочего проекта 8 000 ₽ 5 рабочих дней в корзину
Инженерные разделы: ВК + ОВ + ЭО 18 050 ₽ Готов к отправке в корзину
Дополнительная копия проекта формата А3 6 500 ₽ 5 рабочих дней в корзину
Электронная копия проекта (скан распечатанной версии) 4 000 ₽ 3 рабочих дня в корзину
Разрабатывается отдельно
Цена, руб. Сроки, дней
Адаптация фундамента (изменение типа фундамента) по запросу 14 рабочих дней
Дизайн интерьера (стоимость от 2200руб. за квад.метр площади) по запросу 30 рабочих дней
Внесение изменений в проект по запросу 20 рабочих дней
Разработка Генплана участка, в масштабе 1:250 7 500 ₽ 15 рабочих дней в корзину
Фэншуй дома 20 000 ₽ 14 рабочих дней в корзину
Фэншуй участка 15 000 ₽ 14 рабочих дней в корзину
Фэншуй полная консультация дом+участок с выездом на объект 100 000 ₽ 30 рабочих дней в корзину
Опции проекта вы можете заказать в корзине при оформлении заказа
Варианты проекта Сравнить все варианты
Избранные проекты
Избранные строители
Отзывы покупателей
Рейтинг покупателей
0 / 5 5 5 1
На основе 1 оценок покупателей
0%
0%
0%
0%
0%
Отзывы о проекте D5421
Отзыв о проекте D5421
Чтобы оставить отзыв, пожалуйста авторизуйтесь.
Подбор строительной компании
Не знаете кому доверить строительство дома? Мы можем помочь! Подберем для вас из сотен наших партнеров несколько компаний с лучшем соотношением цена/качество под конкретно ваш запрос.
Подобрать