Главная Проекты домов Проект загородного дома с кладовой, балконом, тремя светлыми спальнями в мансарде

D5339 Проект загородного дома с кладовой, балконом, тремя светлыми спальнями в мансарде

Сравнить проект В избранное
Технические характеристики
Общие
Материал стен
Газобетон
Общая площадь
165 м²
Жилая площадь
105.1 м²
Площадь застройки
143.1 м²
Приведенная площадь
164.95 м²
Количество жилых комнат/спален
4
Этажи
1 этаж + мансарда
Гараж
Нет гаража
Подвал / цокольный этаж
Без подвала
Длина дома
11.21 м
Ширина дома
10.91 м
Кровля
Металлочерепица
Облицовка внешних стен
Деревянная вагонка
,
Мокрая штукатурка
Толщина несущих наружных стен
375 мм
Межэтажные перекрытия
Монолитные
Фундамент
Ленточный монолитный
Терраса
Терраса открытая
Дополнительные
Окна
Окна до пола
Мансардные окна
Есть
Камин
Есть
Сауна/баня внутри
Нет
Площадь гостиной
31.4 м²
Площадь кухни
9.1 м²
Количество санузлов
2
Окно в ванной комнате
Есть
Хозяйская гардеробная
Есть
Кладовая
2
Балкон / лоджия
Балкон
Длина участка
21.21 м
Ширина участка
16.91 м
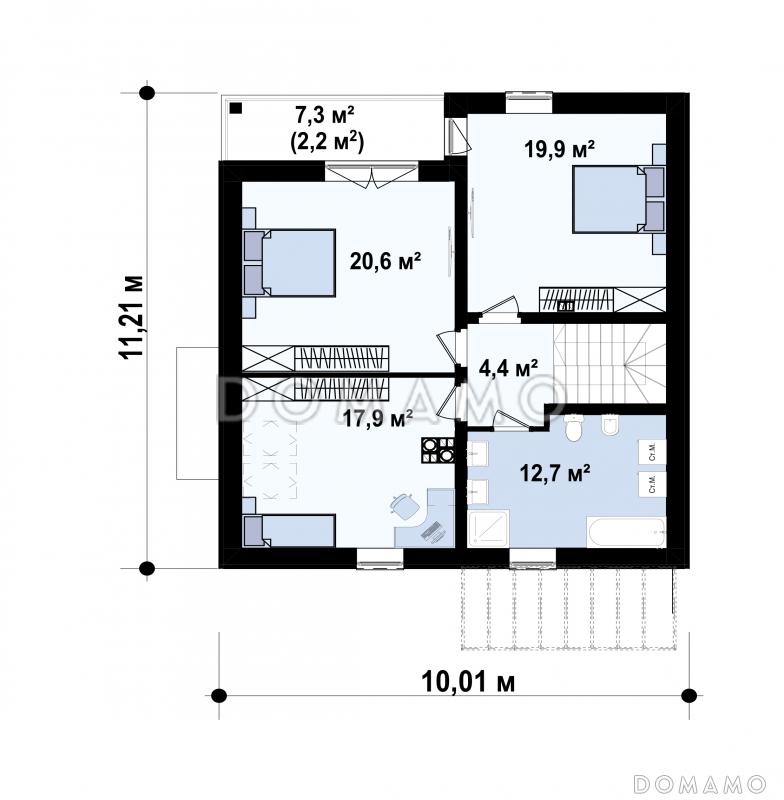
Планы помещений
Описание проекта
Компания Domamo предлагает проект загородного дома с кладовой, балконом, тремя светлыми спальнями в мансарде D5339. Общая площадь - 165 м2, размер - 11.21х10.91 м. Фундамент - ленточный монолитный, кровля - металлочерепица, внешняя отделка - деревянная вагонка мокрая штукатурка. Для заказа проекта или внесения изменений свяжитесь с нами с помощью форм обратной связи на сайте или по телефону +7 (800) 200-28-83.
Категории проекта: с мансардой для постоянного проживания пенобетон современные от 100 до 200 кв.м в европейском стиле с эркером с террасой из пеноблоков с мансардой из газобетона с мансардой и эркером из газобетона с эркером из газобетона готовые из газобетона с мансардой одноэтажные с мансардой одноэтажные из газобетона из газосиликатных блоков до 200 кв.м с двухскатной крышей 9х12 загородные из керамзитобетонных блоков 11х11 с камином с гардеробной прямоугольные с балконом 10х12 из газобетона с террасой с эркером и мансардой из блоков одноэтажные из блоков из блоков с мансардой из блоков с эркером Проекты домов из пеноблоков с эркером из пеноблоков с террасой загородные из газобетона Проекты одноэтажных домов с эркером Проекты одноэтажных домов с террасой Типовые проекты загородных одноэтажных домов без гаража одноэтажные без гаража с террасой и камином одноэтажных из керамзитобетонных блоков одноэтажные с 4 спальнями с мансардой и террасой полутораэтажные 11 на 11 с мансардой с 4 спальнями 9 на 12 с мансардой одноэтажные до 200 кв м 10x12 с мансардой с балконом и террасой из пеноблоков загородные одноэтажные с мансардными окнами с мансардой с камином с мансардой с двухскатной крышей с мансардой современные с мансардой с окнами до пола с мансардой с мансардными окнами с мансардой с балконом с мансардой прямоугольные с мансардой готовые с мансардой для постоянного проживания с мансардой до 200 кв.м одноэтажные из газобетона с террасой одноэтажные из газобетона с мансардой одноэтажные из газобетона с 4 спальнями из газобетона до 200 кв.м из газобетона от 100 до 200 кв.м из газобетона с двухскатной крышей из газобетона современные из газобетона с балконом из газобетона прямоугольные из газобетона готовые из газобетона с камином из газобетона с четырьмя спальнями из газобетона 11х11 из газобетона для постоянного проживания двухэтажные из газобетона без гаража двухэтажные из газобетона с террасой двухэтажные из газобетона с камином двухэтажные из газобетона современные двухэтажные из газобетона с двухскатной крышей двухэтажные из газобетона до 200 кв. м двухэтажные из газобетона без подвала двухэтажные из газобетона с эркером двухэтажные из газобетона с 4 спальнями из газобетона с мансардой современные из газобетона с мансардой с балконом из газобетона с мансардой с террасой из газобетона с мансардой с камином из газобетона с мансардой для постоянного проживания из газобетона с мансардой готовые из газобетона с мансардой с двухскатной крышей из газобетона с мансардой с 4 спальнями из газобетона с мансардой с гардеробной из газобетона с мансардой прямоугольные одноэтажные с мансардой для постоянного проживания одноэтажные с мансардой современные одноэтажные с мансардой с балконом современные без гаража современные с двухскатной крышей современные с окнами в пол современные с террасой современные 11х11 современные от 100 до 200 кв. м европейские 11х11 из пеноблоков в современном стиле из пеноблоков с двухскатной крышей из пеноблоков с окнами до пола из пеноблоков прямоугольные из пеноблоков с балконом из пеноблоков для постоянного проживания из пеноблоков готовые из пеноблоков с камином из пеноблоков 11х11 из пеноблоков от 100 до 200 м2 из пеноблоков с 4 спальнями из клееного бруса без гаража Показать все категории Скрыть категории

Похожие проекты
Состав проекта
Входит в стоимость
Цена, руб. Сроки, дней
Комплект архитектурно-строительных чертежей (АС) Входит в стоимость Готов к отправке
Готово к продаже
Цена, руб. Сроки, дней
Паспорт рабочего проекта 8 000 ₽ 5 рабочих дней в корзину
Инженерные разделы: ВК + ОВ + ЭО 10 325 ₽ Готов к отправке в корзину
Дополнительная копия проекта формата А3 6 500 ₽ 5 рабочих дней в корзину
Электронная копия проекта (скан распечатанной версии) 4 000 ₽ 3 рабочих дня в корзину
Разрабатывается отдельно
Цена, руб. Сроки, дней
Адаптация фундамента (изменение типа фундамента) по запросу 14 рабочих дней
Дизайн интерьера (стоимость от 2200руб. за квад.метр площади) по запросу 30 рабочих дней
Внесение изменений в проект по запросу 20 рабочих дней
Разработка Генплана участка, в масштабе 1:250 7 500 ₽ 15 рабочих дней в корзину
Фэншуй дома 20 000 ₽ 14 рабочих дней в корзину
Фэншуй участка 15 000 ₽ 14 рабочих дней в корзину
Фэншуй полная консультация дом+участок с выездом на объект 100 000 ₽ 30 рабочих дней в корзину
Опции проекта вы можете заказать в корзине при оформлении заказа
Варианты проекта Сравнить все варианты
Избранные проекты
Избранные строители
Предложения строителей Москва и Московская область
Минимальная
5 608 300 ₽
Стандарт
6 927 899 ₽
Под чистовую отделку
9 072 250 ₽
Показать подробные комплектации
Минимальная
16 824 899 ₽
Стандарт
19 793 999 ₽
Под чистовую отделку
25 732 200 ₽
Показать подробные комплектации
Минимальная
8 232 654 ₽
Стандарт
12 216 197 ₽
Под чистовую отделку
19 386 573 ₽
Показать подробные комплектации
Минимальная
5 773 250 ₽
Стандарт
6 927 899 ₽
Под чистовую отделку
7 752 649 ₽
Показать подробные комплектации
Минимальная
5 323 926 ₽
Стандарт
7 813 681 ₽
Под чистовую отделку
8 359 665 ₽
Показать подробные комплектации
Минимальная
5 311 390 ₽
Стандарт
6 070 159 ₽
Под чистовую отделку
7 967 084 ₽
Показать подробные комплектации
Подбор строительной компании
Не знаете кому доверить строительство дома? Мы можем помочь! Подберем для вас из сотен наших партнеров несколько компаний с лучшем соотношением цена/качество под конкретно ваш запрос.
Подобрать
Посмотреть еще 32 компании Свернуть
Отзывы покупателей
Рейтинг покупателей
0 / 5 5 5 1
На основе 1 оценок покупателей
0%
0%
0%
0%
0%
Отзывы о проекте D5339
Отзыв о проекте D5339
Чтобы оставить отзыв, пожалуйста авторизуйтесь.
Подбор строительной компании
Не знаете кому доверить строительство дома? Мы можем помочь! Подберем для вас из сотен наших партнеров несколько компаний с лучшем соотношением цена/качество под конкретно ваш запрос.
Подобрать