Главная Проекты домов Проект двухэтажного дома с подвалом, кладовой, гостиной с камином, тремя спальнями

D4544 Проект двухэтажного дома с подвалом, кладовой, гостиной с камином, тремя спальнями

Сравнить проект В избранное
Проект двухэтажного дома с подвалом, кладовой, гостиной с камином, тремя спальнями / 1
Проект двухэтажного дома с подвалом, кладовой, гостиной с камином, тремя спальнями / 2
Проект двухэтажного дома с подвалом, кладовой, гостиной с камином, тремя спальнями / 3
Проект двухэтажного дома с подвалом, кладовой, гостиной с камином, тремя спальнями / 4
Проект двухэтажного дома с подвалом, кладовой, гостиной с камином, тремя спальнями / 1
Проект двухэтажного дома с подвалом, кладовой, гостиной с камином, тремя спальнями / 2
Проект двухэтажного дома с подвалом, кладовой, гостиной с камином, тремя спальнями / 3
Проект двухэтажного дома с подвалом, кладовой, гостиной с камином, тремя спальнями / 4
D4544
191 м²
Подготовка проекта:
33 рабочих дня
Стоимость проекта
Купить проект
Задайте вопросы по проекту нашему архитектору
8 (800) 200-28-83
Время работы: пн-вс: с 9:00 до 20:00
Задать вопрос по проекту

Технические характеристики
Общие
Материал стен
Кирпич
Общая площадь
191 м²
Жилая площадь
70.49 м²
Площадь застройки
113.25 м²
Приведенная площадь
188.45 м²
Количество жилых комнат/спален
3
Этажи
2 этажа
Гараж
Нет гаража
Подвал / цокольный этаж
Без окон
Длина дома
10.91 м
Ширина дома
7.91 м
Кровля
Металлочерепица
Облицовка внешних стен
Деревянная вагонка
,
Мокрая штукатурка
Толщина несущих наружных стен
380 мм
Межэтажные перекрытия
Монолитные
Фундамент
Ленточный монолитный
Терраса
Терраса открытая
Дополнительные
Окна
Окна до пола
Камин
Есть
Сауна/баня внутри
Нет
Площадь гостиной
25 м²
Площадь кухни
11.7 м²
Количество санузлов
3
Окно в ванной комнате
Есть
Котельная
Есть
Хозяйский санузел
Есть
Кладовая
3
Дом для узких участков
Есть
Длина участка
20.91 м
Ширина участка
15.91 м
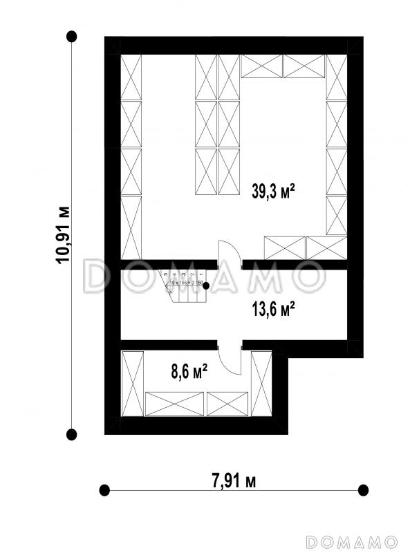
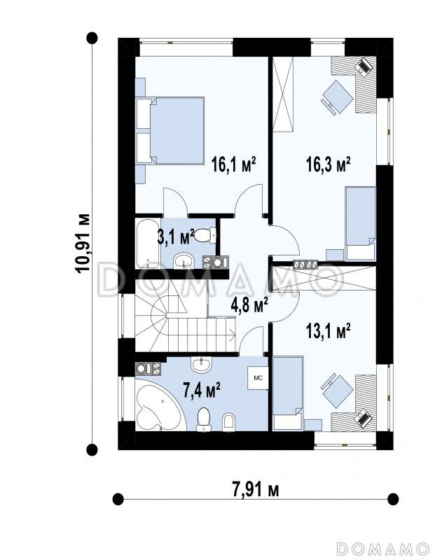
Планы помещений
Описание проекта
Компания Domamo предлагает проект двухэтажного дома с подвалом, кладовой, гостиной с камином, тремя спальнями D4544. Общая площадь - 191 м2, размер - 10.91х7.91 м. Фундамент - ленточный монолитный, кровля - металлочерепица, внешняя отделка - деревянная вагонка мокрая штукатурка. Для заказа проекта или внесения изменений свяжитесь с нами с помощью форм обратной связи на сайте или по телефону +7 (800) 200-28-83.
Категории проекта: для постоянного проживания кирпич современные для узких участков от 100 до 200 кв.м 8х11 в европейском стиле с террасой из кирпича с террасой готовые с цокольным этажом кирпичные для узких участков загородные из кирпича двухэтажные из кирпича двухэтажные кирпичные с подвалом кирпичные с котельной с подвалом с котельной кирпичные до 200 кв.м до 200 кв.м загородные с четырехскатной крышей с камином узкие прямоугольные современные кирпичные Проекты двухэтажных домов с террасой Проекты двухэтажных домов с верандой Проекты двухэтажных домов с подвалом без гаража с террасой и камином Проекты домов с тремя спальнями двухэтажные 200 кв м двухэтажные от 150 до 200 кв м узкие двухэтажные двухэтажные с камином двухэтажные с 3 спальнями двухэтажные в современном стиле двухэтажные без гаража современные без гаража современные с окнами в пол современные с террасой современные узкие современные 8х11 современные от 100 до 200 кв. м современные с подвалом европейские 8х11 из клееного бруса без гаража Показать все категории Скрыть категории

Похожие проекты
Состав проекта
Входит в стоимость
Цена, руб. Сроки, дней
Комплект архитектурно-строительных чертежей (АС) Входит в стоимость Готов к отправке
Готово к продаже
Цена, руб. Сроки, дней
Паспорт рабочего проекта 8 000 ₽ 5 рабочих дней в корзину
Инженерные разделы: ВК + ОВ + ЭО 19 075 ₽ Готов к отправке в корзину
Дополнительная копия проекта формата А3 6 500 ₽ 5 рабочих дней в корзину
Электронная копия проекта (скан распечатанной версии) 4 000 ₽ 3 рабочих дня в корзину
Разрабатывается отдельно
Цена, руб. Сроки, дней
Адаптация фундамента (изменение типа фундамента) по запросу 14 рабочих дней
Дизайн интерьера (стоимость от 2200руб. за квад.метр площади) по запросу 30 рабочих дней
Внесение изменений в проект по запросу 20 рабочих дней
Разработка Генплана участка, в масштабе 1:250 7 500 ₽ 15 рабочих дней в корзину
Фэншуй дома 20 000 ₽ 14 рабочих дней в корзину
Фэншуй участка 15 000 ₽ 14 рабочих дней в корзину
Фэншуй полная консультация дом+участок с выездом на объект 100 000 ₽ 30 рабочих дней в корзину
Опции проекта вы можете заказать в корзине при оформлении заказа
Варианты проекта Сравнить все варианты
Избранные проекты
Избранные строители
Отзывы покупателей
Рейтинг покупателей
0 / 5 5 5 1
На основе 1 оценок покупателей
0%
0%
0%
0%
0%
Отзывы о проекте D4544
Отзыв о проекте D4544
Чтобы оставить отзыв, пожалуйста авторизуйтесь.
Подбор строительной компании
Не знаете кому доверить строительство дома? Мы можем помочь! Подберем для вас из сотен наших партнеров несколько компаний с лучшем соотношением цена/качество под конкретно ваш запрос.
Подобрать