Главная Проекты домов Проект компактного одноэтажного дома из газобетона с тремя спальнями, небольшой крытой террасой и гаражом

D430 Проект компактного одноэтажного дома из газобетона с тремя спальнями, небольшой крытой террасой и гаражом

Сравнить проект В избранное
Технические характеристики
Общие
Материал стен
Газобетон
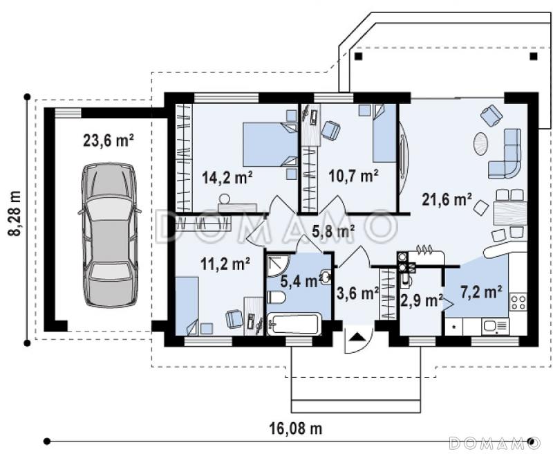
Общая площадь
106 м²
Площадь застройки
128.3 м²
Приведенная площадь
112.86 м²
Количество жилых комнат/спален
3
Этажи
1 этаж
Гараж
Пристроенный гараж
Количество машин
1
Подвал / цокольный этаж
Без подвала
Длина дома
8.28 м
Ширина дома
16.08 м
Высота в коньке
5.33 м
Кровля
Металлочерепица
Облицовка внешних стен
Деревянная вагонка
,
Мокрая штукатурка
Толщина несущих наружных стен
380 мм
Межэтажные перекрытия
По деревянным балкам
Внутренние не несущие перегородки
Газобетонные
Фундамент
Ленточный заглубленный из ФБС
Терраса
Терраса крытая
Дополнительные
Окна
Окна до пола
Камин
Есть
Сауна/баня внутри
Нет
Площадь гостиной
21.6 м²
Площадь кухни
7.2 м²
Количество санузлов
1
Окно в ванной комнате
Есть
Кладовая
1
Длина участка
16.28 м
Ширина участка
22.08 м
Планы помещений
Фасады
Описание проекта
Компания Domamo предлагает проект компактного одноэтажного дома из газобетона с тремя спальнями, небольшой крытой террасой и гаражом D430. Общая площадь - 106 м2, размер - 8.28х16.08 м. Фундамент - ленточный заглубленный из фбс, кровля - металлочерепица, внешняя отделка - деревянная вагонка мокрая штукатурка. Для заказа проекта или внесения изменений свяжитесь с нами с помощью форм обратной связи на сайте или по телефону +7 (800) 200-28-83.
Категории проекта: с гаражом для постоянного проживания пенобетон в классическом стиле от 100 до 200 кв.м с террасой из газобетона одноэтажные из пеноблоков готовые из газобетона с гаражом одноэтажные одноэтажные с гаражом одноэтажные до 150 кв. м. одноэтажные из газобетона из газосиликатных блоков из пеноблоков с гаражом до 120 кв.м до 150 кв.м до 200 кв.м с двухскатной крышей загородные из керамзитобетонных блоков с камином прямоугольные из газобетона с террасой из блоков одноэтажные из блоков из блоков с гаражом до 100 кв.м с гаражом из пеноблоков с террасой загородные из газобетона Проекты одноэтажных домов с террасой Типовые проекты загородных одноэтажных домов с террасой и камином одноэтажные с тремя спальнями Проекты домов с тремя спальнями с гаражом под одной крышей одноэтажных из керамзитобетонных блоков одноэтажные с гаражом и террасой одноэтажные до 120 кв.м с гаражом и террасой одноэтажные до 200 кв м до 140 кв м до 130 кв м из пеноблоков загородные одноэтажные в классическом стиле одноэтажные с двухскатной крышей одноэтажные прямоугольные одноэтажные с окнами в пол одноэтажные с камином одноэтажные до 180 м2 одноэтажные из газобетона с гаражом одноэтажные из газобетона с террасой одноэтажные из газобетона до 120 кв. м одноэтажные из газобетона до 150 кв. м одноэтажные из газобетона с мансардой одноэтажные из газобетона с 3 спальнями классические окна в пол двухскатная крыша прямоугольные с камином готовые проекты для постоянного проживания из газобетона до 120 кв.м из газобетона до 150 кв.м из газобетона до 200 кв.м из газобетона от 100 до 200 кв.м из газобетона с двухскатной крышей из газобетона в классическом стиле из газобетона прямоугольные из газобетона готовые из газобетона с камином из газобетона с тремя спальнями из газобетона для постоянного проживания классические для постоянного проживания классические с гаражом классические с 3 спальнями классические с окнами в пол классические с террасой классические готовые классические без подвала классические прямоугольные классические с камином классические с двухскатной крышей до 120 кв.м готовые до 120 кв.м для постоянного проживания до 120 кв.м с гаражом до 120 кв.м с двухскатной крышей до 120 кв.м с окнами в пол до 120 кв.м с террасой до 120 кв.м классические до 120 кв.м с тремя спальнями до 120 кв.м прямоугольные до 150 кв.м для постоянного проживания до 150 кв.м с гаражом до 150 кв.м с двухскатной крышей до 150 кв.м с окнами до пола до 150 кв.м классические до 150 кв.м готовые до 150 кв.м прямоугольные до 150 кв.м без бани до 150 кв.м с террасой до 150 кв.м без подвала до 150 кв.м с 3 спальнями до 150 кв.м с камином из пеноблоков в классическом стиле из пеноблоков с двухскатной крышей из пеноблоков с окнами до пола из пеноблоков прямоугольные из пеноблоков для постоянного проживания из пеноблоков готовые из пеноблоков с камином из пеноблоков до 120 м кв. из пеноблоков до 150 м кв. из пеноблоков от 100 до 200 м2 из пеноблоков с 3 спальнями из клееного бруса без гаража Показать все категории Скрыть категории

Похожие проекты
Состав проекта
Входит в стоимость
Цена, руб. Сроки, дней
Комплект архитектурно-строительных чертежей (АС) Входит в стоимость 30 рабочих дней
Готово к продаже
Цена, руб. Сроки, дней
Паспорт рабочего проекта 8 000 ₽ 5 рабочих дней в корзину
Инженерные разделы: ВК + ОВ + ЭО 29 050 ₽ 30 рабочих дней в корзину
Дополнительная копия проекта формата А3 6 500 ₽ 5 рабочих дней в корзину
Электронная копия проекта (скан распечатанной версии) 4 000 ₽ 3 рабочих дня в корзину
Разрабатывается отдельно
Цена, руб. Сроки, дней
Адаптация фундамента (изменение типа фундамента) по запросу 14 рабочих дней
Дизайн интерьера (стоимость от 2200руб. за квад.метр площади) по запросу 30 рабочих дней
Внесение изменений в проект по запросу 20 рабочих дней
Разработка Генплана участка, в масштабе 1:250 7 500 ₽ 15 рабочих дней в корзину
Фэншуй дома 20 000 ₽ 14 рабочих дней в корзину
Фэншуй участка 15 000 ₽ 14 рабочих дней в корзину
Фэншуй полная консультация дом+участок с выездом на объект 100 000 ₽ 30 рабочих дней в корзину
Опции проекта вы можете заказать в корзине при оформлении заказа
Варианты проекта Сравнить все варианты
Избранные проекты
Избранные строители

Предложения строителей Выбрать регион
Минимальная
3 837 240 ₽
Стандарт
4 740 120 ₽
Под чистовую отделку
6 207 300 ₽
Показать подробные комплектации
Минимальная
11 511 720 ₽
Стандарт
13 543 200 ₽
Под чистовую отделку
17 606 160 ₽
Показать подробные комплектации
Минимальная
5 772 789 ₽
Стандарт
8 566 074 ₽
Под чистовую отделку
13 593 987 ₽
Показать подробные комплектации
Минимальная
3 950 100 ₽
Стандарт
4 740 120 ₽
Под чистовую отделку
5 304 420 ₽
Показать подробные комплектации
Минимальная
3 642 669 ₽
Стандарт
5 346 178 ₽
Под чистовую отделку
5 719 744 ₽
Показать подробные комплектации
Минимальная
3 950 100 ₽
Стандарт
4 514 400 ₽
Под чистовую отделку
5 925 150 ₽
Показать подробные комплектации
Подбор строительной компании
Не знаете кому доверить строительство дома? Мы можем помочь! Подберем для вас из сотен наших партнеров несколько компаний с лучшем соотношением цена/качество под конкретно ваш запрос.
Подобрать
Посмотреть еще 32 компании Свернуть
Отзывы покупателей
Рейтинг покупателей
0 / 5 5 5 1
На основе 1 оценок покупателей
0%
0%
0%
0%
0%
Отзывы о проекте D430
Отзыв о проекте D430
Чтобы оставить отзыв, пожалуйста авторизуйтесь.
Подбор строительной компании
Не знаете кому доверить строительство дома? Мы можем помочь! Подберем для вас из сотен наших партнеров несколько компаний с лучшем соотношением цена/качество под конкретно ваш запрос.
Подобрать