Главная Проекты домов Проект деревянного дома из клееного бруса с встроенным гаражом

D425 Проект деревянного дома из клееного бруса с встроенным гаражом

Сравнить проект В избранное
Проект деревянного дома из клееного бруса с встроенным гаражом / 1
Проект деревянного дома из клееного бруса с встроенным гаражом / 2
Проект деревянного дома из клееного бруса с встроенным гаражом / 1
Проект деревянного дома из клееного бруса с встроенным гаражом / 2
D425
296 м²
Домокомплект
Артикул проекта: Селиваново
Компания: ГК "Приозерский лесокомбинат"
Стоимость домокомплекта
3 486 000 ₽
Заказать подробную смету
+7 (921) XXX-XX-XX Показать телефон
Задать вопрос по проекту
Технические характеристики
Общие
Материал стен
Клееный брус
Общая площадь
296 м²
Приведенная площадь
261.7 м²
Количество жилых комнат/спален
6
Этажи
1 этаж + мансарда
Гараж
Нет гаража
Подвал / цокольный этаж
Без подвала
Длина дома
14.4 м
Ширина дома
10.4 м
Облицовка внешних стен
Без облицовки
Толщина несущих наружных стен
166 мм
Межэтажные перекрытия
По деревянным балкам
Внутренние не несущие перегородки
Каркасно-обшивные
Терраса
Терраса крытая
Дополнительные
Сауна/баня внутри
Нет
Площадь гостиной
27 м²
Площадь кухни
26 м²
Количество санузлов
2
Котельная
Есть
Кабинет
Есть
Кладовая
4
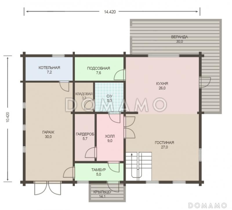
Планы помещений
Описание проекта
Компания Domamo предлагает проект деревянного дома из клееного бруса с встроенным гаражом D425. Общая площадь - 296 м2, размер - 14.4х10.4 м. Фундамент - , кровля - , внешняя отделка - без облицовки. Для заказа проекта или внесения изменений свяжитесь с нами с помощью форм обратной связи на сайте или по телефону +7 (800) 200-28-83.
Категории проекта: с мансардой деревянные для постоянного проживания из клееного бруса от 200 до 300 кв.м с террасой одноэтажные с мансардой одноэтажные с котельной с котельной одноэтажные деревянные с двухскатной крышей загородные прямоугольные в стиле эклектика Проекты деревянных домов с мансардой Проекты деревянных домов с террасой Проекты домов из клееного бруса с мансардой Проекты одноэтажных домов из клееного бруса Проекты одноэтажных домов с террасой Типовые проекты загородных одноэтажных домов на две семьи без гаража одноэтажные без гаража с кабинетом с мансардой и террасой полутораэтажные деревянные для круглогодичного проживания с мансардой с котельной с мансардой с двухскатной крышей с мансардой прямоугольные с мансардой для постоянного проживания одноэтажные с мансардой из клееного бруса одноэтажные с мансардой для постоянного проживания одноэтажные с мансардой с большой кухней одноэтажные с мансардой в стиле эклектика деревянные в стиле эклектика деревянные прямоугольные деревянные без гаража деревянные домокомплекты деревянные без подвала деревянные с большой кухней деревянные от 200 до 300 м2 из клееного бруса домокомплект из клееного бруса для постоянного проживания из клееного бруса прямоугольный из клееного бруса в скандинавском стиле из клееного бруса в стиле эклектика из клееного бруса с двухскатной крышей из клееного бруса с каркасно-обшивными перегородками из клееного бруса без облицовки из клееного бруса с перекрытиями по деревянным балкам из клееного бруса с кабинетом из клееного бруса с котельной из клееного бруса с выходом на терассу из гостиной из клееного бруса с выходом на терассу из кухни из клееного бруса с крытой терассой из клееного бруса без подвала из клееного бруса без гаража одноэтажные из клееного бруса с мансардой из клееного бруса от 200 до 300 м2 Показать все категории Скрыть категории

Похожие проекты
Состав проекта
Входит в стоимость
Цена, руб. Сроки, дней
Комплект архитектурно-строительных чертежей (АС) Входит в стоимость Готов к отправке
Разрабатывается отдельно
Цена, руб. Сроки, дней
Адаптация фундамента (изменение типа фундамента) по запросу 14 рабочих дней
Дизайн интерьера (стоимость от 2200руб. за квад.метр площади) по запросу 30 рабочих дней
Внесение изменений в проект по запросу 20 рабочих дней
Фэншуй дома 20 000 ₽ 14 рабочих дней в корзину
Фэншуй участка 15 000 ₽ 14 рабочих дней в корзину
Фэншуй полная консультация дом+участок с выездом на объект 100 000 ₽ 30 рабочих дней в корзину
Опции проекта вы можете заказать в корзине при оформлении заказа
Отзывы покупателей
Рейтинг покупателей
0 / 5 5 5 1
На основе 1 оценок покупателей
0%
0%
0%
0%
0%
Отзывы о проекте D425
Отзыв о проекте D425
Чтобы оставить отзыв, пожалуйста авторизуйтесь.
Подбор строительной компании
Не знаете кому доверить строительство дома? Мы можем помочь! Подберем для вас из сотен наших партнеров несколько компаний с лучшем соотношением цена/качество под конкретно ваш запрос.
Подобрать