Главная Проекты домов Проект 2-этажного кирпичного загородного дома с террасой

D3583 Проект 2-этажного кирпичного загородного дома с террасой

Сравнить проект В избранное
Проект 2-этажного кирпичного загородного дома с террасой / 1
Проект 2-этажного кирпичного загородного дома с террасой / 2
Проект 2-этажного кирпичного загородного дома с террасой / 1
Проект 2-этажного кирпичного загородного дома с террасой / 2
D3583
158 м²
Подготовка проекта:
25 рабочих дней
Стоимость проекта
Купить проект
Задайте вопросы по проекту нашему архитектору
8 (800) 200-28-83
Время работы: пн-вс: с 9:00 до 20:00
Задать вопрос по проекту

Технические характеристики
Общие
Материал стен
Кирпич
Общая площадь
158 м²
Жилая площадь
92 м²
Приведенная площадь
157.91 м²
Количество жилых комнат/спален
3
Этажи
2 этажа
Гараж
Нет гаража
Количество машин
нет
Подвал / цокольный этаж
Без подвала
Длина дома
16 м
Ширина дома
15.8 м
Высота в коньке
9.4 м
Кровля
Металлочерепица
Облицовка внешних стен
Облицовочный кирпич
Толщина несущих наружных стен
380 мм
Межэтажные перекрытия
Монолитные
Внутренние не несущие перегородки
Кирпичные
Фундамент
Монолитная ж/бетонная плита
Терраса
Терраса крытая
Дополнительные
Окна
Окна до пола
,
Круглые окна
Камин
Есть
Сауна/баня внутри
Нет
Площадь гостиной
28.8 м²
Площадь кухни
10.9 м²
Количество санузлов
3
Окно в ванной комнате
Есть
Котельная
Есть
Хозяйский санузел
Есть
Хозяйская гардеробная
Есть
Кладовая
1
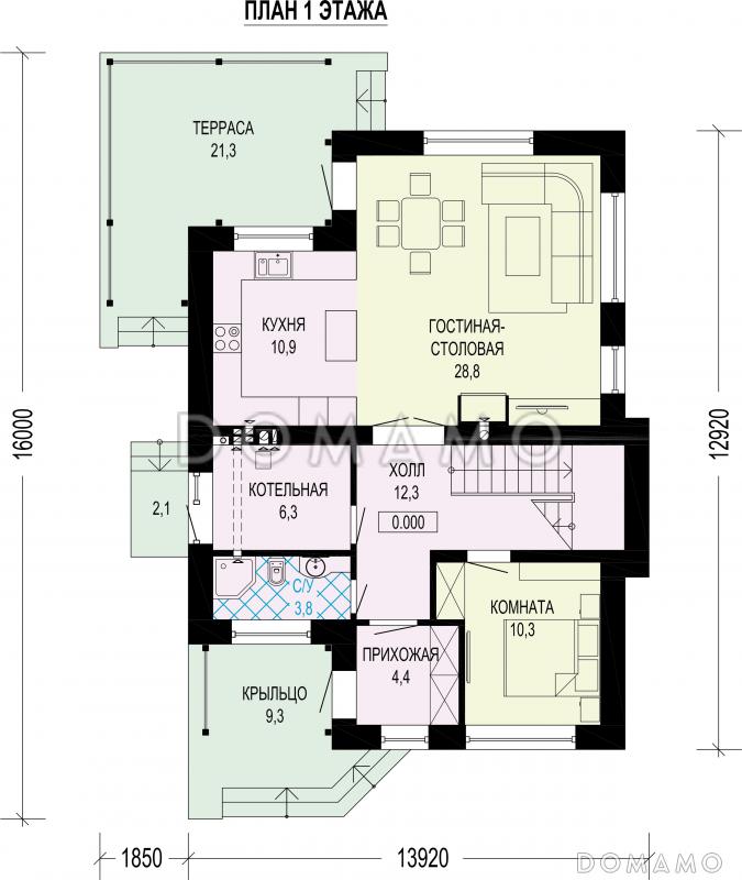
Планы помещений
Фасады
Описание проекта
Компания Domamo предлагает проект 2-этажного кирпичного загородного дома с террасой D3583. Общая площадь - 158 м2, размер - 16х15.8 м. Фундамент - монолитная ж/бетонная плита, кровля - металлочерепица, внешняя отделка - облицовочный кирпич. Для заказа проекта или внесения изменений свяжитесь с нами с помощью форм обратной связи на сайте или по телефону +7 (800) 200-28-83.

Похожие проекты
Состав проекта
Входит в стоимость
Цена, руб. Сроки, дней
Комплект архитектурно-строительных чертежей (АС) Входит в стоимость 25 рабочих дней
Готово к продаже
Цена, руб. Сроки, дней
Зеркальная версия проекта Входит в стоимость 25 рабочих дней
Паспорт рабочего проекта 5 000 ₽ 25 рабочих дней в корзину
Инженерные разделы: ВК + ОВ + ЭО 23 000 ₽ 25 рабочих дней в корзину
Дополнительная копия проекта формата А3 3 000 ₽ 25 рабочих дней в корзину
Две дополнительные копии проекта формата А3 + 1 паспорт рабочего проекта 10 100 ₽ 25 рабочих дней в корзину
Электронная копия проекта (скан распечатанной версии) 4 000 ₽ 3 рабочих дня в корзину
Разрабатывается отдельно
Цена, руб. Сроки, дней
Адаптация фундамента (изменение типа фундамента) по запросу 14 рабочих дней
Дизайн интерьера (стоимость от 2200руб. за квад.метр площади) по запросу 30 рабочих дней
Внесение изменений в проект по запросу 20 рабочих дней
Фэншуй дома 20 000 ₽ 14 рабочих дней в корзину
Фэншуй участка 15 000 ₽ 14 рабочих дней в корзину
Фэншуй полная консультация дом+участок с выездом на объект 100 000 ₽ 30 рабочих дней в корзину
Опции проекта вы можете заказать в корзине при оформлении заказа
Отзывы покупателей
Рейтинг покупателей
0 / 5 5 5 1
На основе 1 оценок покупателей
0%
0%
0%
0%
0%
Отзывы о проекте D3583
Отзыв о проекте D3583
Чтобы оставить отзыв, пожалуйста авторизуйтесь.
Подбор строительной компании
Не знаете кому доверить строительство дома? Мы можем помочь! Подберем для вас из сотен наших партнеров несколько компаний с лучшем соотношением цена/качество под конкретно ваш запрос.
Подобрать