Главная Проекты домов Проект одноэтажного мансардного дома из кирпича с дополнительной спальней на первом этаже и гаражом

D3282 Проект одноэтажного мансардного дома из кирпича с дополнительной спальней на первом этаже и гаражом

Сравнить проект В избранное
Проект одноэтажного мансардного дома из кирпича с дополнительной спальней на первом этаже и гаражом / 1
Проект одноэтажного мансардного дома из кирпича с дополнительной спальней на первом этаже и гаражом / 2
Проект одноэтажного мансардного дома из кирпича с дополнительной спальней на первом этаже и гаражом / 3
Проект одноэтажного мансардного дома из кирпича с дополнительной спальней на первом этаже и гаражом / 1
Проект одноэтажного мансардного дома из кирпича с дополнительной спальней на первом этаже и гаражом / 2
Проект одноэтажного мансардного дома из кирпича с дополнительной спальней на первом этаже и гаражом / 3
D3282
174 м²
Подготовка проекта:
33 рабочих дня
Стоимость проекта
Купить проект
Задайте вопросы по проекту нашему архитектору
8 (800) 200-28-83
Время работы: пн-вс: с 9:00 до 20:00
Задать вопрос по проекту

Технические характеристики
Общие
Материал стен
Кирпич
Общая площадь
174 м²
Площадь застройки
127.3 м²
Приведенная площадь
172.19 м²
Количество жилых комнат/спален
4
Этажи
1 этаж + мансарда
Гараж
Пристроенный гараж
Количество машин
1
Подвал / цокольный этаж
Без подвала
Длина дома
8.34 м
Ширина дома
15.54 м
Высота в коньке
7.38 м
Кровля
Металлочерепица
Облицовка внешних стен
Мокрая штукатурка
Толщина несущих наружных стен
380 мм
Межэтажные перекрытия
Монолитные
Внутренние не несущие перегородки
Кирпичные
Фундамент
Ленточный заглубленный из ФБС
Терраса
Терраса открытая
Дополнительные
Окна
Окна до пола
,
Окна с французским балконом
Мансардные окна
Есть
Камин
Есть
Сауна/баня внутри
Нет
Площадь гостиной
24.8 м²
Площадь кухни
6 м²
Количество санузлов
3
Окно в ванной комнате
Есть
Котельная
Есть
Постирочная
Есть
Хозяйский санузел
Есть
Кладовая
3
Длина участка
16.34 м
Ширина участка
22.64 м
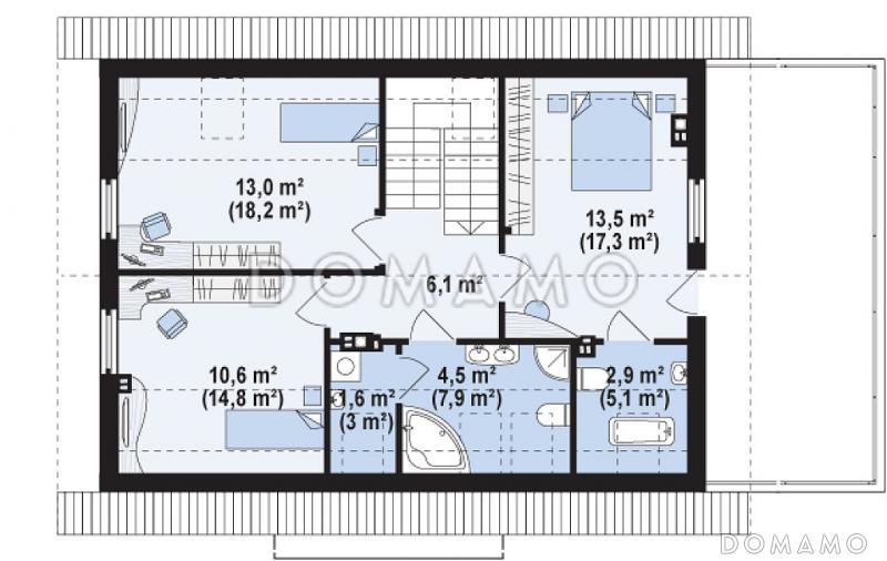
Планы помещений
Описание проекта
Компания Domamo предлагает проект одноэтажного мансардного дома из кирпича с дополнительной спальней на первом этаже и гаражом D3282. Общая площадь - 174 м2, размер - 8.34х15.54 м. Фундамент - ленточный заглубленный из фбс, кровля - металлочерепица, внешняя отделка - мокрая штукатурка. Для заказа проекта или внесения изменений свяжитесь с нами с помощью форм обратной связи на сайте или по телефону +7 (800) 200-28-83.
Категории проекта: с мансардой с гаражом с мансардой и гаражом для постоянного проживания кирпич в классическом стиле от 100 до 200 кв.м кирпичные дома хай-тек классические кирпичные дома кирпичные дома с мансардой дома из кирпича с гаражом с террасой из кирпича с террасой готовые загородные из кирпича одноэтажные из кирпича одноэтажные из кирпича с гаражом одноэтажные из кирпича с мансардой одноэтажные кирпичные с котельной одноэтажные с гаражом одноэтажные с мансардой кирпичные с котельной одноэтажные с котельной с котельной кирпичные до 200 кв.м одноэтажные с гаражом и мансардой до 200 кв.м с двухскатной крышей загородные с камином прямоугольные Проекты одноэтажных домов с террасой Типовые проекты загородных одноэтажных домов с террасой и камином с гаражом под одной крышей одноэтажные с 4 спальнями одноэтажные с гаражом и террасой с мансардой и террасой полутораэтажные с гаражом и террасой с 4 спальнями одноэтажные до 200 кв м полутораэтажные из кирпича одноэтажные с мансардными окнами с мансардой с котельной с мансардой с камином с мансардой с двухскатной крышей с мансардой в классическом стиле с мансардой с окнами до пола с мансардой с мансардными окнами с мансардой прямоугольные с мансардой готовые с мансардой для постоянного проживания с мансардой до 200 кв.м одноэтажные из кирпича с 4 спальнями готовые для постоянного проживания с камином без подвала классический стиль прямоугольные одноэтажные с мансардой для постоянного проживания одноэтажные с мансардой классические классические для постоянного проживания классические с гаражом классические с 4 спальнями классические с окнами в пол классические с террасой классические готовые классические с котельной классические без подвала классические с прачечной классические прямоугольные классические с камином классические с двухскатной крышей из клееного бруса без гаража Показать все категории Скрыть категории

Похожие проекты
Состав проекта
Входит в стоимость
Цена, руб. Сроки, дней
Комплект архитектурно-строительных чертежей (АС) Входит в стоимость 33 рабочих дня
Готово к продаже
Цена, руб. Сроки, дней
Паспорт рабочего проекта 8 000 ₽ 5 рабочих дней в корзину
Дополнительная копия проекта формата А3 6 500 ₽ 5 рабочих дней в корзину
Электронная копия проекта (скан распечатанной версии) 4 000 ₽ 3 рабочих дня в корзину
Разрабатывается отдельно
Цена, руб. Сроки, дней
Адаптация фундамента (изменение типа фундамента) по запросу 14 рабочих дней
Дизайн интерьера (стоимость от 2200руб. за квад.метр площади) по запросу 30 рабочих дней
Внесение изменений в проект по запросу 20 рабочих дней
Инженерные разделы: ВК + ОВ + ЭО 23 340 ₽ 33 рабочих дня в корзину
Разработка Генплана участка, в масштабе 1:250 7 500 ₽ 15 рабочих дней в корзину
Фэншуй дома 20 000 ₽ 14 рабочих дней в корзину
Фэншуй участка 15 000 ₽ 14 рабочих дней в корзину
Фэншуй полная консультация дом+участок с выездом на объект 100 000 ₽ 30 рабочих дней в корзину
Опции проекта вы можете заказать в корзине при оформлении заказа
Отзывы покупателей
Рейтинг покупателей
0 / 5 5 5 1
На основе 1 оценок покупателей
0%
0%
0%
0%
0%
Отзывы о проекте D3282
Отзыв о проекте D3282
Чтобы оставить отзыв, пожалуйста авторизуйтесь.
Подбор строительной компании
Не знаете кому доверить строительство дома? Мы можем помочь! Подберем для вас из сотен наших партнеров несколько компаний с лучшем соотношением цена/качество под конкретно ваш запрос.
Подобрать