Главная Проекты домов Проект двухэтажного дома из газобетона в стиле кубизм с балконом

D1643 Проект двухэтажного дома из газобетона в стиле кубизм с балконом

Сравнить проект В избранное
Технические характеристики
Общие
Материал стен
Газобетон
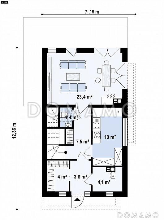
Общая площадь
104 м²
Площадь застройки
84.2 м²
Приведенная площадь
110.7 м²
Количество жилых комнат/спален
3
Этажи
2 этажа
Гараж
Нет гаража
Подвал / цокольный этаж
Без подвала
Длина дома
12.36 м
Ширина дома
7.16 м
Высота в коньке
7.79 м
Кровля
Металлочерепица
Облицовка внешних стен
Деревянная вагонка
,
Мокрая штукатурка
,
Фасадные панели
Толщина несущих наружных стен
380 мм
Межэтажные перекрытия
Монолитные
Внутренние не несущие перегородки
Газобетонные
Фундамент
Ленточный заглубленный из ФБС
Терраса
Терраса открытая
Дополнительные
Окна
Окна до пола
Камин
Есть
Сауна/баня внутри
Нет
Площадь гостиной
23.4 м²
Площадь кухни
10 м²
Количество санузлов
2
Окно в ванной комнате
Есть
Котельная
Есть
Кладовая
1
Дом для узких участков
Есть
Длина участка
20.36 м
Ширина участка
11.66 м
Планы помещений
Описание проекта
Компания Domamo предлагает проект двухэтажного дома из газобетона в стиле кубизм с балконом D1643. Общая площадь - 104 м2, размер - 12.36х7.16 м. Фундамент - ленточный заглубленный из фбс, кровля - металлочерепица, внешняя отделка - фасадные панели деревянная вагонка мокрая штукатурка. Для заказа проекта или внесения изменений свяжитесь с нами с помощью форм обратной связи на сайте или по телефону +7 (800) 200-28-83.
Категории проекта: для постоянного проживания пенобетон современные для узких участков от 100 до 200 кв.м в европейском стиле с террасой из газобетона готовые двухэтажные с котельной двухэтажные из газобетона из газосиликатных блоков двухэтажные из пеноблоков до 120 кв.м до 150 кв.м до 200 кв.м загородные из керамзитобетонных блоков с камином узкие прямоугольные из газобетона с террасой из блоков двухэтажные из блоков из пеноблоков с террасой загородные из газобетона Проекты двухэтажных домов с террасой Проекты двухэтажных домов с верандой без гаража с террасой и камином Проекты домов с тремя спальнями двухэтажные до 150 кв м двухэтажные 200 кв м до 140 кв м до 130 кв м двухэтажные до 130 кв.м узкие двухэтажные из пеноблоков загородные двухэтажные до 120 кв.м двухэтажные до 180 кв.м двухэтажные с камином двухэтажные с 3 спальнями двухэтажные в современном стиле двухэтажные до 150 кв.м с террасой двухэтажные до 150 кв.м с 3 спальнями двухэтажные без гаража из газобетона до 120 кв.м из газобетона до 150 кв.м из газобетона до 200 кв.м из газобетона от 100 до 200 кв.м из газобетона современные из газобетона с котельной из газобетона прямоугольные из газобетона готовые из газобетона с камином из газобетона с тремя спальнями из газобетона с изолированной кухней из газобетона для узких участков из газобетона узкие из газобетона для постоянного проживания двухэтажные из газобетона без гаража двухэтажные из газобетона с террасой двухэтажные из газобетона с камином двухэтажные из газобетона с котельной двухэтажные из газобетона современные двухэтажные из газобетона для узких участков двухэтажные из газобетона маленькие двухэтажные из газобетона до 120 кв. м двухэтажные из газобетона до 150 кв. м двухэтажные из газобетона до 200 кв. м двухэтажные из газобетона без подвала двухэтажные из газобетона с изолированной кухней двухэтажные из газобетона с 3 спальнями современные без гаража современные с окнами в пол современные с террасой современные небольшие современные узкие современные до 120 кв. м современные до 150 кв. м современные от 100 до 200 кв. м до 120 кв.м готовые до 120 кв.м для постоянного проживания до 120 кв.м без гаража до 120 кв.м с окнами в пол до 120 кв.м с террасой до 120 кв.м с котельной до 120 кв.м с изолированной кухней до 120 кв.м с тремя спальнями до 120 кв.м прямоугольные до 150 кв.м для постоянного проживания до 150 кв.м без гаража до 150 кв.м с окнами до пола до 150 кв.м для узких участков до 150 кв.м готовые до 150 кв.м прямоугольные до 150 кв.м с котельной до 150 кв.м с изолированной кухней до 150 кв.м без бани до 150 кв.м с террасой до 150 кв.м без подвала до 150 кв.м с 3 спальнями до 150 кв.м с камином из пеноблоков в современном стиле из пеноблоков с окнами до пола из пеноблоков прямоугольные из пеноблоков для постоянного проживания из пеноблоков для узких участков из пеноблоков готовые из пеноблоков с камином из пеноблоков до 120 м кв. из пеноблоков до 150 м кв. из пеноблоков от 100 до 200 м2 из пеноблоков узкие из пеноблоков с 3 спальнями из пеноблоков с изолированной кухней из клееного бруса без гаража Показать все категории Скрыть категории

Похожие проекты
Состав проекта
Входит в стоимость
Цена, руб. Сроки, дней
Комплект архитектурно-строительных чертежей (АС) Входит в стоимость Готов к отправке
Готово к продаже
Цена, руб. Сроки, дней
Паспорт рабочего проекта 8 000 ₽ 5 рабочих дней в корзину
Инженерные разделы: ВК + ОВ + ЭО 26 000 ₽ Готов к отправке в корзину
Дополнительная копия проекта формата А3 6 500 ₽ 5 рабочих дней в корзину
Электронная копия проекта (скан распечатанной версии) 4 000 ₽ 3 рабочих дня в корзину
Разрабатывается отдельно
Цена, руб. Сроки, дней
Адаптация фундамента (изменение типа фундамента) по запросу 14 рабочих дней
Дизайн интерьера (стоимость от 2200руб. за квад.метр площади) по запросу 30 рабочих дней
Внесение изменений в проект по запросу 20 рабочих дней
Разработка Генплана участка, в масштабе 1:250 7 500 ₽ 15 рабочих дней в корзину
Фэншуй дома 20 000 ₽ 14 рабочих дней в корзину
Фэншуй участка 15 000 ₽ 14 рабочих дней в корзину
Фэншуй полная консультация дом+участок с выездом на объект 100 000 ₽ 30 рабочих дней в корзину
Опции проекта вы можете заказать в корзине при оформлении заказа
Предложения строителей Выбрать регион
Минимальная
3 763 800 ₽
Стандарт
4 649 400 ₽
Под чистовую отделку
6 088 500 ₽
Показать подробные комплектации
Минимальная
11 291 400 ₽
Стандарт
13 284 000 ₽
Под чистовую отделку
17 269 200 ₽
Показать подробные комплектации
Минимальная
5 662 305 ₽
Стандарт
8 402 130 ₽
Под чистовую отделку
13 333 815 ₽
Показать подробные комплектации
Минимальная
3 874 500 ₽
Стандарт
4 649 400 ₽
Под чистовую отделку
5 202 900 ₽
Показать подробные комплектации
Минимальная
3 572 953 ₽
Стандарт
5 243 859 ₽
Под чистовую отделку
5 610 276 ₽
Показать подробные комплектации
Минимальная
3 874 500 ₽
Стандарт
4 428 000 ₽
Под чистовую отделку
5 811 750 ₽
Показать подробные комплектации
Подбор строительной компании
Не знаете кому доверить строительство дома? Мы можем помочь! Подберем для вас из сотен наших партнеров несколько компаний с лучшем соотношением цена/качество под конкретно ваш запрос.
Подобрать
Посмотреть еще 32 компании Свернуть
Отзывы покупателей
Рейтинг покупателей
5 / 5 5 5 2
На основе 2 оценок покупателей
100%
0%
0%
0%
0%
Отзывы о проекте D1643
Отзыв о проекте D1643
Чтобы оставить отзыв, пожалуйста авторизуйтесь.
Комментарий
Неудобное расположение кухни. Хотя если есть на кухне, а гостиную не использовать как столовую, то будет ок. А вообще удивительно вместительный дом получается, при такой маленькой площади.
Комментарий
Проект красивый, конечно, но возникают некоторые сомнения по поводу его крыши. Снегу там наверное накапливается немеренно. Планировка же в целом неплохая, хотя из кухни бегать в столовую далековато. Из того, что особо понравилось - гардеробная нормального размера и с окном, а также большой балкон.
Подбор строительной компании
Не знаете кому доверить строительство дома? Мы можем помочь! Подберем для вас из сотен наших партнеров несколько компаний с лучшем соотношением цена/качество под конкретно ваш запрос.
Подобрать