Главная Проекты домов Проект деревянного дома с тремя спальнями на втором этаже и кабинетом с выходом на балкон

D1364 Проект деревянного дома с тремя спальнями на втором этаже и кабинетом с выходом на балкон

Сравнить проект В избранное
Проект деревянного дома с тремя спальнями на втором этаже и кабинетом с выходом на балкон / 1 Проект деревянного дома с тремя спальнями на втором этаже и кабинетом с выходом на балкон / 2
D1364
223 м²
Проект с подрядом
Артикул проекта: Верона
Компания: Holz House
Стоимость строительства
6 338 000 ₽
Заказать подробную смету
+7 (800) XXX-XX-XX Показать телефон
Задать вопрос по проекту
Технические характеристики
Общие
Материал стен
Клееный брус
Общая площадь
223 м²
Приведенная площадь
198.43 м²
Количество жилых комнат/спален
5
Этажи
1 этаж + мансарда
Гараж
Нет гаража
Подвал / цокольный этаж
Без подвала
Длина дома
12.3 м
Ширина дома
11.6 м
Кровля
Гибкая черепица
Облицовка внешних стен
Без облицовки
Толщина несущих наружных стен
185 мм
Межэтажные перекрытия
По деревянным балкам
Внутренние не несущие перегородки
Каркасно-обшивные
Фундамент
Свайный
Терраса
Терраса крытая
Дополнительные
Камин
Есть
Сауна/баня внутри
Нет
Площадь гостиной
29.9 м²
Площадь кухни
15.4 м²
Количество санузлов
2
Окно в ванной комнате
Есть
Котельная
Есть
Кабинет
Есть
Балкон / лоджия
Балкон
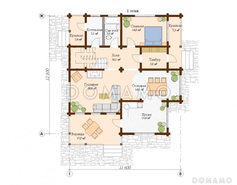
Планы помещений
Описание проекта
Категории проекта: с мансардой деревянные для постоянного проживания из клееного бруса от 200 до 300 кв.м с эркером с террасой одноэтажные с мансардой одноэтажные с котельной с котельной одноэтажные деревянные 12х12 9х12 загородные с камином с балконом 10х12 в стиле эклектика с эркером и мансардой Проекты деревянных домов с мансардой Проекты деревянных домов с террасой Проекты домов из клееного бруса с мансардой Проекты одноэтажных домов из клееного бруса Проекты одноэтажных домов с эркером Проекты одноэтажных домов с террасой Типовые проекты загородных одноэтажных домов без гаража одноэтажные без гаража с террасой и камином с кабинетом одноэтажные 12 на 12 с мансардой 12 на 12 с мансардой и террасой полутораэтажные деревянные для круглогодичного проживания 9 на 12 с мансардой 10x12 с мансардой с балконом и террасой с 5 спальнями от 200 до 250 м сложной формы с мансардой с котельной с мансардой с камином с мансардой с балконом с мансардой сложной формы с мансардой для постоянного проживания одноэтажные с мансардой из клееного бруса одноэтажные с мансардой для постоянного проживания одноэтажные с мансардой с большой кухней одноэтажные с мансардой в стиле эклектика одноэтажные с мансардой с балконом деревянные в стиле эклектика деревянные с балконом деревянные с камином деревянные без гаража деревянные с подрядом деревянные без подвала деревянные с большой кухней деревянные от 200 до 300 м2 из клееного бруса проект с подрядом из клееного бруса для постоянного проживания из клееного бруса с окном в ванной комнате из клееного бруса с камином из клееного бруса сложной формы из клееного бруса с балконом из клееного бруса в скандинавском стиле из клееного бруса в стиле эклектика из клееного бруса с многощипцовой крышей из клееного бруса со свайным фундаментом из клееного бруса с каркасно-обшивными перегородками из клееного бруса без облицовки из клееного бруса с перекрытиями по деревянным балкам из клееного бруса с кровлей из гибкой черепицы из клееного бруса с кабинетом из клееного бруса с котельной из клееного бруса с 1 эркером из клееного бруса с выходом на терассу из кухни из клееного бруса с крытой терассой из клееного бруса без подвала из клееного бруса без гаража одноэтажные из клееного бруса с мансардой из клееного бруса от 200 до 300 м2 Проекты домов с подрядом Показать все категории Скрыть категории

Похожие проекты
Состав проекта
Входит в стоимость
Цена, руб. Сроки, дней
Комплект архитектурно-строительных чертежей (АС) Входит в стоимость Готов к отправке
Разрабатывается отдельно
Цена, руб. Сроки, дней
Адаптация фундамента (изменение типа фундамента) по запросу 14 рабочих дней
Дизайн интерьера (стоимость от 2200руб. за квад.метр площади) по запросу 30 рабочих дней
Внесение изменений в проект по запросу 20 рабочих дней
Фэншуй дома 20 000 ₽ 14 рабочих дней в корзину
Фэншуй участка 15 000 ₽ 14 рабочих дней в корзину
Фэншуй полная консультация дом+участок с выездом на объект 100 000 ₽ 30 рабочих дней в корзину
Опции проекта вы можете заказать в корзине при оформлении заказа
Подбор строительной компании
Не знаете кому доверить строительство дома? Мы можем помочь! Подберем для вас из сотен наших партнеров несколько компаний с лучшем соотношением цена/качество под конкретно ваш запрос.
Подобрать

Комплектации