D6693 Амур

Сравнить проект В избранное
Амур / 1
Амур / 2
Амур / 3
Амур / 4
Амур / 5
Амур / 6
Амур / 1
Амур / 2
Амур / 3
Амур / 4
Амур / 5
Амур / 6
D6693
240 м²
Проект с подрядом
Компания: Китежъ-Град
Стоимость строительства
не указана
Заказать подробную смету
+7 (950) XXX-XX-XX Показать телефон
Задать вопрос по проекту
Технические характеристики
Общие
Материал стен
Бревно
Общая площадь
240 м²
Количество жилых комнат/спален
1
Этажи
2 этажа
Гараж
Нет гаража
Количество машин
нет
Подвал / цокольный этаж
Без подвала
Кровля
Металлочерепица
Фундамент
Монолитная ж/бетонная плита
Терраса
Терраса крытая
Дополнительные
Сауна/баня внутри
Есть
Бассейн
Есть
Площадь гостиной
18 м²
Площадь кухни
19 м²
Количество санузлов
2
Котельная
Есть
Бильярдная
Есть
Балкон / лоджия
Балкон
Планы помещений
Фасады
Описание проекта

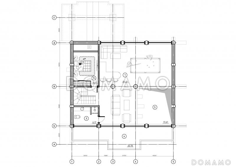
Первый этаж:

Общая площадь первого этажа составляет 126,39 м².

Парная— сердце бани, способная вместить 4-6 человек, занимает 8 кв.м. Зона бассейна — выйдя из парной, вы попадете в уютную зону бассейна, где вас ждут большая купель и душевая. Общая площадь — 42,1 кв.м.
Кухня— для любителей перекусить после банных процедур мы предусмотрели кухню с выходом в просторную комнату отдыха. Общая площадь — 17,5 кв.м. Техническое помещение — на первом этаже также есть техническое помещение, топочная, где разместились электрощитовая и бойлер для воды. Общая площадь — 12,04 кв.м.

Прихожая занимает 9,71 кв.м, а санитарный узел — 3 кв.м.

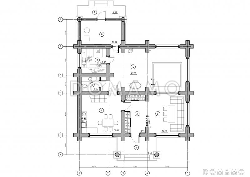
Второй этаж:

Площадь второго этажа — 120,53 м².

Просторный зал— поднявшись на второй этаж, вы попадете в просторный зал, где вас будет ждать 12-футовый бильярдный стол, диван, кресла и бар. Общая площадь — 64 кв.м! Спальня — для засидевшихся гостей на втором этаже предусмотрена спальня площадью 12 кв.м и санитарный узел — 6,17 кв.м.
*Выход на балкон — со второго этажа вы сможете насладиться великолепным видом на лес, реку или морскую даль, а площадь балкона составит 17,6 кв.м!

Срок изготовления сруба — всего 2 месяца.

Состав проекта
Входит в стоимость
Цена, руб. Сроки, дней
Комплект архитектурно-строительных чертежей (АС) Входит в стоимость Готов к отправке
Разрабатывается отдельно
Цена, руб. Сроки, дней
Адаптация фундамента (изменение типа фундамента) по запросу 14 рабочих дней
Дизайн интерьера (стоимость от 2200руб. за квад.метр площади) по запросу 30 рабочих дней
Внесение изменений в проект по запросу 20 рабочих дней
Фэншуй дома 20 000 ₽ 14 рабочих дней в корзину
Фэншуй участка 15 000 ₽ 14 рабочих дней в корзину
Фэншуй полная консультация дом+участок с выездом на объект 100 000 ₽ 30 рабочих дней в корзину
Опции проекта вы можете заказать в корзине при оформлении заказа
Комплектации
Отзывы покупателей
Рейтинг покупателей
0 / 5 5 5 1
На основе 1 оценок покупателей
0%
0%
0%
0%
0%
Отзывы о проекте D6693
Отзыв о проекте D6693
Чтобы оставить отзыв, пожалуйста авторизуйтесь.
Подбор строительной компании
Не знаете кому доверить строительство дома? Мы можем помочь! Подберем для вас из сотен наших партнеров несколько компаний с лучшем соотношением цена/качество под конкретно ваш запрос.
Подобрать