D5637 Э-2

Сравнить проект В избранное
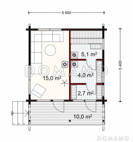
Э-2 / 1
Э-2 / 2
Э-2 / 3
Э-2 / 1
Э-2 / 2
Э-2 / 3
D5637
Проект с подрядом
Компания: "Эталон"
Стоимость строительства
не указана
Заказать подробную смету
+7 (701) XXX-XX-XX Показать телефон
Задать вопрос по проекту
Технические характеристики
Общие
Материал стен
Брус
,
Клееный брус
Жилая площадь
26,8 м²
Площадь застройки
36,8 м²
Этажи
1 этаж
Гараж
Нет гаража
Количество машин
нет
Подвал / цокольный этаж
Без подвала
Длина дома
7,4 м
Ширина дома
5,6 м
Кровля
Оцинкованный стальной лист гладкий
Толщина несущих наружных стен
150 мм
Межэтажные перекрытия
По деревянным балкам
Внутренние не несущие перегородки
Каркасно-обшивные
Фундамент
Монолитная ж/бетонная плита
Дополнительные
Окна
Окна до пола
,
Панорамные окна
Сауна/баня внутри
Есть
Планы помещений
Категории проекта: одноэтажные

Похожие проекты
Состав проекта
Входит в стоимость
Цена, руб. Сроки, дней
Комплект архитектурно-строительных чертежей (АС) Входит в стоимость Готов к отправке
Разрабатывается отдельно
Цена, руб. Сроки, дней
Адаптация фундамента (изменение типа фундамента) по запросу 14 рабочих дней
Дизайн интерьера (стоимость от 2200руб. за квад.метр площади) по запросу 30 рабочих дней
Внесение изменений в проект по запросу 20 рабочих дней
Фэншуй дома 20 000 ₽ 14 рабочих дней в корзину
Фэншуй участка 15 000 ₽ 14 рабочих дней в корзину
Фэншуй полная консультация дом+участок с выездом на объект 100 000 ₽ 30 рабочих дней в корзину
Опции проекта вы можете заказать в корзине при оформлении заказа
Комплектации
Отзывы покупателей
Рейтинг покупателей
0 / 5 5 5 1
На основе 1 оценок покупателей
0%
0%
0%
0%
0%
Отзывы о проекте D5637
Отзыв о проекте D5637
Чтобы оставить отзыв, пожалуйста авторизуйтесь.
Подбор строительной компании
Не знаете кому доверить строительство дома? Мы можем помочь! Подберем для вас из сотен наших партнеров несколько компаний с лучшем соотношением цена/качество под конкретно ваш запрос.
Подобрать