111
Главная Проекты домов Проект одноэтажного дома из SIP панелей с панорамным окном на крытую террасу

D5130 Проект одноэтажного дома из SIP панелей с панорамным окном на крытую террасу

Сравнить проект В избранное
Проект одноэтажного дома из SIP панелей с панорамным окном на крытую террасу / 1
Проект одноэтажного дома из SIP панелей с панорамным окном на крытую террасу / 2
Проект одноэтажного дома из SIP панелей с панорамным окном на крытую террасу / 3
Проект одноэтажного дома из SIP панелей с панорамным окном на крытую террасу / 4
Проект одноэтажного дома из SIP панелей с панорамным окном на крытую террасу / 1
Проект одноэтажного дома из SIP панелей с панорамным окном на крытую террасу / 2
Проект одноэтажного дома из SIP панелей с панорамным окном на крытую террасу / 3
Проект одноэтажного дома из SIP панелей с панорамным окном на крытую террасу / 4
D5130
110 м²
Подготовка проекта:
25 рабочих дней
Стоимость проекта
Купить проект
Задайте вопросы по проекту нашему архитектору
8 (800) 200-28-83
Время работы: пн-вс: с 9:00 до 20:00
Задать вопрос по проекту

Технические характеристики
Общие
Материал стен
SIP
Общая площадь
110 м²
Жилая площадь
66 м²
Площадь застройки
172.6 м²
Приведенная площадь
115.41 м²
Количество жилых комнат/спален
2
Этажи
1 этаж
Гараж
Нет гаража
Подвал / цокольный этаж
Без подвала
Длина дома
13 м
Ширина дома
9.4 м
Высота в коньке
6.2 м
Кровля
Металлочерепица
Облицовка внешних стен
Мокрая штукатурка
,
Облицовочный кирпич
Толщина несущих наружных стен
400 мм
Межэтажные перекрытия
По деревянным балкам
Внутренние не несущие перегородки
Газобетонные
Фундамент
Малозаглубленные ростверки
Терраса
Терраса крытая
Дополнительные
Окна
Окна до пола
,
Панорамные окна
Камин
Есть
Сауна/баня внутри
Нет
Площадь гостиной
25.6 м²
Площадь кухни
12.5 м²
Количество санузлов
1
Окно в ванной комнате
Есть
Котельная
Есть
Хозяйский санузел
Есть
Кладовая
1
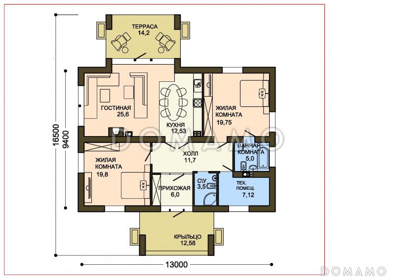
Планы помещений
Фасады
Описание проекта

Одноэтажный дом в стандартном общем размере 10×13 метров для круглогодичного проживания семьи из 3-4 человек. Одна из основных особенностей — большая, совмещенная с кухней гостиная с панорамным окном и выходом на крытую террасу, отличное место для вечернего чаепития или отдыха возле бассейна. Основа планировки — разделение функциональных и жилых помещений, в число последних входит санузел и просторная ванная комната.

Особенности проекта:

  • Два входа — парадный с крыльца и внутренний с террасы.
  • Теплый и недорогой материал наружных стен — дополнительная экономия на отоплении.
  • Большие окна гостиной — естественный источник освещения.
  • Просторная кухня-гостиная, возможность зонирования или разделения на отдельные помещения.
  • Отдаленные друг от друга спальни — гарантия приватности.
  • Оригинальная архитектура по мотивам стиля шале.
Категории проекта: для постоянного проживания из сип панелей в английском стиле в скандинавском стиле современные по технологии Velox от 100 до 200 кв.м в европейском стиле с террасой из бруса в стиле замка готовые в финском стиле в стиле минимализм одноэтажные одноэтажные до 150 кв. м. одноэтажные с котельной с котельной до 120 кв.м до 150 кв.м до 200 кв.м загородные с четырехскатной крышей с камином прямоугольные с панорамным остеклением Проекты одноэтажных домов из сип панелей Проекты одноэтажных домов с террасой Типовые проекты загородных одноэтажных домов без гаража одноэтажные без гаража с террасой и камином облицованные кирпичом одноэтажные финские одноэтажные с 2 спальнями одноэтажные до 120 кв.м с панорамными окнами и террасой одноэтажные до 200 кв м до 140 кв м до 130 кв м одноэтажные современные одноэтажные в стиле минимализм одноэтажные с четырехскатной крышей одноэтажные прямоугольные одноэтажные с панорамными окнами одноэтажные с окнами в пол одноэтажные с камином одноэтажные до 180 м2 современные без гаража современные с панорамными окнами современные с окнами в пол современные с террасой современные небольшие современные до 120 кв. м современные до 150 кв. м современные от 100 до 200 кв. м скандинавские для постоянного проживания скандинавские без гаража скандинавские с окнами в пол скандинавские с панорамными окнами скандинавские с террасой скандинавские готовые скандинавские прямоугольные скандинавские маленькие скандинавские до 120 м2 скандинавские до 150 кв. м скандинавские от 100 до 200 м2 скандинавские с камином скандинавские с четырехскатной крышей скандинавские с котельной до 120 кв.м из SIP-панелей до 120 кв.м готовые до 120 кв.м для постоянного проживания до 120 кв.м без гаража до 120 кв.м с четырехскатной крышей до 120 кв.м с окнами в пол до 120 кв.м с панорамными окнами до 120 кв.м с террасой до 120 кв.м минимализм до 120 кв.м с котельной до 120 кв.м с 2 спальнями до 120 кв.м прямоугольные до 150 кв.м из SIP-панелей до 150 кв.м для постоянного проживания до 150 кв.м без гаража до 150 кв.м с четырехскатной крышей до 150 кв.м с окнами до пола до 150 кв.м с панорамными окнами до 150 кв.м минимализм до 150 кв.м готовые до 150 кв.м прямоугольные до 150 кв.м с котельной до 150 кв.м без бани до 150 кв.м с террасой до 150 кв.м без подвала до 150 кв.м с 2 спальнями до 150 кв.м с камином в стиле минимализм для постоянного проживания в стиле минимализм без гаража в стиле минимализм прямоугольные в стиле минимализм с четырехскатной крышей в стиле минимализм с окнами в пол в стиле минимализм с панорамными окнами в стиле минимализм с террасой в стиле минимализм с котельной в стиле минимализм с камином в стиле минимализм недорогие в стиле минимализм от 100 до 200 м2 в стиле минимализм небольшие в стиле минимализм с ростверкным фундаментом недорогие без гаража недорогие с террасой недорогие для постоянного проживания недорогие с четырехскатной крышей недорогие с окнами до пола недорогие с панорамными окнами недорогие без бани недорогие с котельной недорогие с камином недорогие прямоугольные недорогие до 120 м2 недорогие до 150 м2 недорогие от 100 до 200 м2 из клееного бруса без гаража Показать все категории Скрыть категории

Похожие проекты
Состав проекта
Входит в стоимость
Цена, руб. Сроки, дней
Комплект архитектурно-строительных чертежей (АС) Входит в стоимость 25 рабочих дней
Разрабатывается отдельно
Цена, руб. Сроки, дней
Адаптация фундамента (изменение типа фундамента) по запросу 14 рабочих дней
Дизайн интерьера (стоимость от 2200руб. за квад.метр площади) по запросу 30 рабочих дней
Внесение изменений в проект по запросу 20 рабочих дней
Фэншуй дома 20 000 ₽ 14 рабочих дней в корзину
Фэншуй участка 15 000 ₽ 14 рабочих дней в корзину
Фэншуй полная консультация дом+участок с выездом на объект 100 000 ₽ 30 рабочих дней в корзину
Опции проекта вы можете заказать в корзине при оформлении заказа
Предложения строителей Выбрать регион
Минимальная
3 346 890 ₽
Стандарт
3 693 120 ₽
Под чистовую отделку
6 001 320 ₽
Показать подробные комплектации
Сравнить 0 комплектаций
Свернуть все
Развернуть все
Минимальная
3 346 890 ₽
Сравнить
Стандарт
3 693 120 ₽
Сравнить
Под чистовую отделку
6 001 320 ₽
Сравнить
Кровля
Кровельное покрытие
Металлочерепица
Мягкая черепица
Цементно-песчаная черепица
Обрешетка
Сухой строганый брус
Сухой строганый брус
Сухой строганый брус
Контробрешетка
Сухой строганый брус
Сухой строганый брус
Сухой строганый брус
Противоконденсатная (ветро-гидроизоляционная) пленка
ПВХ пленка GrandLine
ПВХ пленка GrandLine
ПВХ пленка GrandLine
Стропильная система
Доска строганная антисептированная
Доска строганная антисептированная
Доска строганная антисептированная
Утепление чердачного перекрытия и стропильной системы
Утепление 200 мм
Утепление 200 мм
Утепление 200 мм
Подшивка свесов кровли
Установка J- профиля, J - фаска, саморезы оцинкованные с
Установка J- профиля, J - фаска, саморезы оцинкованные с
Устройство подсистемы из бруска сухого, строганного 45
Подшивка потолков террас и лоджий
Водосточная система
Водосточная система Grand Line пластиковая Кронштейны мет
Водосточная система Grand Line пластиковая Кронштейны мет
Водосточная система Grand Line пластиковая Кронштейны мет
Система снегозадержания
Grand Line
Grand Line
Grand Line
Молниезащита
Фундамент
Сваи ж/бетонные
Железобетонные забивные сваи 150*150 * 2500
Сваи стальные винтовые
Винтовые сваи 108/2500 Заполнение полости свай ЦПС, прива
Лента ж/бетонная монолитная мелкозаглубленная
Лента ж/бетонная монолитная на глубину промерзания
Лента ж/бетонная сборная (из ФБС) на глубину промерзания
Плита ж/бетонная монолитная мелкозаглубленная
УШП (Утепленная Шведская Плита)
Плита монолитная 300 мм
Бетоннная отмостка по периметру дома
Дренажная система по периметру дома
Ливневая система
Облицовка цоколя фундамента
Система контурного заземления
Стены
Несущая часть стены
Внешние стены СИП 174 мм
Внешние стены СИП 174 мм
Внешние стены СИП 224 мм
Фасадная отделка
Фасад "Виниловый сайдинг"
Фасад имитация бруса
Фасад фиброцементный Cedral
Ветрозащита
Утепление стены
Утепление фасада утеплителем Paroc плотностью 110 кг\м3
Утепление фасада утеплителем Paroc плотностью 110 кг\м3
Утепление фасада утеплителем Paroc плотностью 110 кг\м3
Пароизоляция
Внутренняя обшивка/штукатурка со стороны помещения
Пол первого этажа
Несущая часть перекрытия
Межэтажное перекрытие "Стропильная система" 200 мм
Перекрытие межэтажное СИП 224 мм
Перекрытие межэтажное СИП 224 мм
Теплоизоляция цокольного перекрытия
Стяжка/подготовка под чистый пол
Стяжка по проекту
Стяжка по проекту
Стяжка по проекту
Перекрытия над первым и последующими этажами
Несущая часть перекрытия
Межэтажное перекрытие "Стропильная система" 200 мм
Перекрытие межэтажное СИП 224 мм
Перекрытие межэтажное СИП 224 мм
Звукоизоляция/теплоизоляция в перекрытии
Стяжка/подготовка под чистый пол
Отделка потолка нижележащего этажа
Окна и внешние двери
Окна
Двухкамерный стеклопакет
Двухкамерный стеклопакет
Двухкамерный стеклопакет
Оконные наличники
Металлические наличники
Металлические наличники
Металлические наличники
Откосы в помещении
Отливы снаружи
Металлические отливы
Металлические отливы
Металлические отливы
Подоконники
Входные двери
Дверь металлическая огнеупорная
Дверь металлическая огнеупорная
Дверь металлическая огнеупорная
Внутренние конструкции
Внутренние несущие стены
Стены внутренние, несущие 150 мм
Стены внутренние, несущие СИП 174 мм
Стены внутренние, несущие СИП 224 мм
Внутренние ненесущие стены
Перегородки внутренние 100 мм
Перегородки внутренние 150 мм
Перегородки внутренние 150 мм
Звукоизоляция внутренних стен/перегородок
Межэтажная строительная (черновая) лестница
Черновая деревянная лестница
Черновая деревянная лестница
Черновая деревянная лестница
Межэтажная постоянная (чистовая) лестница
Межкомнатные двери
Высота потолков 1 этажа
В соответствии с проектом
В соответствии с проектом
В соответствии с проектом
Высота потолков 2 этажа
В соответствии с проектом
В соответствии с проектом
В соответствии с проектом
Настилы полов и ограждения крылец, террас, балконов
Гидроизоляция полов балконов
Инженерное оснащение
Жидкостной теплый пол
Электрический теплый пол
Система вентиляции
В соответствии с проектом
В соответствии с проектом
В соответствии с проектом
Только вводы воды, электричества, выводы канализации
В соответствии с проектом
В соответствии с проектом
В соответствии с проектом
Электроразводка и электрощит
В соответствии с проектом
В соответствии с проектом
В соответствии с проектом
Разводка хол. и гор. водоснабжения (ХВС и ГВС)
В соответствии с проектом
В соответствии с проектом
В соответствии с проектом
Разводка батарей и/или системы теплого пола. Без оборудования котельной.
В соответствии с проектом
В соответствии с проектом
В соответствии с проектом
Иное инженерное оснащение
В соответствии с проектом
В соответствии с проектом
В соответствии с проектом
Подготовка участка для строительства
Устройство временного щита электроснабжения
В соответствии с проектом производства работ
В соответствии с проектом производства работ
В соответствии с проектом производства работ
Устройство въезда на участок
В соответствии с проектом производства работ
В соответствии с проектом производства работ
В соответствии с проектом производства работ
Дорога на участке до пятна застройки
Подъем пятна застройки
Подготовка пятна застройки для фундаментных работ
В соответствии с проектом производства работ
В соответствии с проектом производства работ
В соответствии с проектом производства работ
Перемещение или вывоз грунта из котлована фундамента
В соответствии с проектом производства работ
В соответствии с проектом производства работ
В соответствии с проектом производства работ
Обеспечение строительного процесса
Доставка стройматериалов
В соответствии с проектом производства работ
В соответствии с проектом производства работ
В соответствии с проектом производства работ
Генератор для обеспечения электричеством
В соответствии с проектом производства работ
В соответствии с проектом производства работ
В соответствии с проектом производства работ
Уборка и вывоз строительного мусора
В соответствии с проектом производства работ
В соответствии с проектом производства работ
В соответствии с проектом производства работ
Организация проживания рабочих (бытовка)
В соответствии с проектом производства работ
В соответствии с проектом производства работ
В соответствии с проектом производства работ
Биотуалет для рабочих
В соответствии с проектом производства работ
В соответствии с проектом производства работ
В соответствии с проектом производства работ
Гарантия на все выполненные работы
Гарантия
15 лет
15 лет
15 лет
Свернуть
Отзывы покупателей
Рейтинг покупателей
0 / 5 5 5 1
На основе 1 оценок покупателей
0%
0%
0%
0%
0%
Отзывы о проекте D5130
Отзыв о проекте D5130
Чтобы оставить отзыв, пожалуйста авторизуйтесь.
Подбор строительной компании
Не знаете кому доверить строительство дома? Мы можем помочь! Подберем для вас из сотен наших партнеров несколько компаний с лучшем соотношением цена/качество под конкретно ваш запрос.
Подобрать