Главная Проекты домов Проект небольшого двухэтажного особняка из SIP панелей с парадным фасадом

D4847 Проект небольшого двухэтажного особняка из SIP панелей с парадным фасадом

Сравнить проект В избранное
Проект небольшого двухэтажного особняка из SIP панелей с парадным фасадом / 1
Проект небольшого двухэтажного особняка из SIP панелей с парадным фасадом / 2
Проект небольшого двухэтажного особняка из SIP панелей с парадным фасадом / 1
Проект небольшого двухэтажного особняка из SIP панелей с парадным фасадом / 2
D4847
99 м²
Подготовка проекта:
50 рабочих дней
Стоимость проекта
Купить проект
Задайте вопросы по проекту нашему архитектору
8 (800) 200-28-83
Время работы: пн-вс: с 9:00 до 20:00
Задать вопрос по проекту

Технические характеристики
Общие
Материал стен
SIP
Общая площадь
99 м²
Жилая площадь
60 м²
Площадь застройки
72 м²
Приведенная площадь
96.71 м²
Количество жилых комнат/спален
4
Этажи
2 этажа
Гараж
Нет гаража
Подвал / цокольный этаж
Без подвала
Длина дома
9.9 м
Ширина дома
7 м
Высота в коньке
8.7 м
Кровля
Металлочерепица
Облицовка внешних стен
Мокрая штукатурка
,
Облицовка камнем
Толщина несущих наружных стен
375 мм
Межэтажные перекрытия
По деревянным балкам
Внутренние не несущие перегородки
Каркасно-обшивные
Фундамент
Монолитная ж/бетонная плита
Терраса
Терраса крытая
Дополнительные
Сауна/баня внутри
Нет
Площадь кухни
20.3 м²
Количество санузлов
3
Котельная
Есть
Кабинет
Есть
Хозяйский санузел
Есть
Хозяйская гардеробная
Есть
Кладовая
1
Дом для узких участков
Есть
Балкон / лоджия
Балкон
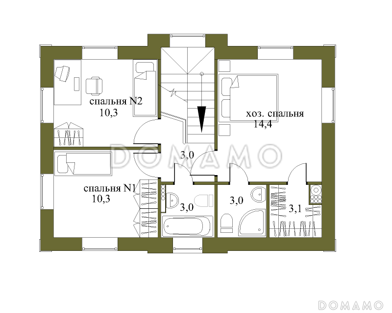
Планы помещений
Фасады
Описание проекта

Основной задачей при проектировании - было создать парадный особняк, с запоминающимся входным фасадом, при небольшой общей площади самого дома. Габариты дома - 6,9 х 9,9 м.

 В доме - два полноценных этажа, высотой по 2,8м. Коттедж поставлен на малозаглубленную плиту, подходящую и для глинистых грунтов. Перекрытие над 1-м этажом - деревянные балки. При длине пролета 6,0м - перекрытие может быть выполнено покупными пустотными ж/б плитами, или монолитной ж/б плитой (чертежи по монолитной плите - готовы).

В доме - нет внутренних несущих стен. Помещения и 1-го, и 2-го этажей - могут быть перепланированы самим владельцем.

Нужно отметить приватную зону при хозяйской спальне, с отдельным санузлом и гардеробной.

Лестница на 2-ой этаж - пологая, без забежных ступеней.

Минимальные размеры участка для этого строения: 13,3 х 16 м  (2,13 соток).


Категории проекта: для постоянного проживания из сип панелей в английском стиле в классическом стиле для узких участков по технологии Velox до 100 кв.м с эркером с террасой готовые двухэтажные с котельной до 120 кв.м до 150 кв.м до 200 кв.м 6х10 загородные с четырехскатной крышей с гардеробной узкие прямоугольные с балконом двухэтажные с эркером двухэтажные из сип панелей Проекты двухэтажных домов с террасой Проекты двухэтажных домов с верандой без гаража с кабинетом маленькие каменные двухэтажные до 150 кв м маленькие двухэтажные с 4 спальнями до 140 кв м двухэтажные до 100 кв м недорогие до 130 кв м двухэтажные до 130 кв.м с балконом и террасой до 100 кв м из сип панелей узкие двухэтажные двухэтажные до 120 кв.м двухэтажные до 180 кв.м двухэтажные с 4 спальнями двухэтажные с балконом двухэтажные с балконом и террасой двухэтажные в классическом стиле двухэтажные эконом класса двухэтажные до 150 кв.м с террасой двухэтажные без гаража классические из сип-панелей классические для постоянного проживания классические без гаража классические с 4 спальнями классические с террасой классические готовые классические для узких участков классические недорогие классические с котельной классические с большой кухней классические без подвала классические с балконом классические прямоугольные классические с четырехскатной крышей классические с кабинетом до 100 кв.м для постоянного проживания до 100 кв.м с террасой до 100 кв.м с котельной до 100 кв.м прямоугольные до 100 кв.м с балконами до 100 кв.м в классическом стиле до 100 кв.м для узких участков до 100 кв.м с четырехскатной крышей до 100 кв.м с большой кухней до 100 кв.м с 4 спальнями до 120 кв.м из SIP-панелей до 120 кв.м готовые до 120 кв.м для постоянного проживания до 120 кв.м без гаража до 120 кв.м с четырехскатной крышей до 120 кв.м с террасой до 120 кв.м классические до 120 кв.м с котельной до 120 кв.м с кабинетом до 120 кв.м с 4 спальнями до 120 кв.м с большой кухней до 120 кв.м прямоугольные до 120 кв.м с балконом до 150 кв.м из SIP-панелей до 150 кв.м для постоянного проживания до 150 кв.м без гаража до 150 кв.м с четырехскатной крышей до 150 кв.м классические до 150 кв.м для узких участков до 150 кв.м готовые до 150 кв.м с балконом до 150 кв.м прямоугольные до 150 кв.м с котельной до 150 кв.м с кабинетом до 150 кв.м с мастер-спальней до 150 кв.м без бани до 150 кв.м с террасой до 150 кв.м без подвала до 150 кв.м с 4 спальнями до 150 кв.м с большой кухней маленькие в классическом стиле маленькие с террасой маленькие для постоянного проживания маленькие недорогие маленькие для узких участков маленькие готовые маленькие с балконом маленькие прямоугольные маленькие с четырехскатной крышей маленькие без бани недорогие двухэтажные недорогие в английском стиле недорогие без гаража недорогие с террасой недорогие для постоянного проживания недорогие с четырехскатной крышей недорогие без бани недорогие с кабинетом недорогие с котельной недорогие с балконом недорогие для узких участков недорогие прямоугольные недорогие до 100 м2 недорогие до 120 м2 недорогие до 150 м2 из клееного бруса без гаража Показать все категории Скрыть категории

Похожие проекты
Состав проекта
Входит в стоимость
Цена, руб. Сроки, дней
Комплект архитектурно-строительных чертежей (АС) Входит в стоимость 25 рабочих дней
Готово к продаже
Цена, руб. Сроки, дней
Электронная копия проекта (скан распечатанной версии) 4 000 ₽ 3 рабочих дня в корзину
Разрабатывается отдельно
Цена, руб. Сроки, дней
Адаптация фундамента (изменение типа фундамента) по запросу 14 рабочих дней
Дизайн интерьера (стоимость от 2200руб. за квад.метр площади) по запросу 30 рабочих дней
Внесение изменений в проект по запросу 20 рабочих дней
Фэншуй дома 20 000 ₽ 14 рабочих дней в корзину
Фэншуй участка 15 000 ₽ 14 рабочих дней в корзину
Фэншуй полная консультация дом+участок с выездом на объект 100 000 ₽ 30 рабочих дней в корзину
Опции проекта вы можете заказать в корзине при оформлении заказа
Предложения строителей Выбрать регион
Минимальная
2 804 590 ₽
Стандарт
3 094 720 ₽
Под чистовую отделку
5 028 920 ₽
Показать подробные комплектации
Сравнить 0 комплектаций
Свернуть все
Развернуть все
Минимальная
2 804 590 ₽
Сравнить
Стандарт
3 094 720 ₽
Сравнить
Под чистовую отделку
5 028 920 ₽
Сравнить
Кровля
Кровельное покрытие
Металлочерепица
Мягкая черепица
Цементно-песчаная черепица
Обрешетка
Сухой строганый брус
Сухой строганый брус
Сухой строганый брус
Контробрешетка
Сухой строганый брус
Сухой строганый брус
Сухой строганый брус
Противоконденсатная (ветро-гидроизоляционная) пленка
ПВХ пленка GrandLine
ПВХ пленка GrandLine
ПВХ пленка GrandLine
Стропильная система
Доска строганная антисептированная
Доска строганная антисептированная
Доска строганная антисептированная
Утепление чердачного перекрытия и стропильной системы
Утепление 200 мм
Утепление 200 мм
Утепление 200 мм
Подшивка свесов кровли
Установка J- профиля, J - фаска, саморезы оцинкованные с
Установка J- профиля, J - фаска, саморезы оцинкованные с
Устройство подсистемы из бруска сухого, строганного 45
Подшивка потолков террас и лоджий
Водосточная система
Водосточная система Grand Line пластиковая Кронштейны мет
Водосточная система Grand Line пластиковая Кронштейны мет
Водосточная система Grand Line пластиковая Кронштейны мет
Система снегозадержания
Grand Line
Grand Line
Grand Line
Молниезащита
Фундамент
Сваи ж/бетонные
Железобетонные забивные сваи 150*150 * 2500
Сваи стальные винтовые
Винтовые сваи 108/2500 Заполнение полости свай ЦПС, прива
Лента ж/бетонная монолитная мелкозаглубленная
Лента ж/бетонная монолитная на глубину промерзания
Лента ж/бетонная сборная (из ФБС) на глубину промерзания
Плита ж/бетонная монолитная мелкозаглубленная
УШП (Утепленная Шведская Плита)
Плита монолитная 300 мм
Бетоннная отмостка по периметру дома
Дренажная система по периметру дома
Ливневая система
Облицовка цоколя фундамента
Система контурного заземления
Стены
Несущая часть стены
Внешние стены СИП 174 мм
Внешние стены СИП 174 мм
Внешние стены СИП 224 мм
Фасадная отделка
Фасад "Виниловый сайдинг"
Фасад имитация бруса
Фасад фиброцементный Cedral
Ветрозащита
Утепление стены
Утепление фасада утеплителем Paroc плотностью 110 кг\м3
Утепление фасада утеплителем Paroc плотностью 110 кг\м3
Утепление фасада утеплителем Paroc плотностью 110 кг\м3
Пароизоляция
Внутренняя обшивка/штукатурка со стороны помещения
Пол первого этажа
Несущая часть перекрытия
Межэтажное перекрытие "Стропильная система" 200 мм
Перекрытие межэтажное СИП 224 мм
Перекрытие межэтажное СИП 224 мм
Теплоизоляция цокольного перекрытия
Стяжка/подготовка под чистый пол
Стяжка по проекту
Стяжка по проекту
Стяжка по проекту
Перекрытия над первым и последующими этажами
Несущая часть перекрытия
Межэтажное перекрытие "Стропильная система" 200 мм
Перекрытие межэтажное СИП 224 мм
Перекрытие межэтажное СИП 224 мм
Звукоизоляция/теплоизоляция в перекрытии
Стяжка/подготовка под чистый пол
Отделка потолка нижележащего этажа
Окна и внешние двери
Окна
Двухкамерный стеклопакет
Двухкамерный стеклопакет
Двухкамерный стеклопакет
Оконные наличники
Металлические наличники
Металлические наличники
Металлические наличники
Откосы в помещении
Отливы снаружи
Металлические отливы
Металлические отливы
Металлические отливы
Подоконники
Входные двери
Дверь металлическая огнеупорная
Дверь металлическая огнеупорная
Дверь металлическая огнеупорная
Внутренние конструкции
Внутренние несущие стены
Стены внутренние, несущие 150 мм
Стены внутренние, несущие СИП 174 мм
Стены внутренние, несущие СИП 224 мм
Внутренние ненесущие стены
Перегородки внутренние 100 мм
Перегородки внутренние 150 мм
Перегородки внутренние 150 мм
Звукоизоляция внутренних стен/перегородок
Межэтажная строительная (черновая) лестница
Черновая деревянная лестница
Черновая деревянная лестница
Черновая деревянная лестница
Межэтажная постоянная (чистовая) лестница
Межкомнатные двери
Высота потолков 1 этажа
В соответствии с проектом
В соответствии с проектом
В соответствии с проектом
Высота потолков 2 этажа
В соответствии с проектом
В соответствии с проектом
В соответствии с проектом
Настилы полов и ограждения крылец, террас, балконов
Гидроизоляция полов балконов
Инженерное оснащение
Жидкостной теплый пол
Электрический теплый пол
Система вентиляции
В соответствии с проектом
В соответствии с проектом
В соответствии с проектом
Только вводы воды, электричества, выводы канализации
В соответствии с проектом
В соответствии с проектом
В соответствии с проектом
Электроразводка и электрощит
В соответствии с проектом
В соответствии с проектом
В соответствии с проектом
Разводка хол. и гор. водоснабжения (ХВС и ГВС)
В соответствии с проектом
В соответствии с проектом
В соответствии с проектом
Разводка батарей и/или системы теплого пола. Без оборудования котельной.
В соответствии с проектом
В соответствии с проектом
В соответствии с проектом
Иное инженерное оснащение
В соответствии с проектом
В соответствии с проектом
В соответствии с проектом
Подготовка участка для строительства
Устройство временного щита электроснабжения
В соответствии с проектом производства работ
В соответствии с проектом производства работ
В соответствии с проектом производства работ
Устройство въезда на участок
В соответствии с проектом производства работ
В соответствии с проектом производства работ
В соответствии с проектом производства работ
Дорога на участке до пятна застройки
Подъем пятна застройки
Подготовка пятна застройки для фундаментных работ
В соответствии с проектом производства работ
В соответствии с проектом производства работ
В соответствии с проектом производства работ
Перемещение или вывоз грунта из котлована фундамента
В соответствии с проектом производства работ
В соответствии с проектом производства работ
В соответствии с проектом производства работ
Обеспечение строительного процесса
Доставка стройматериалов
В соответствии с проектом производства работ
В соответствии с проектом производства работ
В соответствии с проектом производства работ
Генератор для обеспечения электричеством
В соответствии с проектом производства работ
В соответствии с проектом производства работ
В соответствии с проектом производства работ
Уборка и вывоз строительного мусора
В соответствии с проектом производства работ
В соответствии с проектом производства работ
В соответствии с проектом производства работ
Организация проживания рабочих (бытовка)
В соответствии с проектом производства работ
В соответствии с проектом производства работ
В соответствии с проектом производства работ
Биотуалет для рабочих
В соответствии с проектом производства работ
В соответствии с проектом производства работ
В соответствии с проектом производства работ
Гарантия на все выполненные работы
Гарантия
15 лет
15 лет
15 лет
Свернуть
Отзывы покупателей
Рейтинг покупателей
0 / 5 5 5 1
На основе 1 оценок покупателей
0%
0%
0%
0%
0%
Отзывы о проекте D4847
Отзыв о проекте D4847
Чтобы оставить отзыв, пожалуйста авторизуйтесь.
Подбор строительной компании
Не знаете кому доверить строительство дома? Мы можем помочь! Подберем для вас из сотен наших партнеров несколько компаний с лучшем соотношением цена/качество под конкретно ваш запрос.
Подобрать