Главная Проекты домов Проект двухэтажного дома с эксплуатируемой кровлей, 4 спальнями, кухней-гостиной и местами для хранения

D4041 Проект двухэтажного дома с эксплуатируемой кровлей, 4 спальнями, кухней-гостиной и местами для хранения

Сравнить проект В избранное
Технические характеристики
Общие
Материал стен
Газобетон
Общая площадь
143 м²
Площадь застройки
100.3 м²
Приведенная площадь
107.74 м²
Количество жилых комнат/спален
4
Этажи
2 этажа
Гараж
Нет гаража
Подвал / цокольный этаж
Без подвала
Длина дома
7.4 м
Ширина дома
7.4 м
Высота в коньке
8.82 м
Кровля
Рулонная кровля
Облицовка внешних стен
Деревянная вагонка
,
Мокрая штукатурка
Межэтажные перекрытия
Монолитные
Внутренние не несущие перегородки
Газобетонные
Фундамент
Монолитная ж/бетонная плита
Терраса
Терраса крытая
Дополнительные
Сауна/баня внутри
Нет
Площадь гостиной
13.7 м²
Площадь кухни
13 м²
Количество санузлов
2
Окно в ванной комнате
Есть
Котельная
Есть
Кладовая
2
Балкон / лоджия
Балкон
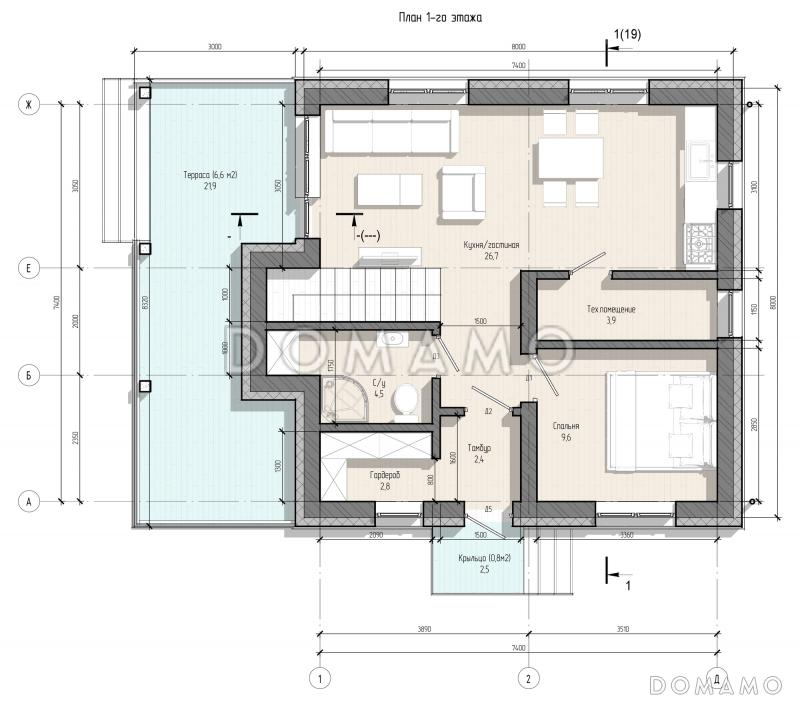
Планы помещений
Фасады
Описание проекта
Компания Domamo предлагает проект двухэтажного дома с эксплуатируемой кровлей, 4 спальнями, кухней-гостиной и местами для хранения D4041. Общая площадь - 143 м2, размер - 7.4х7.4 м. Фундамент - монолитная ж/бетонная плита, кровля - рулонная кровля, внешняя отделка - деревянная вагонка мокрая штукатурка. Для заказа проекта или внесения изменений свяжитесь с нами с помощью форм обратной связи на сайте или по телефону +7 (800) 200-28-83.
Категории проекта: для постоянного проживания пенобетон в стиле хай-тек современные для узких участков от 100 до 200 кв.м в европейском стиле с террасой из газобетона в стиле хай-тек из газобетона готовые двухэтажные с котельной двухэтажные из газобетона из газосиликатных блоков двухэтажные из пеноблоков с плоской крышей до 150 кв.м до 200 кв.м 6х10 7х8 7х7 загородные из керамзитобетонных блоков квадратные узкие с балконом из газобетона с террасой из блоков двухэтажные из блоков в стиле хай-тек с плоской крышей из пеноблоков с террасой загородные из газобетона Проекты двухэтажных домов с террасой Проекты двухэтажных домов с верандой без гаража двухэтажные до 150 кв м двухэтажные 200 кв м с 4 спальнями до 140 кв м недорогие до 130 кв м двухэтажные до 130 кв.м с балконом и террасой современный с плоской крышей из пеноблоков загородные двухэтажные до 180 кв.м двухэтажные с 4 спальнями двухэтажные с балконом двухэтажные с балконом и террасой двухэтажные в современном стиле двухэтажные эконом класса двухэтажные до 150 кв.м с террасой двухэтажные без гаража из газобетона до 150 кв.м из газобетона до 200 кв.м из газобетона от 100 до 200 кв.м из газобетона с плоской крышей из газобетона современные из газобетона с балконом из газобетона с котельной из газобетона квадратные из газобетона готовые из газобетона с четырьмя спальнями из газобетона недорогие из газобетона для постоянного проживания двухэтажные из газобетона без гаража двухэтажные из газобетона с террасой двухэтажные из газобетона недорогие двухэтажные из газобетона с котельной двухэтажные из газобетона современные двухэтажные из газобетона в стиле хай-тек двухэтажные из газобетона с плоской крышей двухэтажные из газобетона до 150 кв. м двухэтажные из газобетона до 200 кв. м двухэтажные из газобетона без подвала двухэтажные из газобетона с 4 спальнями современные без гаража современные с террасой современные до 150 кв. м современные от 100 до 200 кв. м европейские с плоской крышей до 150 кв.м для постоянного проживания до 150 кв.м без гаража до 150 кв.м с плоской крышей до 150 кв.м готовые до 150 кв.м с балконом до 150 кв.м квадратные до 150 кв.м с котельной до 150 кв.м без бани до 150 кв.м с террасой до 150 кв.м без подвала до 150 кв.м с 4 спальнями из пеноблоков в современном стиле из пеноблоков в стиле хай-тек из пеноблоков с плоской крышей из пеноблоков квадратные из пеноблоков с балконом из пеноблоков для постоянного проживания из пеноблоков недорогие из пеноблоков готовые из пеноблоков до 150 м кв. из пеноблоков от 100 до 200 м2 из пеноблоков с 4 спальнями двухэтажные в стиле хай-тек хай-тек для постоянного проживания хай-тек без гаража хай-тек с террасой хай-тек с балконом хай-тек готовые хай-тек недорогие хай-тек на монолитном фундаменте хай-тек с котельной хай-тек с 4 спальнями хай-тек без бани хай-тек без подвала хай-тек до 150 м2 хай-тек от 100 до 200 м2 недорогие двухэтажные недорогие без гаража недорогие с террасой недорогие для постоянного проживания недорогие с плоской крышей недорогие без бани недорогие с котельной недорогие с балконом недорогие квадратные недорогие до 150 м2 недорогие от 100 до 200 м2 из клееного бруса без гаража с плоской крышей двухэтажные с плоской крышей и большой террасой с плоской крышей готовые с плоской крышей для постоянного проживания с плоской крышей и окном в ванной комнате с плоской крышей квадратные с плоской крышей и балконом с плоской крышей и монолитными перекрытиями с плоской крышей и облицовкой деревянной вагонкой с плоской крышей и облицовкой мокрой штукатуркой с плоской крышей и котельной с плоской крышей без сауны Показать все категории Скрыть категории

Похожие проекты
Состав проекта
Входит в стоимость
Цена, руб. Сроки, дней
Комплект архитектурно-строительных чертежей (АС) Входит в стоимость 3 рабочих дня
Разрабатывается отдельно
Цена, руб. Сроки, дней
Адаптация фундамента (изменение типа фундамента) по запросу 14 рабочих дней
Дизайн интерьера (стоимость от 2200руб. за квад.метр площади) по запросу 30 рабочих дней
Внесение изменений в проект по запросу 20 рабочих дней
Фэншуй дома 20 000 ₽ 14 рабочих дней в корзину
Фэншуй участка 15 000 ₽ 14 рабочих дней в корзину
Фэншуй полная консультация дом+участок с выездом на объект 100 000 ₽ 30 рабочих дней в корзину
Опции проекта вы можете заказать в корзине при оформлении заказа
Предложения строителей Москва и Московская область
Минимальная
3 663 160 ₽
Стандарт
4 525 080 ₽
Под чистовую отделку
5 925 700 ₽
Показать подробные комплектации
Минимальная
10 989 480 ₽
Стандарт
12 928 800 ₽
Под чистовую отделку
16 807 440 ₽
Показать подробные комплектации
Минимальная
5 677 898 ₽
Стандарт
8 425 268 ₽
Под чистовую отделку
13 370 534 ₽
Показать подробные комплектации
Минимальная
4 147 990 ₽
Стандарт
4 977 588 ₽
Под чистовую отделку
5 570 158 ₽
Показать подробные комплектации
Минимальная
3 477 416 ₽
Стандарт
5 103 643 ₽
Под чистовую отделку
5 460 263 ₽
Показать подробные комплектации
Минимальная
4 072 572 ₽
Стандарт
4 654 368 ₽
Под чистовую отделку
6 108 858 ₽
Показать подробные комплектации
Подбор строительной компании
Не знаете кому доверить строительство дома? Мы можем помочь! Подберем для вас из сотен наших партнеров несколько компаний с лучшем соотношением цена/качество под конкретно ваш запрос.
Подобрать
Посмотреть еще 32 компании Свернуть
Отзывы покупателей
Рейтинг покупателей
0 / 5 5 5 1
На основе 1 оценок покупателей
0%
0%
0%
0%
0%
Отзывы о проекте D4041
Отзыв о проекте D4041
Чтобы оставить отзыв, пожалуйста авторизуйтесь.
Подбор строительной компании
Не знаете кому доверить строительство дома? Мы можем помочь! Подберем для вас из сотен наших партнеров несколько компаний с лучшем соотношением цена/качество под конкретно ваш запрос.
Подобрать