Главная Проекты домов Проект просторного одноэтажного дома из газобетона с четырьмя спальнями, гаражом и панорамным остеклением гостиной

D3380 Проект просторного одноэтажного дома из газобетона с четырьмя спальнями, гаражом и панорамным остеклением гостиной

Сравнить проект В избранное
Технические характеристики
Общие
Материал стен
Газобетон
Общая площадь
223 м²
Площадь застройки
344.9 м²
Приведенная площадь
206.99 м²
Количество жилых комнат/спален
4
Этажи
1 этаж
Гараж
Встроенный гараж
Количество машин
2
Подвал / цокольный этаж
Без подвала
Длина дома
19.91 м
Ширина дома
18.41 м
Высота в коньке
6.24 м
Кровля
Металлочерепица
Облицовка внешних стен
Деревянная вагонка
,
Мокрая штукатурка
Толщина несущих наружных стен
380 мм
Межэтажные перекрытия
По деревянным балкам
Внутренние не несущие перегородки
Газобетонные
Фундамент
Ленточный заглубленный из ФБС
Терраса
Терраса открытая
Дополнительные
Окна
Окна до пола
,
Панорамные окна
Камин
Есть
Сауна/баня внутри
Нет
Площадь гостиной
40.5 м²
Площадь кухни
9.6 м²
Количество санузлов
2
Окно в ванной комнате
Есть
Котельная
Есть
Хозяйский санузел
Есть
Хозяйская гардеробная
Есть
Кладовая
3
Длина участка
27.91 м
Ширина участка
26.41 м
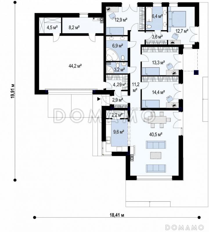
Планы помещений
Описание проекта
Компания Domamo предлагает проект просторного одноэтажного дома из газобетона с четырьмя спальнями, гаражом и панорамным остеклением гостиной D3380. Общая площадь - 223 м2, размер - 19.91х18.41 м. Фундамент - ленточный заглубленный из фбс, кровля - металлочерепица, внешняя отделка - деревянная вагонка мокрая штукатурка. Для заказа проекта или внесения изменений свяжитесь с нами с помощью форм обратной связи на сайте или по телефону +7 (800) 200-28-83.
Категории проекта: с гаражом для постоянного проживания пенобетон современные от 200 до 300 кв.м в европейском стиле с террасой из газобетона одноэтажные из пеноблоков готовые из газобетона с гаражом одноэтажные одноэтажные с гаражом одноэтажные с котельной с котельной одноэтажные из газобетона из газосиликатных блоков из пеноблоков с гаражом с двухскатной крышей загородные с четырехскатной крышей из керамзитобетонных блоков с камином с гардеробной угловые со встроенным гаражом с панорамным остеклением из газобетона с террасой из блоков одноэтажные из блоков из блоков с гаражом из пеноблоков с террасой загородные из газобетона Проекты одноэтажных домов с террасой Типовые проекты загородных одноэтажных домов с террасой и камином с гаражом под одной крышей одноэтажных из керамзитобетонных блоков одноэтажные с 4 спальнями одноэтажные с гаражом и террасой с гаражом на 2 машины с гаражом и террасой с 4 спальнями с панорамными окнами и террасой г-образные из пеноблоков загородные от 200 до 250 м одноэтажные современные одноэтажные с двухскатной крышей одноэтажные с четырехскатной крышей одноэтажные с панорамными окнами одноэтажные с окнами в пол одноэтажные с камином одноэтажные с 2 санузлами одноэтажные с большой гостиной одноэтажные из газобетона с гаражом одноэтажные из газобетона с террасой одноэтажные из газобетона с мансардой одноэтажные из газобетона с 4 спальнями современные панорамные окна окна в пол двухскатная крыша четырехскатная крыша угловые с большой гостиной с камином готовые проекты для постоянного проживания с котельной с гардеробной из газобетона от 200 до 300 кв.м из газобетона с двухскатной крышей из газобетона с четырехскатной крышей из газобетона современные из газобетона с панорамными окнами из газобетона с котельной из газобетона угловые из газобетона готовые из газобетона с камином из газобетона с четырьмя спальнями из газобетона для постоянного проживания современные с гаражом современные с двухскатной крышей современные с панорамными окнами современные с окнами в пол современные с террасой из пеноблоков в современном стиле из пеноблоков с двухскатной крышей из пеноблоков с четырехскатной крышей из пеноблоков с окнами до пола из пеноблоков с панорамными окнами из пеноблоков угловые из пеноблоков для постоянного проживания из пеноблоков готовые из пеноблоков с камином из пеноблоков от 200 до 300 м2 из пеноблоков с 4 спальнями из пеноблоков с большой гостиной недорогие с панорамными окнами из клееного бруса без гаража Показать все категории Скрыть категории

Похожие проекты
Состав проекта
Входит в стоимость
Цена, руб. Сроки, дней
Комплект архитектурно-строительных чертежей (АС) Входит в стоимость Готов к отправке
Готово к продаже
Цена, руб. Сроки, дней
Паспорт рабочего проекта 8 000 ₽ 5 рабочих дней в корзину
Инженерные разделы: ВК + ОВ + ЭО 30 850 ₽ Готов к отправке в корзину
Дополнительная копия проекта формата А3 6 500 ₽ 5 рабочих дней в корзину
Электронная копия проекта (скан распечатанной версии) 4 000 ₽ 3 рабочих дня в корзину
Разрабатывается отдельно
Цена, руб. Сроки, дней
Адаптация фундамента (изменение типа фундамента) по запросу 14 рабочих дней
Дизайн интерьера (стоимость от 2200руб. за квад.метр площади) по запросу 30 рабочих дней
Внесение изменений в проект по запросу 20 рабочих дней
Разработка Генплана участка, в масштабе 1:250 7 500 ₽ 15 рабочих дней в корзину
Фэншуй дома 20 000 ₽ 14 рабочих дней в корзину
Фэншуй участка 15 000 ₽ 14 рабочих дней в корзину
Фэншуй полная консультация дом+участок с выездом на объект 100 000 ₽ 30 рабочих дней в корзину
Опции проекта вы можете заказать в корзине при оформлении заказа
Варианты проекта Сравнить все варианты
Избранные проекты
Избранные строители
Предложения строителей Выбрать регион
Минимальная
7 037 660 ₽
Стандарт
8 693 580 ₽
Под чистовую отделку
11 384 450 ₽
Показать подробные комплектации
Минимальная
17 594 150 ₽
Стандарт
20 699 000 ₽
Под чистовую отделку
26 908 700 ₽
Показать подробные комплектации
Минимальная
9 368 367 ₽
Стандарт
13 901 448 ₽
Под чистовую отделку
22 060 994 ₽
Показать подробные комплектации
Минимальная
7 244 650 ₽
Стандарт
8 693 580 ₽
Под чистовую отделку
9 728 530 ₽
Показать подробные комплектации
Минимальная
6 680 809 ₽
Стандарт
9 805 116 ₽
Под чистовую отделку
10 490 253 ₽
Показать подробные комплектации
Минимальная
6 085 506 ₽
Стандарт
6 954 864 ₽
Под чистовую отделку
9 128 259 ₽
Показать подробные комплектации
Подбор строительной компании
Не знаете кому доверить строительство дома? Мы можем помочь! Подберем для вас из сотен наших партнеров несколько компаний с лучшем соотношением цена/качество под конкретно ваш запрос.
Подобрать
Посмотреть еще 32 компании Свернуть
Отзывы покупателей
Рейтинг покупателей
5 / 5 5 5 2
На основе 2 оценок покупателей
100%
0%
0%
0%
0%
Отзывы о проекте D3380
Отзыв о проекте D3380
Чтобы оставить отзыв, пожалуйста авторизуйтесь.
Комментарий
Красивый проект дома, одобряю)) Окно на кухне угловое - нравятся такие - обзор больше, если дети во дворе гуляют, удобно следить. Количество комнат тоже порадовало.
Комментарий
Очень удачная мастер-спальня, я считаю, ведь сама комната по сути отделена от остального дома своей гардеробной и ванной. Удобный гараж с подсобками. Ну и конечно, шикарное окно в два этажа в гостиной - это тоже очень красиво, хотя строительство его наверняка сильно дорогое...
Подбор строительной компании
Не знаете кому доверить строительство дома? Мы можем помочь! Подберем для вас из сотен наших партнеров несколько компаний с лучшем соотношением цена/качество под конкретно ваш запрос.
Подобрать