Главная Проекты домов Проект двухэтажного дома с небольшим кабинетом на втором этаже

D2012 Проект двухэтажного дома с небольшим кабинетом на втором этаже

Сравнить проект В избранное
Технические характеристики
Общие
Материал стен
Газобетон
Общая площадь
170 м²
Жилая площадь
112.4 м²
Площадь застройки
121.8 м²
Приведенная площадь
172.24 м²
Количество жилых комнат/спален
5
Этажи
2 этажа
Гараж
Нет гаража
Подвал / цокольный этаж
Без подвала
Длина дома
11.5 м
Ширина дома
10.0 м
Кровля
Металлочерепица
Облицовка внешних стен
Облицовочный кирпич
Толщина несущих наружных стен
400 мм
Межэтажные перекрытия
Монолитные
Внутренние не несущие перегородки
Газобетонные
Фундамент
Монолитная ж/бетонная плита
Терраса
Терраса крытая
Дополнительные
Камин
Есть
Сауна/баня внутри
Нет
Площадь гостиной
27.5 м²
Площадь кухни
14 м²
Количество санузлов
2
Окно в ванной комнате
Есть
Котельная
Есть
Кабинет
Есть
Хозяйская гардеробная
Есть
Кладовая
2
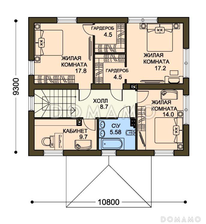
Планы помещений
Фасады
Описание проекта

Проект аккуратного двухэтажного дома из газобетона подойдет для строительства как в черте города, так и в коттеджном поселке. Стены облицованы кирпичом, входная группа представляет собой невысокое крыльцо, укрытое от осадков и ветра массивной крышей и широкими колоннами по бокам.

Входная дверь ведет в прихожую, в которой достаточно места для установки шкафа и обувной тумбы. Из холла можно перейти в остальные помещения: гостиную, кухню, спальню, санузел и хозблок. На втором этаже расположены еще три спальни, компактный кабинет и ванная.

Преимущества и особенности

  • в гостиной установлены окна до пола, визуально расширяющие комнату и украшающие ее панорамным видом на сад,

  • спальню на первом этаже оценят пожилые родственники и члены семьи, которым сложно подниматься по лестнице,

  • кабинет пригодится для того, чтобы компьютер не занимал место в спальне.

Категории проекта: для постоянного проживания пенобетон современные от 100 до 200 кв.м в европейском стиле с террасой из газобетона готовые двухэтажные с котельной двухэтажные из газобетона из газосиликатных блоков двухэтажные из пеноблоков до 200 кв.м 9х12 загородные с четырехскатной крышей из керамзитобетонных блоков с камином с гардеробной прямоугольные 10х12 из газобетона с террасой из блоков двухэтажные из блоков из пеноблоков с террасой загородные из газобетона Проекты двухэтажных домов с террасой Проекты двухэтажных домов с верандой без гаража с террасой и камином облицованные кирпичом с кабинетом двухэтажные 10 на 12 двухэтажные 200 кв м двухэтажные от 150 до 200 кв м из пеноблоков загородные с 5 спальнями двухэтажные до 180 кв.м двухэтажные с камином двухэтажные в современном стиле двухэтажные без гаража из газобетона до 200 кв.м из газобетона от 100 до 200 кв.м из газобетона с четырехскатной крышей из газобетона современные из газобетона с котельной из газобетона прямоугольные из газобетона готовые из газобетона с камином из газобетона с кабинетом из газобетона с изолированной кухней из газобетона 10х12 из газобетона для постоянного проживания двухэтажные из газобетона без гаража двухэтажные из газобетона с террасой двухэтажные из газобетона с камином двухэтажные из газобетона с кабинетом двухэтажные из газобетона с котельной двухэтажные из газобетона современные двухэтажные из газобетона с четырехскатной крышей двухэтажные из газобетона до 200 кв. м двухэтажные из газобетона без подвала двухэтажные из газобетона с изолированной кухней современные без гаража современные с террасой современные от 100 до 200 кв. м европейские 10х12 из пеноблоков в современном стиле из пеноблоков с четырехскатной крышей из пеноблоков прямоугольные из пеноблоков для постоянного проживания из пеноблоков готовые из пеноблоков с камином из пеноблоков 10х12 из пеноблоков от 100 до 200 м2 из пеноблоков с изолированной кухней из клееного бруса без гаража Показать все категории Скрыть категории

Похожие проекты
Состав проекта
Входит в стоимость
Цена, руб. Сроки, дней
Комплект архитектурно-строительных чертежей (АС) Входит в стоимость 3 рабочих дня
Готово к продаже
Цена, руб. Сроки, дней
Паспорт рабочего проекта 4 000 ₽ 3 рабочих дня в корзину
Дополнительная копия проекта формата А3 3 000 ₽ 3 рабочих дня в корзину
Две дополнительные копии проекта формата А3 + 1 паспорт рабочего проекта 10 000 ₽ 3 рабочих дня в корзину
Разрабатывается отдельно
Цена, руб. Сроки, дней
Адаптация фундамента (изменение типа фундамента) по запросу 14 рабочих дней
Дизайн интерьера (стоимость от 2200руб. за квад.метр площади) по запросу 30 рабочих дней
Внесение изменений в проект по запросу 20 рабочих дней
Фэншуй дома 20 000 ₽ 14 рабочих дней в корзину
Фэншуй участка 15 000 ₽ 14 рабочих дней в корзину
Фэншуй полная консультация дом+участок с выездом на объект 100 000 ₽ 30 рабочих дней в корзину
Опции проекта вы можете заказать в корзине при оформлении заказа
Варианты проекта Сравнить все варианты
Избранные проекты
Избранные строители
Предложения строителей Выбрать регион
Минимальная
5 856 160 ₽
Стандарт
7 234 080 ₽
Под чистовую отделку
9 473 200 ₽
Показать подробные комплектации
Минимальная
17 568 480 ₽
Стандарт
20 668 800 ₽
Под чистовую отделку
26 869 440 ₽
Показать подробные комплектации
Минимальная
8 596 498 ₽
Стандарт
12 756 094 ₽
Под чистовую отделку
20 243 367 ₽
Показать подробные комплектации
Минимальная
6 028 400 ₽
Стандарт
7 234 080 ₽
Под чистовую отделку
8 095 280 ₽
Показать подробные комплектации
Минимальная
5 559 218 ₽
Стандарт
8 159 008 ₽
Под чистовую отделку
8 729 123 ₽
Показать подробные комплектации
Минимальная
5 546 128 ₽
Стандарт
6 338 431 ₽
Под чистовую отделку
8 319 191 ₽
Показать подробные комплектации
Подбор строительной компании
Не знаете кому доверить строительство дома? Мы можем помочь! Подберем для вас из сотен наших партнеров несколько компаний с лучшем соотношением цена/качество под конкретно ваш запрос.
Подобрать
Посмотреть еще 32 компании Свернуть
Отзывы покупателей
Рейтинг покупателей
0 / 5 5 5 1
На основе 1 оценок покупателей
0%
0%
0%
0%
0%
Отзывы о проекте D2012
Отзыв о проекте D2012
Чтобы оставить отзыв, пожалуйста авторизуйтесь.
Подбор строительной компании
Не знаете кому доверить строительство дома? Мы можем помочь! Подберем для вас из сотен наших партнеров несколько компаний с лучшем соотношением цена/качество под конкретно ваш запрос.
Подобрать