111
Главная Проекты домов Проект красивого двухэтажного дома с хорошей планировкой

D1169 Проект красивого двухэтажного дома с хорошей планировкой

Сравнить проект В избранное
Проект красивого двухэтажного дома с хорошей планировкой / 1
Проект красивого двухэтажного дома с хорошей планировкой / 1
D1169
188 м²
Домокомплект
Артикул проекта: ПД-4
Компания: Element-House
Стоимость домокомплекта
918 000 ₽
Заказать подробную смету
+7 (909) XXX-XX-XX Показать телефон
Задать вопрос по проекту
Технические характеристики
Общие
Материал стен
Бревно
Общая площадь
188 м²
Приведенная площадь
150 м²
Количество жилых комнат/спален
4
Этажи
1 этаж + мансарда
Гараж
Нет гаража
Подвал / цокольный этаж
Без подвала
Длина дома
10.8 м
Ширина дома
10.5 м
Облицовка внешних стен
Без облицовки
Межэтажные перекрытия
По деревянным балкам
Внутренние не несущие перегородки
Каркасно-обшивные
Терраса
Терраса крытая
Дополнительные
Сауна/баня внутри
Нет
Площадь гостиной
24.2 м²
Площадь кухни
13.9 м²
Количество санузлов
3
Окно в ванной комнате
Есть
Котельная
Есть
Хозяйский санузел
Есть
Балкон / лоджия
Балкон
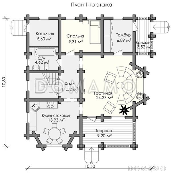
Планы помещений
Описание проекта

Дом в стиле русской усадьбы для семьи из 4-5 человек. Этот дом не требует облицовки, бревенчатые стены с эркерами выглядят необычно и будут особенно гармонично смотреться в окружении деревьев. 

Вход через прихожую ведет в гостиную, в которой имеется выход на террасу и проходы на кухню и на лестничный холл. Из холла можно пройти в спальню и санузел. Мансардный этаж представляет собой две стандартные спальни, санузел и просторную хозяйскую спальню с ванной.

Преимущества и особенности:

  • экстерьер здания выделит этот яркий дом на фоне стандартных построек соседей,

  • спальня на первом этаже комфортна для тех, кому сложно подниматься по лестнице,

  • мастер-спальня площадью 24 кв.м с балконом, эркером и ванной порадует хозяйку дома простором и комфортом.

Категории проекта: с мансардой деревянные для постоянного проживания из бревна от 100 до 200 кв.м с террасой одноэтажные с мансардой одноэтажные с котельной с котельной одноэтажные деревянные оцилиндрованное бревно до 200 кв.м с двухскатной крышей 9х12 загородные 11х11 прямоугольные с балконом 10х12 в русском стиле одноэтажные из бревна из бревна с мансардой Проекты деревянных домов с мансардой Проекты деревянных домов с террасой Проекты одноэтажных домов с террасой Типовые проекты загородных одноэтажных домов без гаража одноэтажные без гаража одноэтажные с 4 спальнями с мансардой и террасой полутораэтажные деревянные для круглогодичного проживания из бревна для постоянного проживания 11 на 11 с мансардой рубленные с 4 спальнями 9 на 12 с мансардой одноэтажные до 200 кв м 10x12 с мансардой с балконом и террасой с мансардой с котельной с мансардой с двухскатной крышей с мансардой с балконом с мансардой прямоугольные с мансардой для постоянного проживания с мансардой до 200 кв.м с балконом с террасой прямоугольные с котельной без гаража одноэтажные с мансардой из бревна одноэтажные с мансардой для постоянного проживания одноэтажные с мансардой с изолированной кухней одноэтажные с мансардой в русском стиле одноэтажные с мансардой с балконом деревянные в русском стиле деревянные с балконом деревянные прямоугольные деревянные без гаража деревянные домокомплекты деревянные без подвала деревянные с 4 спальнями деревянные с изолированной кухней деревянные от 100 до 200 м2 в русском стиле без гаража в русском стиле с террасой в русском стиле с балконом в русском стиле прямоугольные в русском стиле для постоянного проживания в русском стиле без бани в русском стиле с котельной в русском стиле с изолированной кухней в русском стиле с двускатной крышей в русском стиле от 100 до 200 кв м из клееного бруса без гаража Показать все категории Скрыть категории

Похожие проекты
Состав проекта
Входит в стоимость
Цена, руб. Сроки, дней
Комплект архитектурно-строительных чертежей (АС) Входит в стоимость Готов к отправке
Разрабатывается отдельно
Цена, руб. Сроки, дней
Адаптация фундамента (изменение типа фундамента) по запросу 14 рабочих дней
Дизайн интерьера (стоимость от 2200руб. за квад.метр площади) по запросу 30 рабочих дней
Внесение изменений в проект по запросу 20 рабочих дней
Фэншуй дома 20 000 ₽ 14 рабочих дней в корзину
Фэншуй участка 15 000 ₽ 14 рабочих дней в корзину
Фэншуй полная консультация дом+участок с выездом на объект 100 000 ₽ 30 рабочих дней в корзину
Опции проекта вы можете заказать в корзине при оформлении заказа
Отзывы покупателей
Рейтинг покупателей
0 / 5 5 5 1
На основе 1 оценок покупателей
0%
0%
0%
0%
0%
Отзывы о проекте D1169
Отзыв о проекте D1169
Чтобы оставить отзыв, пожалуйста авторизуйтесь.
Подбор строительной компании
Не знаете кому доверить строительство дома? Мы можем помочь! Подберем для вас из сотен наших партнеров несколько компаний с лучшем соотношением цена/качество под конкретно ваш запрос.
Подобрать