D5447 Лучшая баня

Сравнить проект В избранное
Лучшая баня / 1
Лучшая баня / 2
Лучшая баня / 3
Лучшая баня / 4
Лучшая баня / 5
Лучшая баня / 6
Лучшая баня / 1
Лучшая баня / 2
Лучшая баня / 3
Лучшая баня / 4
Лучшая баня / 5
Лучшая баня / 6
D5447
Проект с подрядом
Компания: Idea House
Стоимость строительства
не указана
Заказать подробную смету
+7 (812) XXX-XX-XX Показать телефон
Задать вопрос по проекту
Технические характеристики
Общие
Материал стен
Клееный брус
,
Каркас
Этажи
1 этаж
Гараж
Нет гаража
Количество машин
нет
Подвал / цокольный этаж
Без подвала
Кровля
Металлочерепица
Облицовка внешних стен
Фасадные панели
Толщина несущих наружных стен
150 (250 с парилкой) мм
Межэтажные перекрытия
По деревянным балкам
Внутренние не несущие перегородки
Каркасно-обшивные
Фундамент
Свайный
Дополнительные
Окна
Окна до пола
,
Панорамные окна
,
Круглые окна
Камин
Есть
Сауна/баня внутри
Есть
Купель
Есть
Площадь гостиной
9.9 м²
Количество санузлов
2
Окно в ванной комнате
Есть
Котельная
Есть
Дом для неровных участков (с рельефом)
Есть
Дом для узких участков
Есть
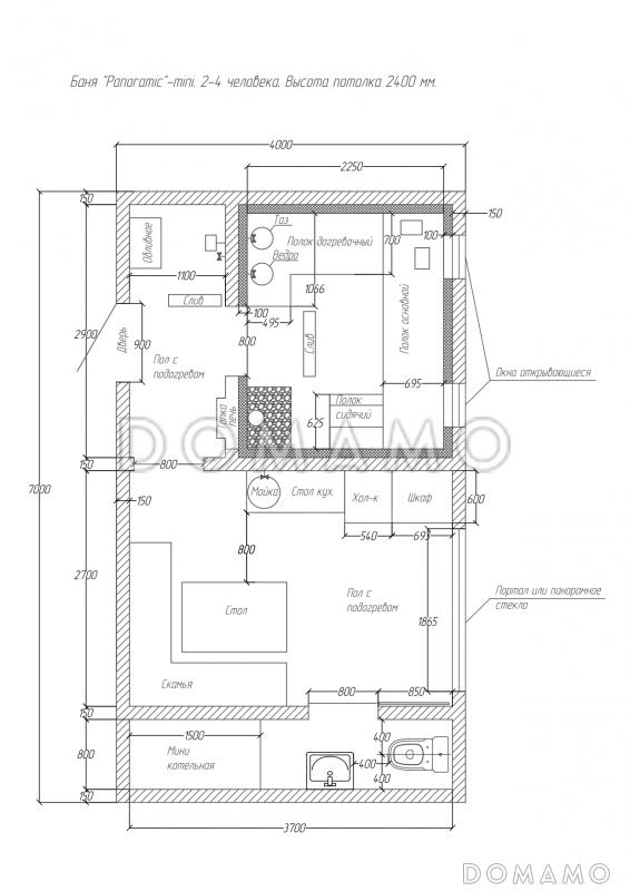
Планы помещений
Фасады
Описание проекта
Чтобы создать правильное пространство для парения, помимо архитектора и дизайнера мы привлекли к работе над проектом профессионального пар-мастера. И только после создания планировки парной, построили вокруг все остальное пространство.
Категории проекта: с барбекю одноэтажные

Похожие проекты
Состав проекта
Входит в стоимость
Цена, руб. Сроки, дней
Комплект архитектурно-строительных чертежей (АС) Входит в стоимость Готов к отправке
Разрабатывается отдельно
Цена, руб. Сроки, дней
Адаптация фундамента (изменение типа фундамента) по запросу 14 рабочих дней
Дизайн интерьера (стоимость от 2200руб. за квад.метр площади) по запросу 30 рабочих дней
Внесение изменений в проект по запросу 20 рабочих дней
Фэншуй дома 20 000 ₽ 14 рабочих дней в корзину
Фэншуй участка 15 000 ₽ 14 рабочих дней в корзину
Фэншуй полная консультация дом+участок с выездом на объект 100 000 ₽ 30 рабочих дней в корзину
Опции проекта вы можете заказать в корзине при оформлении заказа
Комплектации
Отзывы покупателей
Рейтинг покупателей
0 / 5 5 5 1
На основе 1 оценок покупателей
0%
0%
0%
0%
0%
Отзывы о проекте D5447
Отзыв о проекте D5447
Чтобы оставить отзыв, пожалуйста авторизуйтесь.
Подбор строительной компании
Не знаете кому доверить строительство дома? Мы можем помочь! Подберем для вас из сотен наших партнеров несколько компаний с лучшем соотношением цена/качество под конкретно ваш запрос.
Подобрать