Главная Проекты домов Проект двухэтажного кирпичного дома с гаражом на два машиноместа, тремя спальнями и кабинетом на втором этаже

D5975 Проект двухэтажного кирпичного дома с гаражом на два машиноместа, тремя спальнями и кабинетом на втором этаже

Сравнить проект В избранное
Технические характеристики
Общие
Материал стен
Кирпич
Общая площадь
189.6 м²
Жилая площадь
90.1 м²
Площадь застройки
172.1 м²
Приведенная площадь
192.09 м²
Количество жилых комнат/спален
5
Этажи
2 этажа
Гараж
Встроенный гараж
Количество машин
2
Подвал / цокольный этаж
Без подвала
Длина дома
14.8 м
Ширина дома
13.1 м
Высота в коньке
9 м
Кровля
Металлочерепица
Облицовка внешних стен
Облицовочный кирпич
Толщина несущих наружных стен
380 мм
Межэтажные перекрытия
Монолитные
Внутренние не несущие перегородки
Кирпичные
Фундамент
Малозаглубленные ростверки
Терраса
Терраса крытая
Дополнительные
Окна
Окна до пола
Камин
Есть
Сауна/баня внутри
Нет
Площадь гостиной
25.6 м²
Площадь кухни
13 м²
Количество санузлов
2
Окно в ванной комнате
Есть
Котельная
Есть
Кабинет
Есть
Хозяйская гардеробная
Есть
Кладовая
1
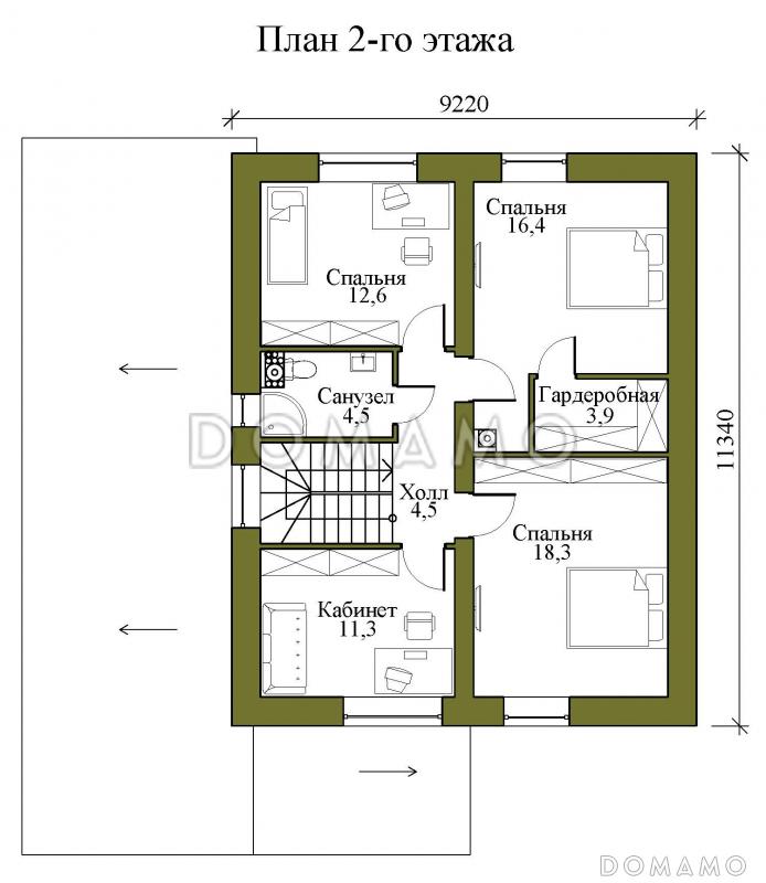
Планы помещений
Описание проекта
Компания Domamo предлагает проект двухэтажного кирпичного дома с гаражом на два машиноместа, тремя спальнями и кабинетом на втором этаже D5975. Общая площадь - 189.6 м2, размер - 14.8х13.1 м. Фундамент - малозаглубленные ростверки, кровля - металлочерепица, внешняя отделка - облицовочный кирпич. Для заказа проекта или внесения изменений свяжитесь с нами с помощью форм обратной связи на сайте или по телефону +7 (800) 200-28-83.
Категории проекта: с гаражом для постоянного проживания кирпич современные от 100 до 200 кв.м дома из кирпича с гаражом в европейском стиле кирпичные европейские дома с террасой из кирпича с террасой готовые загородные из кирпича двухэтажные из кирпича двухэтажные кирпичные с гаражом двухэтажные двухэтажные с гаражом кирпичные с котельной с котельной кирпичные до 200 кв.м до 200 кв.м с двухскатной крышей загородные с камином с гардеробной угловые со встроенным гаражом современные кирпичные Проекты двухэтажных домов с террасой Проекты двухэтажных домов с верандой с террасой и камином облицованные кирпичом с кабинетом с гаражом под одной крышей с гаражом на 2 машины с гаражом и террасой двухэтажные с террасой и гаражом двухэтажные 200 кв м г-образные двухэтажные от 150 до 200 кв м с 5 спальнями двухэтажные с камином двухэтажные с двускатной крышей двухэтажные в современном стиле современные с гаражом современные с двухскатной крышей современные с окнами в пол современные с террасой современные от 100 до 200 кв. м европейские для постоянного проживания европейские готовые европейские с гаражом европейские с гаражом на 2 машины европейские без подвала европейские с террасой европейские с 2 санузлами европейские с котельной европейские с кабинетом европейские с кладовой европейские угловые европейские с окнами в пол европейские с двухскатной крышей европейские с камином европейские 100-200 м2 недорогие двухэтажные недорогие кирпичные недорогие с гаражом недорогие с террасой недорогие для постоянного проживания недорогие с двухскатной крышей недорогие с окнами до пола недорогие без бани недорогие с кабинетом недорогие с котельной недорогие с камином недорогие угловые недорогие от 100 до 200 м2 из клееного бруса без гаража Показать все категории Скрыть категории

Похожие проекты
Состав проекта
Входит в стоимость
Цена, руб. Сроки, дней
Комплект архитектурно-строительных чертежей (АС) Входит в стоимость Готов к отправке
Готово к продаже
Цена, руб. Сроки, дней
Паспорт рабочего проекта 5 000 ₽ 3 рабочих дня в корзину
Дополнительная копия проекта формата А3 4 000 ₽ Готов к отправке в корзину
Электронная копия проекта (скан распечатанной версии) 4 000 ₽ 3 рабочих дня в корзину
Разрабатывается отдельно
Цена, руб. Сроки, дней
Адаптация фундамента (изменение типа фундамента) по запросу 14 рабочих дней
Дизайн интерьера (стоимость от 2200руб. за квад.метр площади) по запросу 30 рабочих дней
Внесение изменений в проект по запросу 20 рабочих дней
Инженерные разделы: ВК + ОВ + ЭО 40 000 ₽ 20 рабочих дней в корзину
Зеркалирование проекта (для которого нет зеркальной версии) 8 000 ₽ 5 рабочих дней в корзину
Разработка Генплана участка, в масштабе 1:250 7 500 ₽ 5 рабочих дней в корзину
Фэншуй дома 20 000 ₽ 14 рабочих дней в корзину
Фэншуй участка 15 000 ₽ 14 рабочих дней в корзину
Фэншуй полная консультация дом+участок с выездом на объект 100 000 ₽ 30 рабочих дней в корзину
Опции проекта вы можете заказать в корзине при оформлении заказа
Предложения строителей Выбрать регион
Минимальная
6 723 150 ₽
Стандарт
8 259 870 ₽
Под чистовую отделку
10 757 040 ₽
Показать подробные комплектации
Минимальная
16 327 650 ₽
Стандарт
19 209 000 ₽
Под чистовую отделку
24 971 700 ₽
Показать подробные комплектации
Минимальная
8 974 444 ₽
Стандарт
13 181 215 ₽
Под чистовую отделку
20 753 403 ₽
Показать подробные комплектации
Минимальная
7 697 046 ₽
Стандарт
8 838 060 ₽
Под чистовую отделку
11 316 406 ₽
Показать подробные комплектации
Минимальная
3 767 451 ₽
Стандарт
4 665 395 ₽
Под чистовую отделку
5 615 376 ₽
Показать подробные комплектации
Подбор строительной компании
Не знаете кому доверить строительство дома? Мы можем помочь! Подберем для вас из сотен наших партнеров несколько компаний с лучшем соотношением цена/качество под конкретно ваш запрос.
Подобрать
Посмотреть еще 20 компаний Свернуть
Отзывы покупателей
Рейтинг покупателей
0 / 5 5 5 1
На основе 1 оценок покупателей
0%
0%
0%
0%
0%
Отзывы о проекте D5975
Отзыв о проекте D5975
Чтобы оставить отзыв, пожалуйста авторизуйтесь.
Подбор строительной компании
Не знаете кому доверить строительство дома? Мы можем помочь! Подберем для вас из сотен наших партнеров несколько компаний с лучшем соотношением цена/качество под конкретно ваш запрос.
Подобрать