Главная Проекты домов Проект одноэтажного дома с камином внутри и барбекю на террасе под крышей

D5264 Проект одноэтажного дома с камином внутри и барбекю на террасе под крышей

Сравнить проект В избранное
Технические характеристики
Общие
Материал стен
Кирпич
Общая площадь
133 м²
Жилая площадь
81.3 м²
Площадь застройки
152 м²
Приведенная площадь
109.65 м²
Количество жилых комнат/спален
3
Этажи
1 этаж
Гараж
Нет гаража
Количество машин
нет
Подвал / цокольный этаж
Без подвала
Длина дома
13.8 м
Ширина дома
12.4 м
Кровля
Металлочерепица
Облицовка внешних стен
Мокрая штукатурка
Толщина несущих наружных стен
380 мм
Межэтажные перекрытия
По деревянным балкам
Внутренние не несущие перегородки
Кирпичные
Фундамент
Утепленная шведская плита (УШП)
Терраса
Терраса крытая
Дополнительные
Окна
Окна до пола
Камин
Есть
Сауна/баня внутри
Нет
Площадь гостиной
29.7 м²
Площадь кухни
6 м²
Количество санузлов
2
Окно в ванной комнате
Есть
Котельная
Есть
Хозяйский санузел
Есть
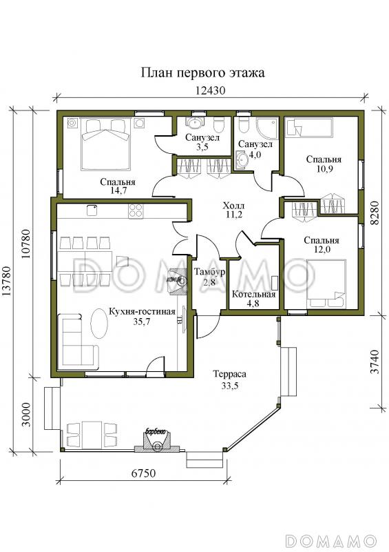
Планы помещений
Описание проекта
Компания Domamo предлагает проект одноэтажного дома с камином внутри и барбекю на террасе под крышей D5264. Общая площадь - 133 м2, размер - 13.8х12.4 м. Фундамент - утепленная шведская плита (ушп), кровля - металлочерепица, внешняя отделка - мокрая штукатурка. Для заказа проекта или внесения изменений свяжитесь с нами с помощью форм обратной связи на сайте или по телефону +7 (800) 200-28-83.
Категории проекта: для постоянного проживания кирпич современные дачные дома гостевые от 100 до 200 кв.м в европейском стиле кирпичные европейские дома с террасой из кирпича с террасой готовые гостевые из кирпича дачные из кирпича загородные из кирпича одноэтажные из кирпича одноэтажные кирпичные с котельной одноэтажные кирпичные площадью до 150 кв. м. кирпичные с котельной одноэтажные до 150 кв. м. одноэтажные с котельной с котельной кирпичные до 200 кв.м дачные с верандой до 150 кв.м до 200 кв.м с двухскатной крышей загородные с камином с барбекю современные кирпичные Проекты одноэтажных домов с террасой дачные одноэтажные Типовые проекты загородных одноэтажных домов без гаража одноэтажные без гаража дачные с террасой с террасой и камином дачные с камином одноэтажные с тремя спальнями Проекты домов с тремя спальнями одноэтажные до 200 кв м до 140 кв м сложной формы одноэтажные современные одноэтажные с двухскатной крышей одноэтажные с окнами в пол одноэтажные с камином одноэтажные с барбекю на террасе одноэтажные гостевые одноэтажные европейские одноэтажные с 2 санузлами одноэтажные до 180 м2 одноэтажные из кирпича с террасой одноэтажные из кирпича с двухскатной крышей одноэтажные из кирпича с 3 спальнями готовые для постоянного проживания гостевые дачные с камином без гаража без подвала в европейском стиле современные сложной формы современные без гаража современные с двухскатной крышей современные с окнами в пол современные с террасой современные до 150 кв. м современные от 100 до 200 кв. м европейские для постоянного проживания европейские дачные европейские гостевые европейские готовые европейские без подвала европейские с террасой европейские с 2 санузлами европейские с котельной европейские с окнами в пол европейские с двухскатной крышей европейские с камином европейские до 150 м2 европейские 100-200 м2 до 150 кв.м для постоянного проживания до 150 кв.м гостевые до 150 кв.м дачные до 150 кв.м без гаража до 150 кв.м с двухскатной крышей до 150 кв.м с окнами до пола до 150 кв.м готовые до 150 кв.м с котельной до 150 кв.м без бани до 150 кв.м с террасой до 150 кв.м без подвала до 150 кв.м с 3 спальнями до 150 кв.м с камином недорогие гостевые из клееного бруса без гаража Показать все категории Скрыть категории

Похожие проекты
Состав проекта
Входит в стоимость
Цена, руб. Сроки, дней
Комплект архитектурно-строительных чертежей (АС) Входит в стоимость Готов к отправке
Готово к продаже
Цена, руб. Сроки, дней
Паспорт рабочего проекта 5 000 ₽ 3 рабочих дня в корзину
Дополнительная копия проекта формата А3 4 000 ₽ Готов к отправке в корзину
Электронная копия проекта (скан распечатанной версии) 4 000 ₽ 3 рабочих дня в корзину
Разрабатывается отдельно
Цена, руб. Сроки, дней
Адаптация фундамента (изменение типа фундамента) по запросу 14 рабочих дней
Дизайн интерьера (стоимость от 2200руб. за квад.метр площади) по запросу 30 рабочих дней
Внесение изменений в проект по запросу 20 рабочих дней
Инженерные разделы: ВК + ОВ + ЭО 40 000 ₽ 20 рабочих дней в корзину
Зеркалирование проекта (для которого нет зеркальной версии) 8 000 ₽ 5 рабочих дней в корзину
Разработка Генплана участка, в масштабе 1:250 7 500 ₽ 5 рабочих дней в корзину
Фэншуй дома 20 000 ₽ 14 рабочих дней в корзину
Фэншуй участка 15 000 ₽ 14 рабочих дней в корзину
Фэншуй полная консультация дом+участок с выездом на объект 100 000 ₽ 30 рабочих дней в корзину
Опции проекта вы можете заказать в корзине при оформлении заказа
Предложения строителей Выбрать регион
Минимальная
3 837 750 ₽
Стандарт
4 714 950 ₽
Под чистовую отделку
6 140 400 ₽
Показать подробные комплектации
Минимальная
11 184 300 ₽
Стандарт
13 158 000 ₽
Под чистовую отделку
17 105 400 ₽
Показать подробные комплектации
Минимальная
5 789 520 ₽
Стандарт
8 503 357 ₽
Под чистовую отделку
13 388 265 ₽
Показать подробные комплектации
Минимальная
4 393 675 ₽
Стандарт
5 044 996 ₽
Под чистовую отделку
6 459 700 ₽
Показать подробные комплектации
Минимальная
2 560 190 ₽
Стандарт
3 170 392 ₽
Под чистовую отделку
3 815 957 ₽
Показать подробные комплектации
Подбор строительной компании
Не знаете кому доверить строительство дома? Мы можем помочь! Подберем для вас из сотен наших партнеров несколько компаний с лучшем соотношением цена/качество под конкретно ваш запрос.
Подобрать
Посмотреть еще 20 компаний Свернуть
Отзывы покупателей
Рейтинг покупателей
0 / 5 5 5 1
На основе 1 оценок покупателей
0%
0%
0%
0%
0%
Отзывы о проекте D5264
Отзыв о проекте D5264
Чтобы оставить отзыв, пожалуйста авторизуйтесь.
Подбор строительной компании
Не знаете кому доверить строительство дома? Мы можем помочь! Подберем для вас из сотен наших партнеров несколько компаний с лучшем соотношением цена/качество под конкретно ваш запрос.
Подобрать