Главная Проекты домов Проект коттеджа из SIP панелей с эркером и террасой.

D3876 Проект коттеджа из SIP панелей с эркером и террасой.

Сравнить проект В избранное
Проект коттеджа из SIP панелей с эркером и террасой. / 1 Проект коттеджа из SIP панелей с эркером и террасой. / 2
D3876
168 м²
Подготовка проекта:
25 рабочих дней
Стоимость проекта
Купить проект
Задайте вопросы по проекту нашему архитектору
8 (800) 200-28-83
Время работы: пн-вс: с 9:00 до 20:00
Задать вопрос по проекту

Технические характеристики
Общие
Материал стен
SIP
Общая площадь
168 м²
Жилая площадь
87.6 м²
Площадь застройки
118.3 м²
Приведенная площадь
157.16 м²
Количество жилых комнат/спален
4
Этажи
1 этаж + мансарда
Гараж
Нет гаража
Подвал / цокольный этаж
Без подвала
Длина дома
10.4 м
Ширина дома
9.1 м
Высота в коньке
8.2 м
Кровля
Металлочерепица
Облицовка внешних стен
Облицовочный кирпич
Толщина несущих наружных стен
375 мм
Межэтажные перекрытия
По деревянным балкам
Внутренние не несущие перегородки
Каркасно-обшивные
Фундамент
Малозаглубленные ростверки
Терраса
Терраса крытая
Дополнительные
Камин
Есть
Сауна/баня внутри
Нет
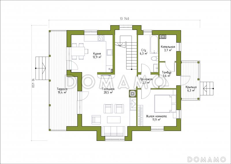
Площадь гостиной
28.5 м²
Площадь кухни
12.9 м²
Количество санузлов
3
Окно в ванной комнате
Есть
Котельная
Есть
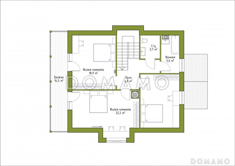
Балкон / лоджия
Балкон
Планы помещений
Фасады
Описание проекта

Просторный дом, рассчитанный на проживание семьи из 4-5 человек, внешний облик которого выдержан в традиционном европейском стиле. Одним из важных достоинств является большая терраса, соединенная с гостиной, на которой можно свободно разместить обеденный стол, увеличив общесемейное жилое пространство. В состав жилого пространства первого этажа также входит кухня-столовая и просторная гостиная с возможностью размещения камина. Из функциональных помещений — тамбур, котельная и санузел. На втором этаже находятся три спальни и раздельный санузел. Одна из спален имеет выход на балкон. Этажи соединяются удобной широкой лестницей.

Категории проекта: с мансардой для постоянного проживания из сип панелей по технологии Velox от 100 до 200 кв.м в европейском стиле с эркером с террасой готовые одноэтажные с мансардой одноэтажные с котельной с котельной из сип панелей с мансардой до 200 кв.м с двухскатной крышей 6х10 9х10 9х12 загородные с камином с балконом в стиле эклектика с эркером и мансардой Проекты одноэтажных домов из сип панелей Проекты одноэтажных домов с эркером Проекты одноэтажных домов с террасой Типовые проекты загородных одноэтажных домов без гаража одноэтажные без гаража с террасой и камином облицованные кирпичом одноэтажные с 4 спальнями с мансардой и террасой полутораэтажные с 4 спальнями 9 на 12 с мансардой одноэтажные до 200 кв м недорогие с балконом и террасой сложной формы с мансардой с котельной с мансардой с камином с мансардой с двухскатной крышей с мансардой в европейском стиле с мансардой с балконом с мансардой сложной формы с мансардой готовые с мансардой для постоянного проживания с мансардой до 200 кв.м одноэтажные с мансардой из SIP-панелей одноэтажные с мансардой для постоянного проживания одноэтажные с мансардой с изолированной кухней одноэтажные с мансардой в европейском стиле одноэтажные с мансардой в стиле эклектика одноэтажные с мансардой с балконом европейские для постоянного проживания европейские недорогие европейские готовые европейские без подвала европейские с террасой европейские с изолированной кухней европейские с котельной европейские с балконом европейские с двухскатной крышей европейские с камином европейские 100-200 м2 европейские 8х9 европейские 9х10 недорогие с мансардой недорогие в стиле эклектика недорогие без гаража недорогие с террасой недорогие для постоянного проживания недорогие с двухскатной крышей недорогие с изолированной кухней недорогие без бани недорогие с котельной недорогие с балконом недорогие с камином недорогие сложной формы недорогие 9х10 недорогие от 100 до 200 м2 из клееного бруса без гаража Показать все категории Скрыть категории

Похожие проекты
Состав проекта
Входит в стоимость
Цена, руб. Сроки, дней
Комплект архитектурно-строительных чертежей (АС) Входит в стоимость 25 рабочих дней
Готово к продаже
Цена, руб. Сроки, дней
Электронная копия проекта (скан распечатанной версии) 4 000 ₽ 3 рабочих дня в корзину
Разрабатывается отдельно
Цена, руб. Сроки, дней
Адаптация фундамента (изменение типа фундамента) по запросу 14 рабочих дней
Дизайн интерьера (стоимость от 2200руб. за квад.метр площади) по запросу 30 рабочих дней
Внесение изменений в проект по запросу 20 рабочих дней
Фэншуй дома 20 000 ₽ 14 рабочих дней в корзину
Фэншуй участка 15 000 ₽ 14 рабочих дней в корзину
Фэншуй полная консультация дом+участок с выездом на объект 100 000 ₽ 30 рабочих дней в корзину
Опции проекта вы можете заказать в корзине при оформлении заказа
Предложения строителей Выбрать регион
Минимальная
4 557 640 ₽
Стандарт
5 029 120 ₽
Под чистовую отделку
8 172 320 ₽
Показать подробные комплектации
Сравнить 0 комплектаций
Свернуть все
Развернуть все
Минимальная
4 557 640 ₽
Сравнить
Стандарт
5 029 120 ₽
Сравнить
Под чистовую отделку
8 172 320 ₽
Сравнить
Кровля
Кровельное покрытие
Металлочерепица
Мягкая черепица
Цементно-песчаная черепица
Обрешетка
Сухой строганый брус
Сухой строганый брус
Сухой строганый брус
Контробрешетка
Сухой строганый брус
Сухой строганый брус
Сухой строганый брус
Противоконденсатная (ветро-гидроизоляционная) пленка
ПВХ пленка GrandLine
ПВХ пленка GrandLine
ПВХ пленка GrandLine
Стропильная система
Доска строганная антисептированная
Доска строганная антисептированная
Доска строганная антисептированная
Утепление чердачного перекрытия и стропильной системы
Утепление 200 мм
Утепление 200 мм
Утепление 200 мм
Подшивка свесов кровли
Установка J- профиля, J - фаска, саморезы оцинкованные с
Установка J- профиля, J - фаска, саморезы оцинкованные с
Устройство подсистемы из бруска сухого, строганного 45
Подшивка потолков террас и лоджий
Водосточная система
Водосточная система Grand Line пластиковая Кронштейны мет
Водосточная система Grand Line пластиковая Кронштейны мет
Водосточная система Grand Line пластиковая Кронштейны мет
Система снегозадержания
Grand Line
Grand Line
Grand Line
Молниезащита
Фундамент
Сваи ж/бетонные
Железобетонные забивные сваи 150*150 * 2500
Сваи стальные винтовые
Винтовые сваи 108/2500 Заполнение полости свай ЦПС, прива
Лента ж/бетонная монолитная мелкозаглубленная
Лента ж/бетонная монолитная на глубину промерзания
Лента ж/бетонная сборная (из ФБС) на глубину промерзания
Плита ж/бетонная монолитная мелкозаглубленная
УШП (Утепленная Шведская Плита)
Плита монолитная 300 мм
Бетоннная отмостка по периметру дома
Дренажная система по периметру дома
Ливневая система
Облицовка цоколя фундамента
Система контурного заземления
Стены
Несущая часть стены
Внешние стены СИП 174 мм
Внешние стены СИП 174 мм
Внешние стены СИП 224 мм
Фасадная отделка
Фасад "Виниловый сайдинг"
Фасад имитация бруса
Фасад фиброцементный Cedral
Ветрозащита
Утепление стены
Утепление фасада утеплителем Paroc плотностью 110 кг\м3
Утепление фасада утеплителем Paroc плотностью 110 кг\м3
Утепление фасада утеплителем Paroc плотностью 110 кг\м3
Пароизоляция
Внутренняя обшивка/штукатурка со стороны помещения
Пол первого этажа
Несущая часть перекрытия
Межэтажное перекрытие "Стропильная система" 200 мм
Перекрытие межэтажное СИП 224 мм
Перекрытие межэтажное СИП 224 мм
Теплоизоляция цокольного перекрытия
Стяжка/подготовка под чистый пол
Стяжка по проекту
Стяжка по проекту
Стяжка по проекту
Перекрытия над первым и последующими этажами
Несущая часть перекрытия
Межэтажное перекрытие "Стропильная система" 200 мм
Перекрытие межэтажное СИП 224 мм
Перекрытие межэтажное СИП 224 мм
Звукоизоляция/теплоизоляция в перекрытии
Стяжка/подготовка под чистый пол
Отделка потолка нижележащего этажа
Окна и внешние двери
Окна
Двухкамерный стеклопакет
Двухкамерный стеклопакет
Двухкамерный стеклопакет
Оконные наличники
Металлические наличники
Металлические наличники
Металлические наличники
Откосы в помещении
Отливы снаружи
Металлические отливы
Металлические отливы
Металлические отливы
Подоконники
Входные двери
Дверь металлическая огнеупорная
Дверь металлическая огнеупорная
Дверь металлическая огнеупорная
Внутренние конструкции
Внутренние несущие стены
Стены внутренние, несущие 150 мм
Стены внутренние, несущие СИП 174 мм
Стены внутренние, несущие СИП 224 мм
Внутренние ненесущие стены
Перегородки внутренние 100 мм
Перегородки внутренние 150 мм
Перегородки внутренние 150 мм
Звукоизоляция внутренних стен/перегородок
Межэтажная строительная (черновая) лестница
Черновая деревянная лестница
Черновая деревянная лестница
Черновая деревянная лестница
Межэтажная постоянная (чистовая) лестница
Межкомнатные двери
Высота потолков 1 этажа
В соответствии с проектом
В соответствии с проектом
В соответствии с проектом
Высота потолков 2 этажа
В соответствии с проектом
В соответствии с проектом
В соответствии с проектом
Настилы полов и ограждения крылец, террас, балконов
Гидроизоляция полов балконов
Инженерное оснащение
Жидкостной теплый пол
Электрический теплый пол
Система вентиляции
В соответствии с проектом
В соответствии с проектом
В соответствии с проектом
Только вводы воды, электричества, выводы канализации
В соответствии с проектом
В соответствии с проектом
В соответствии с проектом
Электроразводка и электрощит
В соответствии с проектом
В соответствии с проектом
В соответствии с проектом
Разводка хол. и гор. водоснабжения (ХВС и ГВС)
В соответствии с проектом
В соответствии с проектом
В соответствии с проектом
Разводка батарей и/или системы теплого пола. Без оборудования котельной.
В соответствии с проектом
В соответствии с проектом
В соответствии с проектом
Иное инженерное оснащение
В соответствии с проектом
В соответствии с проектом
В соответствии с проектом
Подготовка участка для строительства
Устройство временного щита электроснабжения
В соответствии с проектом производства работ
В соответствии с проектом производства работ
В соответствии с проектом производства работ
Устройство въезда на участок
В соответствии с проектом производства работ
В соответствии с проектом производства работ
В соответствии с проектом производства работ
Дорога на участке до пятна застройки
Подъем пятна застройки
Подготовка пятна застройки для фундаментных работ
В соответствии с проектом производства работ
В соответствии с проектом производства работ
В соответствии с проектом производства работ
Перемещение или вывоз грунта из котлована фундамента
В соответствии с проектом производства работ
В соответствии с проектом производства работ
В соответствии с проектом производства работ
Обеспечение строительного процесса
Доставка стройматериалов
В соответствии с проектом производства работ
В соответствии с проектом производства работ
В соответствии с проектом производства работ
Генератор для обеспечения электричеством
В соответствии с проектом производства работ
В соответствии с проектом производства работ
В соответствии с проектом производства работ
Уборка и вывоз строительного мусора
В соответствии с проектом производства работ
В соответствии с проектом производства работ
В соответствии с проектом производства работ
Организация проживания рабочих (бытовка)
В соответствии с проектом производства работ
В соответствии с проектом производства работ
В соответствии с проектом производства работ
Биотуалет для рабочих
В соответствии с проектом производства работ
В соответствии с проектом производства работ
В соответствии с проектом производства работ
Гарантия на все выполненные работы
Гарантия
15 лет
15 лет
15 лет
Свернуть
Отзывы покупателей
Рейтинг покупателей
0 / 5 5 5 1
На основе 1 оценок покупателей
0%
0%
0%
0%
0%
Отзывы о проекте D3876
Отзыв о проекте D3876
Чтобы оставить отзыв, пожалуйста авторизуйтесь.
Подбор строительной компании
Не знаете кому доверить строительство дома? Мы можем помочь! Подберем для вас из сотен наших партнеров несколько компаний с лучшем соотношением цена/качество под конкретно ваш запрос.
Подобрать