Главная Проекты домов Проект особняка в трех уровнях, с комнатой отдыха на чердаке, с мастерской, гаражом и навесом под автомобиль

D2729 Проект особняка в трех уровнях, с комнатой отдыха на чердаке, с мастерской, гаражом и навесом под автомобиль

Сравнить проект В избранное
Технические характеристики
Общие
Материал стен
Газобетон
Общая площадь
456 м²
Площадь застройки
338.45 м²
Приведенная площадь
485.069 м²
Количество жилых комнат/спален
5
Этажи
2 этажа + мансарда
Гараж
Встроенный гараж
Количество машин
2
Подвал / цокольный этаж
С окнами
Длина дома
19.70 м
Ширина дома
17.18 м
Высота в коньке
7.2 м
Кровля
Металлочерепица
Облицовка внешних стен
Облицовочный кирпич
Толщина несущих наружных стен
520 мм
Межэтажные перекрытия
Сборные
Внутренние не несущие перегородки
Газобетонные
Фундамент
Ленточный монолитный
Терраса
Терраса крытая
Дополнительные
Окна
Окна до пола
,
Панорамные окна
Второй свет
Есть
Мансардные окна
Есть
Сауна/баня внутри
Нет
Площадь гостиной
38.67 м²
Площадь кухни
28.98 м²
Количество санузлов
5
Окно в ванной комнате
Есть
Котельная
Есть
Кабинет
Есть
Постирочная
Есть
Хозяйская гардеробная
Есть
Кладовая
7
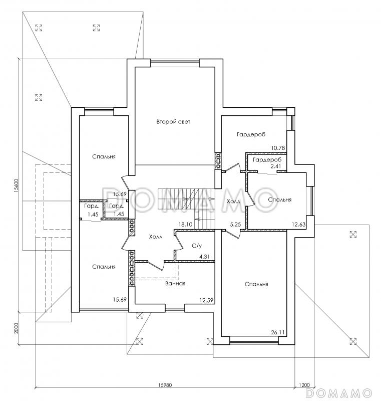
Планы помещений
Фасады
Описание проекта
Компания Domamo предлагает проект особняка в трех уровнях, с комнатой отдыха на чердаке, с мастерской, гаражом и навесом под автомобиль D2729. Общая площадь - 456 м2, размер - 19.70х17.18 м. Фундамент - ленточный монолитный, кровля - металлочерепица, внешняя отделка - облицовочный кирпич. Для заказа проекта или внесения изменений свяжитесь с нами с помощью форм обратной связи на сайте или по телефону +7 (800) 200-28-83.
Категории проекта: с мансардой с гаражом с мансардой и гаражом для постоянного проживания пенобетон от 400 до 500 кв.м в европейском стиле с террасой из пеноблоков с мансардой из газобетона с мансардой и гаражом из газобетона с цокольным этажом из газобетона с цокольным этажом и гаражом из газобетона в немецком стиле из газобетона готовые из газобетона с мансардой из газобетона с гаражом с цокольным этажом двухэтажные двухэтажные с гаражом двухэтажные с мансардой с котельной со вторым светом двухэтажные из газобетона из газосиликатных блоков двухэтажные из пеноблоков из пеноблоков с гаражом с цокольным этажом и мансардой загородные из керамзитобетонных блоков с гардеробной прямоугольные со встроенным гаражом с панорамным остеклением из газобетона с террасой двухэтажные с цокольным этажом из блоков двухэтажные из блоков из блоков с гаражом из блоков с мансардой из пеноблоков с цокольным этажом из пеноблоков с террасой загородные из газобетона Проекты двухэтажных домов с террасой Проекты двухэтажных домов с верандой облицованные кирпичом с кабинетом с гаражом под одной крышей с гаражом на 2 машины с мансардой и террасой с гаражом и террасой двухэтажные с террасой и гаражом с панорамными окнами и террасой с цокольным этажом и гаражом из пеноблоков загородные с 5 спальнями большие двухэтажные со вторым светом двухэтажные с панорамными окнами с мансардой с котельной с мансардой в европейском стиле с мансардой с панорамными окнами с мансардой с окнами до пола с мансардой со вторым светом с мансардой с мансардными окнами с мансардой прямоугольные с мансардой готовые с мансардой для постоянного проживания с мансардой элитные с мансардой большие из газобетона в европейском стиле из газобетона с панорамными окнами из газобетона с котельной из газобетона прямоугольные из газобетона готовые из газобетона с большой кухней из газобетона с кабинетом из газобетона большие из газобетона для постоянного проживания из газобетона со вторым светом двухэтажные из газобетона большие из газобетона с мансардой в европейском стиле из газобетона с мансардой с террасой из газобетона с мансардой для постоянного проживания из газобетона с мансардой готовые из газобетона с мансардой большие из газобетона с мансардой с большой кухней из газобетона с мансардой с гардеробной из газобетона с мансардой с панорамными окнами из газобетона с мансардой со вторым светом из газобетона с мансардой прямоугольные из газобетона с мансардой с прачечной из газобетона с мансардой и гаражом на 2 машины европейские для постоянного проживания европейские готовые европейские с гаражом европейские с гаражом на 2 машины европейские с подвалом европейские с террасой европейские с котельной европейские с кабинетом европейские с прачечной европейские с кладовой европейские прямоугольные европейские с вторым светом европейские с мансардными окнами европейские с панорамными окнами европейские с окнами в пол европейские 400-500 м2 большие готовые большие в европейском стиле большие с вторым светом большие прямоугольные большие с окном в ванной комнате большие с панорамными окнами большие с окнами в пол большие с гаражом большие с гаражом на 2 машины большие с большой кухней большие с террасой большие с прачечной большие с котельной большие с кабинетом из пеноблоков в европейском стиле из пеноблоков с окнами до пола из пеноблоков с панорамными окнами из пеноблоков с вторым светом из пеноблоков прямоугольные из пеноблоков для постоянного проживания из пеноблоков готовые из пеноблоков от 400 до 500 м2 из пеноблоков большие из пеноблоков с большой кухней недорогие с мансардой недорогие с гаражом недорогие с террасой недорогие для постоянного проживания недорогие с окнами до пола недорогие с панорамными окнами недорогие без бани недорогие с кабинетом недорогие с котельной недорогие с мансардными окнами недорогие с вторым светом недорогие прямоугольные недорогие большие недорогие от 400 до 500 м2 из клееного бруса без гаража Показать все категории Скрыть категории

Похожие проекты
Состав проекта
Входит в стоимость
Цена, руб. Сроки, дней
Комплект архитектурно-строительных чертежей (АС) Входит в стоимость 23 рабочих дня
Зеркальная версия проекта Входит в стоимость 23 рабочих дня
Готово к продаже
Цена, руб. Сроки, дней
Паспорт рабочего проекта 4 000 ₽ 23 рабочих дня в корзину
Дополнительная копия проекта формата А3 4 000 ₽ 23 рабочих дня в корзину
Электронная копия проекта (скан распечатанной версии) 4 000 ₽ 23 рабочих дня в корзину
3D модель дома 20 000 ₽ 23 рабочих дня в корзину
Разрабатывается отдельно
Цена, руб. Сроки, дней
Адаптация фундамента (изменение типа фундамента) по запросу 14 рабочих дней
Дизайн интерьера (стоимость от 2200руб. за квад.метр площади) по запросу 30 рабочих дней
Внесение изменений в проект по запросу 20 рабочих дней
Разработка Генплана участка, в масштабе 1:250 7 000 ₽ 23 рабочих дня в корзину
Фэншуй дома 20 000 ₽ 14 рабочих дней в корзину
Фэншуй участка 15 000 ₽ 14 рабочих дней в корзину
Фэншуй полная консультация дом+участок с выездом на объект 100 000 ₽ 30 рабочих дней в корзину
Опции проекта вы можете заказать в корзине при оформлении заказа
Предложения строителей Выбрать регион
Минимальная
16 492 380 ₽
Стандарт
20 372 940 ₽
Под чистовую отделку
26 678 850 ₽
Показать подробные комплектации
Минимальная
38 757 093 ₽
Стандарт
45 596 580 ₽
Под чистовую отделку
59 275 554 ₽
Показать подробные комплектации
Минимальная
17 292 745 ₽
Стандарт
25 660 202 ₽
Под чистовую отделку
40 721 626 ₽
Показать подробные комплектации
Минимальная
16 977 450 ₽
Стандарт
20 372 940 ₽
Под чистовую отделку
22 798 290 ₽
Показать подробные комплектации
Минимальная
15 656 119 ₽
Стандарт
22 977 765 ₽
Под чистовую отделку
24 583 347 ₽
Показать подробные комплектации
Минимальная
11 816 305 ₽
Стандарт
13 504 348 ₽
Под чистовую отделку
17 724 457 ₽
Показать подробные комплектации
Подбор строительной компании
Не знаете кому доверить строительство дома? Мы можем помочь! Подберем для вас из сотен наших партнеров несколько компаний с лучшем соотношением цена/качество под конкретно ваш запрос.
Подобрать
Посмотреть еще 32 компании Свернуть
Отзывы покупателей
Рейтинг покупателей
5 / 5 5 5 1
На основе 1 оценок покупателей
100%
0%
0%
0%
0%
Отзывы о проекте D2729
Отзыв о проекте D2729
Чтобы оставить отзыв, пожалуйста авторизуйтесь.
Комментарий
Проект интересный, но такое ощущение, что создавался под требования определенного заказчика - уж слишком замудреные некоторые моменты. Особенно нравится просторная открытая планировка гостиной-кухни со вторым светом. Это красиво, и пусть все говорят, что неудобно, я не согласна!
Подбор строительной компании
Не знаете кому доверить строительство дома? Мы можем помочь! Подберем для вас из сотен наших партнеров несколько компаний с лучшем соотношением цена/качество под конкретно ваш запрос.
Подобрать