Главная Проекты домов Проект трехэтажного кирпичного дома с пятью спальнями, холодным чердаком и подвалом

D5615 Проект трехэтажного кирпичного дома с пятью спальнями, холодным чердаком и подвалом

Сравнить проект В избранное
Технические характеристики
Общие
Материал стен
Кирпич
Общая площадь
235.8 м²
Жилая площадь
112.8 м²
Площадь застройки
158.5 м²
Приведенная площадь
319.42 м²
Количество жилых комнат/спален
6
Этажи
3 этажа
Гараж
Нет гаража
Количество машин
нет
Подвал / цокольный этаж
Без окон
Длина дома
15.8 м
Ширина дома
10.0 м
Высота в коньке
12 м
Кровля
Металлочерепица
Облицовка внешних стен
Деревянная вагонка
,
Мокрая штукатурка
Толщина несущих наружных стен
380 мм
Межэтажные перекрытия
Сборно-монолитные
Внутренние не несущие перегородки
Кирпичные
Фундамент
Ленточный монолитный
Терраса
Терраса крытая
Дополнительные
Окна
Окна до пола
Камин
Есть
Сауна/баня внутри
Нет
Площадь гостиной
38.8 м²
Площадь кухни
12.4 м²
Количество санузлов
3
Окно в ванной комнате
Есть
Котельная
Есть
Хозяйский санузел
Есть
Хозяйская гардеробная
Есть
Кладовая
2
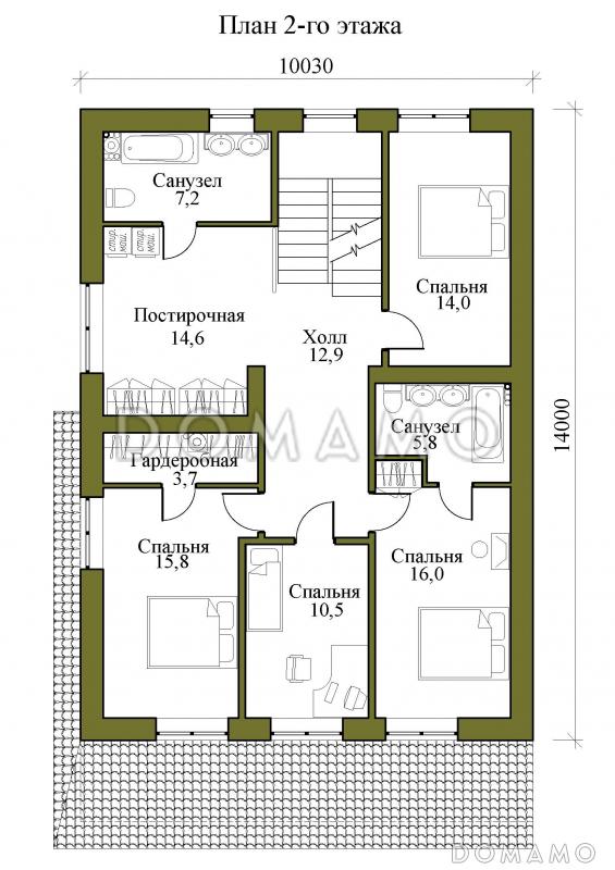
Планы помещений
Описание проекта
Компания Domamo предлагает проект трехэтажного кирпичного дома с пятью спальнями, холодным чердаком и подвалом D5615. Общая площадь - 235.8 м2, размер - 15.8х10.0 м. Фундамент - ленточный монолитный, кровля - металлочерепица, внешняя отделка - деревянная вагонка мокрая штукатурка. Для заказа проекта или внесения изменений свяжитесь с нами с помощью форм обратной связи на сайте или по телефону +7 (800) 200-28-83.
Категории проекта: для постоянного проживания кирпич современные дачные дома гостевые от 200 до 300 кв.м в европейском стиле кирпичные европейские дома с террасой из кирпича с террасой готовые с цокольным этажом гостевые из кирпича дачные из кирпича загородные из кирпича трехэтажные из кирпича трехэтажные кирпичные с подвалом кирпичные с котельной с подвалом с котельной дачные с верандой с двухскатной крышей загородные с ломаной крышей с камином с гардеробной прямоугольные современные кирпичные на две семьи без гаража дачные с террасой с террасой и камином дачные с камином от 200 до 250 м современные без гаража современные с двухскатной крышей современные с окнами в пол современные с террасой современные с подвалом европейские для постоянного проживания европейские дачные европейские гостевые европейские готовые европейские с подвалом европейские с террасой европейские с котельной европейские с кладовой европейские прямоугольные европейские с окнами в пол европейские с двухскатной крышей европейские с камином европейские 200-300 м2 недорогие гостевые из клееного бруса без гаража Показать все категории Скрыть категории

Похожие проекты
Состав проекта
Входит в стоимость
Цена, руб. Сроки, дней
Комплект архитектурно-строительных чертежей (АС) Входит в стоимость Готов к отправке
Готово к продаже
Цена, руб. Сроки, дней
Паспорт рабочего проекта 5 000 ₽ 3 рабочих дня в корзину
Дополнительная копия проекта формата А3 4 000 ₽ Готов к отправке в корзину
Электронная копия проекта (скан распечатанной версии) 4 000 ₽ 3 рабочих дня в корзину
Разрабатывается отдельно
Цена, руб. Сроки, дней
Адаптация фундамента (изменение типа фундамента) по запросу 14 рабочих дней
Дизайн интерьера (стоимость от 2200руб. за квад.метр площади) по запросу 30 рабочих дней
Внесение изменений в проект по запросу 20 рабочих дней
Инженерные разделы: ВК + ОВ + ЭО 40 000 ₽ 20 рабочих дней в корзину
Зеркалирование проекта (для которого нет зеркальной версии) 8 000 ₽ 5 рабочих дней в корзину
Разработка Генплана участка, в масштабе 1:250 7 500 ₽ 5 рабочих дней в корзину
Фэншуй дома 20 000 ₽ 14 рабочих дней в корзину
Фэншуй участка 15 000 ₽ 14 рабочих дней в корзину
Фэншуй полная консультация дом+участок с выездом на объект 100 000 ₽ 30 рабочих дней в корзину
Опции проекта вы можете заказать в корзине при оформлении заказа
Предложения строителей Выбрать регион
Минимальная
11 179 700 ₽
Стандарт
13 735 060 ₽
Под чистовую отделку
17 887 520 ₽
Показать подробные комплектации
Минимальная
26 064 672 ₽
Стандарт
30 664 320 ₽
Под чистовую отделку
39 863 616 ₽
Показать подробные комплектации
Минимальная
12 572 371 ₽
Стандарт
18 465 670 ₽
Под чистовую отделку
29 073 608 ₽
Показать подробные комплектации
Минимальная
11 519 243 ₽
Стандарт
13 226 862 ₽
Под чистовую отделку
16 935 903 ₽
Показать подробные комплектации
Минимальная
5 369 801 ₽
Стандарт
6 649 653 ₽
Под чистовую отделку
8 003 674 ₽
Показать подробные комплектации
Подбор строительной компании
Не знаете кому доверить строительство дома? Мы можем помочь! Подберем для вас из сотен наших партнеров несколько компаний с лучшем соотношением цена/качество под конкретно ваш запрос.
Подобрать
Посмотреть еще 20 компаний Свернуть
Отзывы покупателей
Рейтинг покупателей
0 / 5 5 5 1
На основе 1 оценок покупателей
0%
0%
0%
0%
0%
Отзывы о проекте D5615
Отзыв о проекте D5615
Чтобы оставить отзыв, пожалуйста авторизуйтесь.
Подбор строительной компании
Не знаете кому доверить строительство дома? Мы можем помочь! Подберем для вас из сотен наших партнеров несколько компаний с лучшем соотношением цена/качество под конкретно ваш запрос.
Подобрать