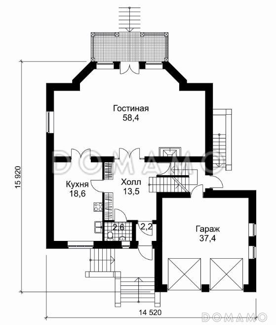
Оригинальный двухэтажный особняк с просторной гостиной и четырьмя спальнями подойдет для комфортного размещения семьи из четырех-пяти человек. Здание облицовано кирпичом и декорировано фахверковыми элементами: деревянными балками и ограждениями балкона.
На цокольном этаже оборудована полноценная рекреационная зона, а также запланированы подсобные помещения. Центральным элементом первого этажа является габаритная гостиная с камином и выходом на террасу. Гараж расположен на пол-этажа ниже. Над ним архитектор предусмотрел приватную зону, состоящую из спальни, ванной и гардеробной. На самом верхе располагаются еще три спальни.
в трех спальнях предусмотрены выходы на балконы — всегда можно будет подышать свежим воздухом, не выходя из дома,
в гараже установлено два выезда,
бассейн и сауна понравятся любителям заниматься спортом, не тратя время на поездку в фитнес-клуб.
| Цена, руб. | Сроки, дней | |||
| Комплект архитектурно-строительных чертежей (АС) | Входит в стоимость | 7 рабочих дней | ||
| Цена, руб. | Сроки, дней | |||
| Паспорт рабочего проекта | 2 500 ₽ | Готов к отправке | в корзину | |
| Инженерные разделы: ВК + ОВ + ЭО | 13 400 ₽ | Готов к отправке | в корзину | |
| Цена, руб. | Сроки, дней | |||
| Адаптация фундамента (изменение типа фундамента) | по запросу | 14 рабочих дней | ||
| Дизайн интерьера (стоимость от 2200руб. за квад.метр площади) | по запросу | 30 рабочих дней | ||
| Внесение изменений в проект | по запросу | 20 рабочих дней | ||
| Фэншуй дома | 20 000 ₽ | 14 рабочих дней | в корзину | |
| Фэншуй участка | 15 000 ₽ | 14 рабочих дней | в корзину | |
| Фэншуй полная консультация дом+участок с выездом на объект | 100 000 ₽ | 30 рабочих дней | в корзину | |
|
Минимальная
|
28 435 152 ₽ |
|
Стандарт
|
33 453 120 ₽ |
|
Под чистовую отделку
|
43 489 056 ₽ |
| Показать подробные комплектации | |
|
Сравнить 0 комплектаций
Свернуть все
Развернуть все
|
Минимальная
28 435 152 ₽
|
Стандарт
33 453 120 ₽
|
Под чистовую отделку
43 489 056 ₽
|
| Кровля | |||
| Кровельное покрытие |
Металлочерепица «Металл Профиль»
|
Металлочерепица «Металл Профиль»
|
Металлочерепица «Металл Профиль»
|
| Обрешетка |
Доска 20х95 мм, сухая, строганная
|
Доска 20х95 мм, сухая, строганная
|
Доска 20х95 мм, сухая, строганная
|
| Контробрешетка |
Брус 45х45 мм, сухой, строганный
|
Брус 45х45 мм, сухой, строганный
|
Брус 45х45 мм, сухой, строганный
|
| Противоконденсатная (ветро-гидроизоляционная) пленка |
|
|
|
| Стропильная система |
Заводского изготовления. Доска 45х195 мм
|
Заводского изготовления. Доска 45х195 мм
|
Заводского изготовления. Доска 45х195 мм
|
| Утепление чердачного перекрытия и стропильной системы |
Базальтовый утеплитель Paroc Extra 250 мм
|
Базальтовый утеплитель Paroc Extra 250 мм
|
|
| Подшивка свесов кровли |
|
||
| Подшивка потолков террас и лоджий |
|
||
| Водосточная система | |||
| Система снегозадержания | |||
| Молниезащита | |||
| Фундамент | |||
| Сваи ж/бетонные | |||
| Сваи стальные винтовые | |||
| Лента ж/бетонная монолитная мелкозаглубленная | |||
| Лента ж/бетонная монолитная на глубину промерзания | |||
| Лента ж/бетонная сборная (из ФБС) на глубину промерзания | |||
| Плита ж/бетонная монолитная мелкозаглубленная |
Цоколь 350 мм с утеплением 100 мм
|
Цоколь 350 мм с утеплением 100 мм
|
Цоколь 350 мм с утеплением 100 мм
|
| УШП (Утепленная Шведская Плита) | |||
| Бетоннная отмостка по периметру дома | |||
| Дренажная система по периметру дома | |||
| Ливневая система | |||
| Облицовка цоколя фундамента | |||
| Система контурного заземления | |||
| Стены | |||
| Несущая часть стены |
Поризованный кирпич Porotherm 10 NF 380х250х219 мм
|
Поризованный кирпич Porotherm 10 NF 380х250х219 мм
|
Поризованный кирпич Porotherm 10 NF 380х250х219 мм
|
| Фасадная отделка |
Отделочная доска
|
||
| Утепление стены |
Базальтовый утеплитель ROCKWOOL Фасад Баттс 1200х600х50
|
Базальтовый утеплитель ROCKWOOL Фасад Баттс 1200х600х50
|
|
| Внутренняя обшивка/штукатурка со стороны помещения | |||
| Пол первого этажа | |||
| Несущая часть перекрытия | |||
| Теплоизоляция цокольного перекрытия | |||
| Стяжка/подготовка под чистый пол |
OSB-3 18 мм
|
||
| Перекрытия над первым и последующими этажами | |||
| Несущая часть перекрытия |
Монолитные ж/б перекрытия 180-200 мм
|
Монолитные ж/б перекрытия 180-200 мм
|
Монолитные ж/б перекрытия 180-200 мм
|
| Звукоизоляция/теплоизоляция в перекрытии |
Базальтовый утеплитель 150 мм
|
||
| Стяжка/подготовка под чистый пол |
OSB-3 18 мм
|
||
| Отделка потолка нижележащего этажа | |||
| Окна и внешние двери | |||
| Окна |
VEKA Softline 70 мм
|
VEKA Softline 70 мм
|
|
| Оконные наличники | |||
| Откосы в помещении | |||
| Отливы снаружи | |||
| Подоконники | |||
| Входные двери |
Jeld-Wen
|
Jeld-Wen
|
|
| Внутренние конструкции | |||
| Внутренние несущие стены |
Полнотелый кирпич 7 NF 250х380х219 мм
|
Полнотелый кирпич 7 NF 250х380х219 мм
|
Полнотелый кирпич 7 NF 250х380х219 мм
|
| Внутренние ненесущие стены | |||
| Звукоизоляция внутренних стен/перегородок | |||
| Межэтажная строительная (черновая) лестница |
Маршевая
|
Маршевая
|
Маршевая
|
| Межэтажная постоянная (чистовая) лестница | |||
| Межкомнатные двери | |||
| Высота потолков 1 этажа |
2700 мм
|
2700 мм
|
2700 мм
|
| Высота потолков 2 этажа |
2500 мм
|
2500 мм
|
2500 мм
|
| Настилы полов и ограждения крылец, террас, балконов |
|
||
| Гидроизоляция полов балконов | |||
| Инженерное оснащение | |||
| Жидкостной теплый пол | |||
| Электрический теплый пол | |||
| Система вентиляции | |||
| Только вводы воды, электричества, выводы канализации |
|
|
|
| Электроразводка и электрощит | |||
| Разводка хол. и гор. водоснабжения (ХВС и ГВС) | |||
| Разводка батарей и/или системы теплого пола. Без оборудования котельной. | |||
| Иное инженерное оснащение | |||
| Подготовка участка для строительства | |||
| Устройство временного щита электроснабжения | |||
| Устройство въезда на участок | |||
| Дорога на участке до пятна застройки | |||
| Подъем пятна застройки | |||
| Подготовка пятна застройки для фундаментных работ | |||
| Перемещение или вывоз грунта из котлована фундамента | |||
| Обеспечение строительного процесса | |||
| Доставка стройматериалов |
50 км от КАД, МКАД
|
50 км от КАД, МКАД
|
50 км от КАД, МКАД
|
| Генератор для обеспечения электричеством | |||
| Уборка и вывоз строительного мусора | |||
| Организация проживания рабочих (бытовка) | |||
| Биотуалет для рабочих | |||
| Гарантия на все выполненные работы | |||
| Гарантия |
5 лет
|
5 лет
|
5 лет
|
| Свернуть | |||
|
Минимальная
|
13 715 779 ₽ |
|
Стандарт
|
20 145 050 ₽ |
|
Под чистовую отделку
|
31 717 739 ₽ |
| Показать подробные комплектации | |
|
Сравнить 0 комплектаций
Свернуть все
Развернуть все
|
Минимальная
13 715 779 ₽
|
Стандарт
20 145 050 ₽
|
Под чистовую отделку
31 717 739 ₽
|
| Кровля | |||
| Кровельное покрытие |
Металлочерепица Grand Line 0,5мм/ битумная черепица Шинглас
|
Металлочерепица Grand Line 0,5мм/ битумная черепица Шинглас
|
Металлочерепица Grand Line 0,5мм/ битумная черепица Шинглас
|
| Обрешетка |
Доска 100х25 с обработкой огнебиозащитой
|
Доска 100х25 с обработкой огнебиозащитой
|
Доска 100х25 с обработкой огнебиозащитой
|
| Контробрешетка |
Брусок 50х50 с обработкой огнебиозащитой
|
Брусок 50х50 с обработкой огнебиозащитой
|
Брусок 50х50 с обработкой огнебиозащитой
|
| Противоконденсатная (ветро-гидроизоляционная) пленка |
3-х слойная мембрана
|
3-х слойная мембрана
|
3-х слойная мембрана
|
| Стропильная система |
Доска 200х50 с обработкой огнебиозащитой
|
Доска 200х50 с обработкой огнебиозащитой
|
Доска 200х50 с обработкой огнебиозащитой
|
| Утепление чердачного перекрытия и стропильной системы |
Утеплитель Rockwool Лайт Баттс Скандик 200мм
|
Утеплитель Rockwool Лайт Баттс Скандик 200мм
|
|
| Подшивка свесов кровли |
Софит пластиковый Grand Line
|
Софит пластиковый Grand Line
|
|
| Подшивка потолков террас и лоджий |
Имитация бруса 145мм
|
||
| Водосточная система |
Водосточная система пластиковая Grand Line
|
Водосточная система пластиковая Grand Line
|
|
| Система снегозадержания |
Снегозадержатели трубчатые
|
Снегозадержатели трубчатые
|
|
| Молниезащита | |||
| Фундамент | |||
| Сваи ж/бетонные | |||
| Сваи стальные винтовые | |||
| Лента ж/бетонная монолитная мелкозаглубленная | |||
| Лента ж/бетонная монолитная на глубину промерзания | |||
| Лента ж/бетонная сборная (из ФБС) на глубину промерзания | |||
| Плита ж/бетонная монолитная мелкозаглубленная |
Монолитная железобетонная плита 250мм с утеплением и ги
|
Монолитная железобетонная плита 250мм с утеплением и ги
|
Монолитная железобетонная плита 250мм с утеплением и ги
|
| УШП (Утепленная Шведская Плита) | |||
| Бетоннная отмостка по периметру дома |
Утепленная отмостка по периметру дома
|
||
| Дренажная система по периметру дома |
Дренажная система с смотровыми колодцами
|
||
| Ливневая система |
Ливневая система с отводом дождевой воды
|
||
| Облицовка цоколя фундамента |
Облицовка цоколя камнем
|
||
| Система контурного заземления | |||
| Стены | |||
| Несущая часть стены |
Керамические блоки Гжель 380мм
|
Керамические блоки Гжель 380мм
|
Керамические блоки Гжель 380мм
|
| Фасадная отделка |
Облицовка кирпичом Braer
|
Облицовка кирпичом Braer
|
|
| Утепление стены | |||
| Внутренняя обшивка/штукатурка со стороны помещения |
Штукатурка стен
|
||
| Пол первого этажа | |||
| Несущая часть перекрытия |
Пол первого этажа - фундаментная плита
|
Пол первого этажа - фундаментная плита
|
Пол первого этажа - фундаментная плита
|
| Теплоизоляция цокольного перекрытия |
Утепление пенополистиролом 100мм над плитой
|
||
| Стяжка/подготовка под чистый пол |
Стяжка полов 80мм
|
||
| Перекрытия над первым и последующими этажами | |||
| Несущая часть перекрытия |
Монолитная железобетонная плита 180мм
|
Монолитная железобетонная плита 180мм
|
Монолитная железобетонная плита 180мм
|
| Звукоизоляция/теплоизоляция в перекрытии | |||
| Стяжка/подготовка под чистый пол |
Стяжка полов 80мм
|
||
| Отделка потолка нижележащего этажа |
Штукатурка потолков
|
||
| Окна и внешние двери | |||
| Окна |
Пластиковые окна REHAU GRAZIO 70мм, двухкамерный стеклопакет
|
Пластиковые окна REHAU GRAZIO 70мм, двухкамерный стеклопакет
|
|
| Оконные наличники | |||
| Откосы в помещении |
Штукатурка откосов
|
||
| Отливы снаружи |
Металлические оконный отливы
|
Металлические оконный отливы
|
|
| Подоконники |
Подоконники ПВХ
|
||
| Входные двери |
Входная утепленная дверь Torex
|
Входная утепленная дверь Torex
|
|
| Внутренние конструкции | |||
| Внутренние несущие стены |
Керамический блок Гжель 250мм
|
Керамический блок Гжель 250мм
|
Керамический блок Гжель 250мм
|
| Внутренние ненесущие стены |
Керамический блок Гжель 120мм
|
Керамический блок Гжель 120мм
|
|
| Звукоизоляция внутренних стен/перегородок | |||
| Межэтажная строительная (черновая) лестница | |||
| Межэтажная постоянная (чистовая) лестница |
Монолитная железобетонная лестница
|
Монолитная железобетонная лестница
|
|
| Межкомнатные двери | |||
| Высота потолков 1 этажа |
3 метра
|
3 метра
|
3 метра
|
| Высота потолков 2 этажа |
2,8 метра
|
2,8 метра
|
2,8 метра
|
| Настилы полов и ограждения крылец, террас, балконов | |||
| Гидроизоляция полов балконов |
Оклеечная гидроизоляция
|
Оклеечная гидроизоляция
|
|
| Инженерное оснащение | |||
| Жидкостной теплый пол | |||
| Электрический теплый пол | |||
| Система вентиляции | |||
| Только вводы воды, электричества, выводы канализации |
Ввод всех коммуникаций
|
Ввод всех коммуникаций
|
Ввод всех коммуникаций
|
| Электроразводка и электрощит | |||
| Разводка хол. и гор. водоснабжения (ХВС и ГВС) | |||
| Разводка батарей и/или системы теплого пола. Без оборудования котельной. | |||
| Иное инженерное оснащение | |||
| Подготовка участка для строительства | |||
| Устройство временного щита электроснабжения | |||
| Устройство въезда на участок | |||
| Дорога на участке до пятна застройки | |||
| Подъем пятна застройки | |||
| Подготовка пятна застройки для фундаментных работ |
Устройство песчаного основания с проливкой трамбовко
|
Устройство песчаного основания с проливкой трамбовко
|
Устройство песчаного основания с проливкой трамбовко
|
| Перемещение или вывоз грунта из котлована фундамента |
Перемещение по участку
|
Перемещение по участку
|
Перемещение по участку
|
| Обеспечение строительного процесса | |||
| Доставка стройматериалов |
Контроль поставки и качества материалов
|
Контроль поставки и качества материалов
|
Контроль поставки и качества материалов
|
| Генератор для обеспечения электричеством | |||
| Уборка и вывоз строительного мусора |
Уборка и вывоз строительного мусора
|
Уборка и вывоз строительного мусора
|
Уборка и вывоз строительного мусора
|
| Организация проживания рабочих (бытовка) |
Доставка и вывоз бытового помещения
|
Доставка и вывоз бытового помещения
|
|
| Биотуалет для рабочих |
Доставка, обслуживание и вывоз биотуалета
|
Доставка, обслуживание и вывоз биотуалета
|
|
| Гарантия на все выполненные работы | |||
| Гарантия |
10 лет
|
10 лет
|
10 лет
|
| Свернуть | |||
|
Минимальная
|
12 566 873 ₽ |
|
Стандарт
|
14 429 794 ₽ |
|
Под чистовую отделку
|
18 476 158 ₽ |
| Показать подробные комплектации | |
|
Сравнить 0 комплектаций
Свернуть все
Развернуть все
|
Минимальная
12 566 873 ₽
|
Стандарт
14 429 794 ₽
|
Под чистовую отделку
18 476 158 ₽
|
| Кровля | |||
| Кровельное покрытие |
Мететаллочерепица Grand Line
|
Мететаллочерепица Grand Line / мягкая кровля SHINGLAS
|
Мететаллочерепица Grand Line / мягкая кровля SHINGLAS / цементн
|
| Обрешетка |
Доска обрезная 25-100
|
Доска обрезная 25-100
|
Доска обрезная 25-100
|
| Контробрешетка |
Брусок 50х50
|
Брусок 50х50
|
Брусок 50х50
|
| Противоконденсатная (ветро-гидроизоляционная) пленка |
Isospan
|
Isospan
|
Isospan
|
| Стропильная система |
Доска обрезная 50х200 с пропиткой
|
Доска обрезная 50х200 с пропиткой
|
Доска обрезная 50х200 с пропиткой
|
| Утепление чердачного перекрытия и стропильной системы |
Минеральная вата Технониколь
|
Минеральная вата Технониколь
|
Минеральная вата Технониколь
|
| Подшивка свесов кровли |
|
|
|
| Подшивка потолков террас и лоджий |
|
|
|
| Водосточная система |
AQUASYSTEM
|
||
| Система снегозадержания |
GrandLine
|
||
| Молниезащита |
Torr
|
||
| Фундамент | |||
| Сваи ж/бетонные |
|
||
| Сваи стальные винтовые | |||
| Лента ж/бетонная монолитная мелкозаглубленная |
|
|
|
| Лента ж/бетонная монолитная на глубину промерзания | |||
| Лента ж/бетонная сборная (из ФБС) на глубину промерзания | |||
| Плита ж/бетонная монолитная мелкозаглубленная |
|
||
| УШП (Утепленная Шведская Плита) | |||
| Бетоннная отмостка по периметру дома |
|
|
|
| Дренажная система по периметру дома |
|
||
| Ливневая система |
|
||
| Облицовка цоколя фундамента |
|
||
| Система контурного заземления |
Torr
|
||
| Стены | |||
| Несущая часть стены |
Газобетон Bonolit 400
D400
|
Газобетон Bonolit 400
D400
|
Газобетон Bonolit 400
D400
|
| Фасадная отделка |
Штукатурка
|
Кирпич
|
|
| Утепление стены | |||
| Внутренняя обшивка/штукатурка со стороны помещения | |||
| Пол первого этажа | |||
| Несущая часть перекрытия |
пустотные плиты
|
пустотные плиты
|
монолитная плита
|
| Теплоизоляция цокольного перекрытия |
Пеноплекс 50 мм
|
Пеноплекс 50 мм
|
Пеноплекс 50 мм
|
| Стяжка/подготовка под чистый пол | |||
| Перекрытия над первым и последующими этажами | |||
| Несущая часть перекрытия |
Деревянное переркрытие
|
Пустотные плиты
|
Монолитное перекрытие
|
| Звукоизоляция/теплоизоляция в перекрытии | |||
| Стяжка/подготовка под чистый пол | |||
| Отделка потолка нижележащего этажа | |||
| Окна и внешние двери | |||
| Окна |
REHAU DELIGHT-Design профиль 70мм
|
||
| Оконные наличники |
|
||
| Откосы в помещении | |||
| Отливы снаружи |
|
||
| Подоконники |
|
||
| Входные двери |
Дверь входная с термо-разрывом входная
|
||
| Внутренние конструкции | |||
| Внутренние несущие стены |
Газобетон 250 мм Bonolit
|
Газобетон 250 мм Bonolit
|
Газобетон 250 мм Bonolit
|
| Внутренние ненесущие стены |
Газобетон 100 мм Bonolit
|
Газобетон 100 мм Bonolit
|
|
| Звукоизоляция внутренних стен/перегородок | |||
| Межэтажная строительная (черновая) лестница |
есть
|
есть
|
есть
|
| Межэтажная постоянная (чистовая) лестница |
есть
|
||
| Межкомнатные двери | |||
| Высота потолков 1 этажа |
3000
|
3250
|
3250
|
| Высота потолков 2 этажа |
2750
|
3000
|
3250
|
| Настилы полов и ограждения крылец, террас, балконов | |||
| Гидроизоляция полов балконов |
есть
|
||
| Инженерное оснащение | |||
| Жидкостной теплый пол |
по выбору
|
||
| Электрический теплый пол |
по выбору
|
||
| Система вентиляции |
есть
|
||
| Только вводы воды, электричества, выводы канализации |
|
|
|
| Электроразводка и электрощит |
|
||
| Разводка хол. и гор. водоснабжения (ХВС и ГВС) |
|
||
| Разводка батарей и/или системы теплого пола. Без оборудования котельной. |
|
||
| Иное инженерное оснащение |
|
||
| Подготовка участка для строительства | |||
| Устройство временного щита электроснабжения |
|
|
|
| Устройство въезда на участок |
|
||
| Дорога на участке до пятна застройки |
|
||
| Подъем пятна застройки |
|
||
| Подготовка пятна застройки для фундаментных работ |
|
||
| Перемещение или вывоз грунта из котлована фундамента |
|
||
| Обеспечение строительного процесса | |||
| Доставка стройматериалов |
|
|
|
| Генератор для обеспечения электричеством |
|
|
|
| Уборка и вывоз строительного мусора |
|
|
|
| Организация проживания рабочих (бытовка) |
|
|
|
| Биотуалет для рабочих |
|
|
|
| Гарантия на все выполненные работы | |||
| Гарантия |
3 года
|
3 года
|
3 года
|
| Свернуть | |||
|
Минимальная
|
5 858 164 ₽ |
|
Стандарт
|
7 254 413 ₽ |
|
Под чистовую отделку
|
8 731 577 ₽ |
| Показать подробные комплектации | |
|
Сравнить 0 комплектаций
Свернуть все
Развернуть все
|
Минимальная
5 858 164 ₽
|
Стандарт
7 254 413 ₽
|
Под чистовую отделку
8 731 577 ₽
|
| Кровля | |||
| Кровельное покрытие |
380
|
510
|
720
|
| Обрешетка |
120
|
120
|
120
|
| Контробрешетка |
110
|
110
|
110
|
| Противоконденсатная (ветро-гидроизоляционная) пленка |
70
|
70
|
70
|
| Стропильная система |
420
|
460
|
520
|
| Утепление чердачного перекрытия и стропильной системы |
160
|
180
|
180
|
| Подшивка свесов кровли |
480
|
480
|
550
|
| Подшивка потолков террас и лоджий |
550
|
550
|
550
|
| Водосточная система |
480
|
480
|
480
|
| Система снегозадержания |
55
|
110
|
180
|
| Молниезащита |
110
|
110
|
110
|
| Фундамент | |||
| Сваи ж/бетонные |
4800
|
4800
|
4800
|
| Сваи стальные винтовые | |||
| Лента ж/бетонная монолитная мелкозаглубленная |
4800
|
4800
|
4800
|
| Лента ж/бетонная монолитная на глубину промерзания |
4800
|
4800
|
4800
|
| Лента ж/бетонная сборная (из ФБС) на глубину промерзания | |||
| Плита ж/бетонная монолитная мелкозаглубленная |
4800
|
4800
|
4800
|
| УШП (Утепленная Шведская Плита) |
6500
|
6500
|
6500
|
| Бетоннная отмостка по периметру дома |
320
|
320
|
320
|
| Дренажная система по периметру дома |
360
|
360
|
360
|
| Ливневая система |
450
|
450
|
450
|
| Облицовка цоколя фундамента |
1400
|
1500
|
1650
|
| Система контурного заземления | |||
| Стены | |||
| Несущая часть стены |
3300
|
3300
|
3300
|
| Фасадная отделка |
650
|
1300
|
1550
|
| Утепление стены |
220
|
330
|
330
|
| Внутренняя обшивка/штукатурка со стороны помещения |
420
|
450
|
480
|
| Пол первого этажа | |||
| Несущая часть перекрытия |
4800
|
4800
|
4800
|
| Теплоизоляция цокольного перекрытия |
280
|
300
|
320
|
| Стяжка/подготовка под чистый пол |
260
|
280
|
300
|
| Перекрытия над первым и последующими этажами | |||
| Несущая часть перекрытия |
4800
|
4800
|
4800
|
| Звукоизоляция/теплоизоляция в перекрытии |
280
|
300
|
320
|
| Стяжка/подготовка под чистый пол |
260
|
280
|
300
|
| Отделка потолка нижележащего этажа |
220
|
380
|
850
|
| Окна и внешние двери | |||
| Окна |
3800
|
4500
|
6500
|
| Оконные наличники |
150
|
150
|
150
|
| Откосы в помещении |
260
|
350
|
410
|
| Отливы снаружи |
120
|
120
|
120
|
| Подоконники |
320
|
320
|
320
|
| Входные двери |
3500
|
4800
|
9700
|
| Внутренние конструкции | |||
| Внутренние несущие стены | |||
| Внутренние ненесущие стены | |||
| Звукоизоляция внутренних стен/перегородок | |||
| Межэтажная строительная (черновая) лестница | |||
| Межэтажная постоянная (чистовая) лестница | |||
| Межкомнатные двери | |||
| Высота потолков 1 этажа | |||
| Высота потолков 2 этажа | |||
| Настилы полов и ограждения крылец, террас, балконов | |||
| Гидроизоляция полов балконов | |||
| Инженерное оснащение | |||
| Жидкостной теплый пол | |||
| Электрический теплый пол | |||
| Система вентиляции | |||
| Только вводы воды, электричества, выводы канализации | |||
| Электроразводка и электрощит | |||
| Разводка хол. и гор. водоснабжения (ХВС и ГВС) | |||
| Разводка батарей и/или системы теплого пола. Без оборудования котельной. | |||
| Иное инженерное оснащение | |||
| Подготовка участка для строительства | |||
| Устройство временного щита электроснабжения |
|
|
|
| Устройство въезда на участок |
|
|
|
| Дорога на участке до пятна застройки |
|
|
|
| Подъем пятна застройки |
|
|
|
| Подготовка пятна застройки для фундаментных работ |
|
|
|
| Перемещение или вывоз грунта из котлована фундамента |
|
|
|
| Обеспечение строительного процесса | |||
| Доставка стройматериалов |
|
|
|
| Генератор для обеспечения электричеством |
|
|
|
| Уборка и вывоз строительного мусора |
|
|
|
| Организация проживания рабочих (бытовка) |
35000
|
35000
|
35000
|
| Биотуалет для рабочих |
5000
|
5000
|
5000
|
| Гарантия на все выполненные работы | |||
| Гарантия |
5
|
5
|
5
|
| Свернуть | |||
|
Минимальная
|
9 812 915 ₽ |
|
Стандарт
|
11 151 040 ₽ |
|
Под чистовую отделку
|
14 287 270 ₽ |
| Показать подробные комплектации | |
|
Сравнить 0 комплектаций
Свернуть все
Развернуть все
|
Минимальная
9 812 915 ₽
|
Стандарт
11 151 040 ₽
|
Под чистовую отделку
14 287 270 ₽
|
| Кровля | |||
| Кровельное покрытие |
Меллочерепица
|
Гибкая черепица
|
Фальцевая кровля
|
| Обрешетка |
|
|
|
| Контробрешетка |
|
|
|
| Противоконденсатная (ветро-гидроизоляционная) пленка |
|
|
|
| Стропильная система |
|
|
|
| Утепление чердачного перекрытия и стропильной системы |
|
|
|
| Подшивка свесов кровли |
|
|
|
| Подшивка потолков террас и лоджий |
|
|
|
| Водосточная система |
|
||
| Система снегозадержания |
|
||
| Молниезащита | |||
| Фундамент | |||
| Сваи ж/бетонные |
|
||
| Сваи стальные винтовые | |||
| Лента ж/бетонная монолитная мелкозаглубленная |
|
||
| Лента ж/бетонная монолитная на глубину промерзания | |||
| Лента ж/бетонная сборная (из ФБС) на глубину промерзания | |||
| Плита ж/бетонная монолитная мелкозаглубленная |
|
||
| УШП (Утепленная Шведская Плита) | |||
| Бетоннная отмостка по периметру дома | |||
| Дренажная система по периметру дома | |||
| Ливневая система | |||
| Облицовка цоколя фундамента | |||
| Система контурного заземления | |||
| Стены | |||
| Несущая часть стены |
|
|
|
| Фасадная отделка |
|
|
|
| Утепление стены |
|
|
|
| Внутренняя обшивка/штукатурка со стороны помещения | |||
| Пол первого этажа | |||
| Несущая часть перекрытия |
|
|
|
| Теплоизоляция цокольного перекрытия |
|
||
| Стяжка/подготовка под чистый пол | |||
| Перекрытия над первым и последующими этажами | |||
| Несущая часть перекрытия |
|
|
|
| Звукоизоляция/теплоизоляция в перекрытии |
|
||
| Стяжка/подготовка под чистый пол | |||
| Отделка потолка нижележащего этажа | |||
| Окна и внешние двери | |||
| Окна | |||
| Оконные наличники | |||
| Откосы в помещении | |||
| Отливы снаружи | |||
| Подоконники | |||
| Входные двери | |||
| Внутренние конструкции | |||
| Внутренние несущие стены |
|
|
|
| Внутренние ненесущие стены |
|
|
|
| Звукоизоляция внутренних стен/перегородок |
|
||
| Межэтажная строительная (черновая) лестница |
|
|
|
| Межэтажная постоянная (чистовая) лестница | |||
| Межкомнатные двери | |||
| Высота потолков 1 этажа | |||
| Высота потолков 2 этажа | |||
| Настилы полов и ограждения крылец, террас, балконов |
|
||
| Гидроизоляция полов балконов |
|
|
|
| Инженерное оснащение | |||
| Жидкостной теплый пол | |||
| Электрический теплый пол | |||
| Система вентиляции | |||
| Только вводы воды, электричества, выводы канализации |
|
|
|
| Электроразводка и электрощит | |||
| Разводка хол. и гор. водоснабжения (ХВС и ГВС) | |||
| Разводка батарей и/или системы теплого пола. Без оборудования котельной. | |||
| Иное инженерное оснащение | |||
| Подготовка участка для строительства | |||
| Устройство временного щита электроснабжения |
|
|
|
| Устройство въезда на участок |
|
||
| Дорога на участке до пятна застройки | |||
| Подъем пятна застройки | |||
| Подготовка пятна застройки для фундаментных работ |
|
|
|
| Перемещение или вывоз грунта из котлована фундамента |
|
||
| Обеспечение строительного процесса | |||
| Доставка стройматериалов |
|
|
|
| Генератор для обеспечения электричеством | |||
| Уборка и вывоз строительного мусора |
|
|
|
| Организация проживания рабочих (бытовка) |
|
|
|
| Биотуалет для рабочих | |||
| Гарантия на все выполненные работы | |||
| Гарантия |
5 лет
|
5 лет
|
5 лет
|
| Свернуть | |||
|
Минимальная
|
19 165 850 ₽ |
|
Стандарт
|
27 877 600 ₽ |
|
Под чистовую отделку
|
43 558 750 ₽ |
| Показать подробные комплектации | |
|
Сравнить 0 комплектаций
Свернуть все
Развернуть все
|
Минимальная
19 165 850 ₽
|
Стандарт
27 877 600 ₽
|
Под чистовую отделку
43 558 750 ₽
|
| Кровля | |||
| Кровельное покрытие |
|
|
|
| Обрешетка |
|
|
|
| Контробрешетка |
|
|
|
| Противоконденсатная (ветро-гидроизоляционная) пленка |
|
|
|
| Стропильная система |
|
|
|
| Утепление чердачного перекрытия и стропильной системы |
|
|
|
| Подшивка свесов кровли |
|
||
| Подшивка потолков террас и лоджий |
|
||
| Водосточная система |
|
|
|
| Система снегозадержания |
|
|
|
| Молниезащита | |||
| Фундамент | |||
| Сваи ж/бетонные | |||
| Сваи стальные винтовые | |||
| Лента ж/бетонная монолитная мелкозаглубленная | |||
| Лента ж/бетонная монолитная на глубину промерзания | |||
| Лента ж/бетонная сборная (из ФБС) на глубину промерзания | |||
| Плита ж/бетонная монолитная мелкозаглубленная |
|
|
|
| УШП (Утепленная Шведская Плита) | |||
| Бетоннная отмостка по периметру дома | |||
| Дренажная система по периметру дома | |||
| Ливневая система | |||
| Облицовка цоколя фундамента | |||
| Система контурного заземления | |||
| Стены | |||
| Несущая часть стены |
|
|
|
| Фасадная отделка |
|
||
| Утепление стены |
|
|
|
| Внутренняя обшивка/штукатурка со стороны помещения |
|
||
| Пол первого этажа | |||
| Несущая часть перекрытия |
|
|
|
| Теплоизоляция цокольного перекрытия |
|
|
|
| Стяжка/подготовка под чистый пол |
|
||
| Перекрытия над первым и последующими этажами | |||
| Несущая часть перекрытия |
|
|
|
| Звукоизоляция/теплоизоляция в перекрытии |
|
|
|
| Стяжка/подготовка под чистый пол |
|
||
| Отделка потолка нижележащего этажа |
|
||
| Окна и внешние двери | |||
| Окна |
|
|
|
| Оконные наличники |
|
||
| Откосы в помещении |
|
||
| Отливы снаружи |
|
|
|
| Подоконники |
|
||
| Входные двери |
|
|
|
| Внутренние конструкции | |||
| Внутренние несущие стены |
|
|
|
| Внутренние ненесущие стены |
|
|
|
| Звукоизоляция внутренних стен/перегородок |
|
|
|
| Межэтажная строительная (черновая) лестница |
|
|
|
| Межэтажная постоянная (чистовая) лестница | |||
| Межкомнатные двери | |||
| Высота потолков 1 этажа |
2,85
|
2,85
|
2,85
|
| Высота потолков 2 этажа |
2,75
|
2,75
|
2,75
|
| Настилы полов и ограждения крылец, террас, балконов |
|
||
| Гидроизоляция полов балконов |
|
||
| Инженерное оснащение | |||
| Жидкостной теплый пол |
|
||
| Электрический теплый пол |
|
||
| Система вентиляции |
естественная
|
естественная
|
естественная
|
| Только вводы воды, электричества, выводы канализации |
|
|
|
| Электроразводка и электрощит |
|
||
| Разводка хол. и гор. водоснабжения (ХВС и ГВС) |
|
||
| Разводка батарей и/или системы теплого пола. Без оборудования котельной. |
|
||
| Иное инженерное оснащение | |||
| Подготовка участка для строительства | |||
| Устройство временного щита электроснабжения |
|
|
|
| Устройство въезда на участок | |||
| Дорога на участке до пятна застройки | |||
| Подъем пятна застройки | |||
| Подготовка пятна застройки для фундаментных работ |
|
|
|
| Перемещение или вывоз грунта из котлована фундамента |
|
|
|
| Обеспечение строительного процесса | |||
| Доставка стройматериалов |
|
|
|
| Генератор для обеспечения электричеством | |||
| Уборка и вывоз строительного мусора |
|
|
|
| Организация проживания рабочих (бытовка) |
|
|
|
| Биотуалет для рабочих |
|
|
|
| Гарантия на все выполненные работы | |||
| Гарантия |
|
|
|
| Свернуть | |||
|
Минимальная
|
18 468 910 ₽ |
|
Стандарт
|
20 455 189 ₽ |
|
Под чистовую отделку
|
22 824 785 ₽ |
| Показать подробные комплектации | |
|
Сравнить 0 комплектаций
Свернуть все
Развернуть все
|
Минимальная
18 468 910 ₽
|
Стандарт
20 455 189 ₽
|
Под чистовую отделку
22 824 785 ₽
|
| Кровля | |||
| Кровельное покрытие |
Гибкая черепица, керамическая черепица, фальцевое пок
|
Гибкая черепица, керамическая черепица, фальцевое пок
|
Гибкая черепица, керамическая черепица, фальцевое пок
|
| Обрешетка |
Доска калиброванная 30 х120 обработанна
|
Доска калиброванная 30 х120 обработанна
|
Доска калиброванная 30 х120 обработанна
|
| Контробрешетка |
Брусок калиброванная 50 х 50 обработанн
|
Брусок калиброванная 50 х 50 обработанн
|
Брусок калиброванная 50 х 50 обработанн
|
| Противоконденсатная (ветро-гидроизоляционная) пленка |
В соответствии с проектом.
|
В соответствии с проектом.
|
В соответствии с проектом.
|
| Стропильная система |
Доска 50 Х 200 обработанная огнебиозащи
|
Доска 50 Х 200 обработанная огнебиозащи
|
Доска 50 Х 200 обработанная огнебиозащи
|
| Утепление чердачного перекрытия и стропильной системы |
Базальтовыми утеплителями, перекрест
|
Базальтовыми утеплителями, перекрест
|
Базальтовыми утеплителями, перекрест
|
| Подшивка свесов кровли |
Планкен крашенный , софит металл.
|
||
| Подшивка потолков террас и лоджий |
Планкен крашенный , софит металл.
|
||
| Водосточная система |
Пластиковая , металлическая в цвет кро
|
||
| Система снегозадержания |
В соответствии с типом покрытия кровл
|
В соответствии с типом покрытия кровл
|
В соответствии с типом покрытия кровл
|
| Молниезащита |
По согласованию.
|
||
| Фундамент | |||
| Сваи ж/бетонные |
По проекту.
|
По проекту.
|
По проекту.
|
| Сваи стальные винтовые | |||
| Лента ж/бетонная монолитная мелкозаглубленная |
По проекту.
|
По проекту.
|
По проекту.
|
| Лента ж/бетонная монолитная на глубину промерзания |
По проекту.
|
По проекту.
|
По проекту.
|
| Лента ж/бетонная сборная (из ФБС) на глубину промерзания |
По проекту.
|
По проекту.
|
По проекту.
|
| Плита ж/бетонная монолитная мелкозаглубленная |
По проекту.
|
По проекту.
|
По проекту.
|
| УШП (Утепленная Шведская Плита) |
По проекту.
|
По проекту.
|
По проекту.
|
| Бетоннная отмостка по периметру дома |
По проекту.
|
||
| Дренажная система по периметру дома |
По проекту.
|
||
| Ливневая система |
По проекту.
|
||
| Облицовка цоколя фундамента |
По проекту.
|
||
| Система контурного заземления |
По согласованию.
|
||
| Стены | |||
| Несущая часть стены |
По проекту.
|
По проекту.
|
По проекту.
|
| Фасадная отделка |
По проекту.
|
По проекту.
|
По проекту.
|
| Утепление стены |
По проекту.
|
По проекту.
|
|
| Внутренняя обшивка/штукатурка со стороны помещения |
По проекту.
|
||
| Пол первого этажа | |||
| Несущая часть перекрытия |
По проекту.
|
По проекту.
|
По проекту.
|
| Теплоизоляция цокольного перекрытия |
По проекту.
|
По проекту.
|
По проекту.
|
| Стяжка/подготовка под чистый пол |
По проекту.
|
||
| Перекрытия над первым и последующими этажами | |||
| Несущая часть перекрытия |
По проекту.
|
По проекту.
|
По проекту.
|
| Звукоизоляция/теплоизоляция в перекрытии |
По проекту.
|
||
| Стяжка/подготовка под чистый пол |
По проекту.
|
||
| Отделка потолка нижележащего этажа |
По проекту.
|
||
| Окна и внешние двери | |||
| Окна |
По проекту. Белый профиль.
|
По проекту. Белый профиль, энергоэффек
|
По проекту. Ламинированный теплый про
|
| Оконные наличники |
По проекту.
|
По проекту.
|
По проекту.
|
| Откосы в помещении |
|
||
| Отливы снаружи |
По проекту.
|
По проекту.
|
По проекту.
|
| Подоконники |
По проекту.
|
||
| Входные двери |
Стандартные.
|
Усиленные.
|
Усиленные с тероморазрывом.
|
| Внутренние конструкции | |||
| Внутренние несущие стены |
По проекту.
|
По проекту.
|
По проекту.
|
| Внутренние ненесущие стены |
По проекту.
|
По проекту.
|
По проекту.
|
| Звукоизоляция внутренних стен/перегородок |
По проекту.
|
||
| Межэтажная строительная (черновая) лестница |
По проекту.
|
По проекту.
|
|
| Межэтажная постоянная (чистовая) лестница |
По проекту.
|
||
| Межкомнатные двери | |||
| Высота потолков 1 этажа |
2,5 + по проекту
|
3,0 + по проекту.
|
3,5 + по проекту
|
| Высота потолков 2 этажа |
2,5 + по проекту
|
3,0 + по проекту.
|
3,5 + по проекту
|
| Настилы полов и ограждения крылец, террас, балконов |
По проекту.
|
По проекту.
|
|
| Гидроизоляция полов балконов |
По проекту.
|
По проекту.
|
По проекту.
|
| Инженерное оснащение | |||
| Жидкостной теплый пол |
По проекту.
|
||
| Электрический теплый пол |
По проекту.
|
||
| Система вентиляции |
По проекту.
|
||
| Только вводы воды, электричества, выводы канализации |
По проекту.
|
По проекту.
|
|
| Электроразводка и электрощит |
По проекту.
|
||
| Разводка хол. и гор. водоснабжения (ХВС и ГВС) |
По проекту.
|
||
| Разводка батарей и/или системы теплого пола. Без оборудования котельной. |
По проекту.
|
||
| Иное инженерное оснащение |
По проекту.
|
||
| Подготовка участка для строительства | |||
| Устройство временного щита электроснабжения |
|
|
|
| Устройство въезда на участок |
|
|
|
| Дорога на участке до пятна застройки |
|
||
| Подъем пятна застройки |
|
||
| Подготовка пятна застройки для фундаментных работ |
|
|
|
| Перемещение или вывоз грунта из котлована фундамента |
|
|
|
| Обеспечение строительного процесса | |||
| Доставка стройматериалов |
|
|
|
| Генератор для обеспечения электричеством |
|
|
|
| Уборка и вывоз строительного мусора |
|
|
|
| Организация проживания рабочих (бытовка) |
|
|
|
| Биотуалет для рабочих |
|
|
|
| Гарантия на все выполненные работы | |||
| Гарантия |
|
|
|
| Свернуть | |||
|
Минимальная
|
14 635 740 ₽ |
|
Стандарт
|
18 120 440 ₽ |
|
Под чистовую отделку
|
21 256 670 ₽ |
| Показать подробные комплектации | |
|
Сравнить 0 комплектаций
Свернуть все
Развернуть все
|
Минимальная
14 635 740 ₽
|
Стандарт
18 120 440 ₽
|
Под чистовую отделку
21 256 670 ₽
|
| Кровля | |||
| Кровельное покрытие |
Металлочерепица
|
Металлочерепица
|
Металлочерепица
|
| Обрешетка |
|
|
|
| Контробрешетка |
|
|
|
| Противоконденсатная (ветро-гидроизоляционная) пленка |
|
|
|
| Стропильная система |
|
|
|
| Утепление чердачного перекрытия и стропильной системы |
|
||
| Подшивка свесов кровли |
|
|
|
| Подшивка потолков террас и лоджий |
|
||
| Водосточная система | |||
| Система снегозадержания | |||
| Молниезащита | |||
| Фундамент | |||
| Сваи ж/бетонные | |||
| Сваи стальные винтовые | |||
| Лента ж/бетонная монолитная мелкозаглубленная | |||
| Лента ж/бетонная монолитная на глубину промерзания | |||
| Лента ж/бетонная сборная (из ФБС) на глубину промерзания | |||
| Плита ж/бетонная монолитная мелкозаглубленная |
|
|
|
| УШП (Утепленная Шведская Плита) | |||
| Бетоннная отмостка по периметру дома | |||
| Дренажная система по периметру дома | |||
| Ливневая система | |||
| Облицовка цоколя фундамента | |||
| Система контурного заземления | |||
| Стены | |||
| Несущая часть стены |
|
|
|
| Фасадная отделка | |||
| Утепление стены | |||
| Внутренняя обшивка/штукатурка со стороны помещения |
|
||
| Пол первого этажа | |||
| Несущая часть перекрытия | |||
| Теплоизоляция цокольного перекрытия | |||
| Стяжка/подготовка под чистый пол |
|
||
| Перекрытия над первым и последующими этажами | |||
| Несущая часть перекрытия |
|
|
|
| Звукоизоляция/теплоизоляция в перекрытии |
|
||
| Стяжка/подготовка под чистый пол |
|
||
| Отделка потолка нижележащего этажа |
|
||
| Окна и внешние двери | |||
| Окна |
|
|
|
| Оконные наличники |
|
||
| Откосы в помещении |
|
||
| Отливы снаружи |
|
||
| Подоконники |
|
||
| Входные двери |
|
|
|
| Внутренние конструкции | |||
| Внутренние несущие стены |
|
|
|
| Внутренние ненесущие стены |
|
|
|
| Звукоизоляция внутренних стен/перегородок | |||
| Межэтажная строительная (черновая) лестница |
|
||
| Межэтажная постоянная (чистовая) лестница |
|
||
| Межкомнатные двери | |||
| Высота потолков 1 этажа |
2,75 м
|
2,75 м
|
2,75 м
|
| Высота потолков 2 этажа |
2,75 м
|
2,75 м
|
2,75 м
|
| Настилы полов и ограждения крылец, террас, балконов | |||
| Гидроизоляция полов балконов | |||
| Инженерное оснащение | |||
| Жидкостной теплый пол | |||
| Электрический теплый пол | |||
| Система вентиляции | |||
| Только вводы воды, электричества, выводы канализации |
|
|
|
| Электроразводка и электрощит | |||
| Разводка хол. и гор. водоснабжения (ХВС и ГВС) | |||
| Разводка батарей и/или системы теплого пола. Без оборудования котельной. | |||
| Иное инженерное оснащение | |||
| Подготовка участка для строительства | |||
| Устройство временного щита электроснабжения | |||
| Устройство въезда на участок | |||
| Дорога на участке до пятна застройки | |||
| Подъем пятна застройки | |||
| Подготовка пятна застройки для фундаментных работ | |||
| Перемещение или вывоз грунта из котлована фундамента | |||
| Обеспечение строительного процесса | |||
| Доставка стройматериалов |
|
|
|
| Генератор для обеспечения электричеством | |||
| Уборка и вывоз строительного мусора |
|
|
|
| Организация проживания рабочих (бытовка) |
|
|
|
| Биотуалет для рабочих |
|
|
|
| Гарантия на все выполненные работы | |||
| Гарантия |
|
|
|
| Свернуть | |||
|
Минимальная
|
13 241 860 ₽ |
|
Стандарт
|
16 726 560 ₽ |
|
Под чистовую отделку
|
23 695 960 ₽ |
| Показать подробные комплектации | |
|
Сравнить 0 комплектаций
Свернуть все
Развернуть все
|
Минимальная
13 241 860 ₽
|
Стандарт
16 726 560 ₽
|
Под чистовую отделку
23 695 960 ₽
|
| Кровля | |||
| Кровельное покрытие |
Металлочерепица
|
Мягкая черепица
|
Цементно-песчаная черепица
|
| Обрешетка |
Сухой строганый брус
|
Сухой строганый брус
|
Сухой строганый брус
|
| Контробрешетка |
Сухой строганый брус
|
Сухой строганый брус
|
Сухой строганый брус
|
| Противоконденсатная (ветро-гидроизоляционная) пленка |
ПВХ пленка GrandLine
|
ПВХ пленка GrandLine
|
ПВХ пленка GrandLine
|
| Стропильная система |
Доска строганная антисептированная
|
Доска строганная антисептированная
|
Доска строганная антисептированная
|
| Утепление чердачного перекрытия и стропильной системы |
Утепление 200 мм
|
Утепление 200 мм
|
Утепление 200 мм
|
| Подшивка свесов кровли |
Установка J- профиля, J - фаска, саморезы оцинкованные с
|
Установка J- профиля, J - фаска, саморезы оцинкованные с
|
Устройство подсистемы из бруска сухого, строганного 45
|
| Подшивка потолков террас и лоджий | |||
| Водосточная система |
Водосточная система Grand Line пластиковая
Кронштейны мет
|
Водосточная система Grand Line пластиковая
Кронштейны мет
|
Водосточная система Grand Line пластиковая
Кронштейны мет
|
| Система снегозадержания |
Grand Line
|
Grand Line
|
Grand Line
|
| Молниезащита | |||
| Фундамент | |||
| Сваи ж/бетонные | |||
| Сваи стальные винтовые | |||
| Лента ж/бетонная монолитная мелкозаглубленная | |||
| Лента ж/бетонная монолитная на глубину промерзания | |||
| Лента ж/бетонная сборная (из ФБС) на глубину промерзания | |||
| Плита ж/бетонная монолитная мелкозаглубленная |
Плита монолитная 300 мм
|
Утепленная монолитная плита 300 мм
|
|
| УШП (Утепленная Шведская Плита) |
Утепленная шведская плита
|
||
| Бетоннная отмостка по периметру дома |
|
|
|
| Дренажная система по периметру дома |
|
|
|
| Ливневая система | |||
| Облицовка цоколя фундамента | |||
| Система контурного заземления | |||
| Стены | |||
| Несущая часть стены |
Стены наружные Газобетон 300 мм
|
Стены наружные Газобетон 375 мм
|
Стены наружные Газобетон 400 мм
|
| Фасадная отделка |
Фасад "Виниловый сайдинг"
|
Фасад штукатурный "Шуба" по утеплителю
|
Фасад утеплённый "Клинкерный кирпич"
|
| Утепление стены |
Утепление фасада утеплителем Paroc плотностью 110 кг\м3
|
Утепление фасада утеплителем Paroc плотностью 110 кг\м3
|
Утепление фасада утеплителем Paroc плотностью 110 кг\м3
|
| Внутренняя обшивка/штукатурка со стороны помещения | |||
| Пол первого этажа | |||
| Несущая часть перекрытия |
Межэтажное перекрытие "Стропильная система" 200 мм
|
Межэтажное перекрытие "Плита пустотная" 220 мм
|
Межэтажное перекрытие "Плита монолитная" 180 мм
|
| Теплоизоляция цокольного перекрытия | |||
| Стяжка/подготовка под чистый пол |
Стяжка по проекту
|
Стяжка по проекту
|
Стяжка по проекту
|
| Перекрытия над первым и последующими этажами | |||
| Несущая часть перекрытия |
Межэтажное перекрытие "Стропильная система" 200 мм
|
Межэтажное перекрытие "Плита пустотная" 220 мм
|
Межэтажное перекрытие "Плита монолитная" 180 мм
|
| Звукоизоляция/теплоизоляция в перекрытии | |||
| Стяжка/подготовка под чистый пол | |||
| Отделка потолка нижележащего этажа | |||
| Окна и внешние двери | |||
| Окна |
Двухкамерный стеклопакет
|
Двухкамерный стеклопакет
|
Двухкамерный стеклопакет
|
| Оконные наличники |
Металлические наличники
|
Металлические наличники
|
Металлические наличники
|
| Откосы в помещении | |||
| Отливы снаружи |
Металлические отливы
|
Металлические отливы
|
Металлические отливы
|
| Подоконники | |||
| Входные двери |
Дверь металлическая огнеупорная
|
Дверь металлическая огнеупорная
|
Дверь металлическая огнеупорная
|
| Внутренние конструкции | |||
| Внутренние несущие стены |
Стены внутренние, несущие 200 мм
|
Стены внутренние, несущие 250 мм
|
Стены внутренние, несущие 250 мм
|
| Внутренние ненесущие стены |
Перегородки внутренние 100 мм
|
Перегородки внутренние 150 мм
|
Перегородки внутренние 150 мм
|
| Звукоизоляция внутренних стен/перегородок | |||
| Межэтажная строительная (черновая) лестница |
Черновая деревянная лестница
|
Лестница железобетонная
|
Лестница металлическая сварная
|
| Межэтажная постоянная (чистовая) лестница | |||
| Межкомнатные двери | |||
| Высота потолков 1 этажа |
В соответствии с проектом
|
В соответствии с проектом
|
В соответствии с проектом
|
| Высота потолков 2 этажа |
В соответствии с проектом
|
В соответствии с проектом
|
В соответствии с проектом
|
| Настилы полов и ограждения крылец, террас, балконов | |||
| Гидроизоляция полов балконов | |||
| Инженерное оснащение | |||
| Жидкостной теплый пол | |||
| Электрический теплый пол | |||
| Система вентиляции |
В соответствии с проектом
|
В соответствии с проектом
|
В соответствии с проектом
|
| Только вводы воды, электричества, выводы канализации |
В соответствии с проектом
|
В соответствии с проектом
|
В соответствии с проектом
|
| Электроразводка и электрощит |
В соответствии с проектом
|
В соответствии с проектом
|
В соответствии с проектом
|
| Разводка хол. и гор. водоснабжения (ХВС и ГВС) |
В соответствии с проектом
|
В соответствии с проектом
|
В соответствии с проектом
|
| Разводка батарей и/или системы теплого пола. Без оборудования котельной. |
В соответствии с проектом
|
В соответствии с проектом
|
В соответствии с проектом
|
| Иное инженерное оснащение |
В соответствии с проектом
|
В соответствии с проектом
|
В соответствии с проектом
|
| Подготовка участка для строительства | |||
| Устройство временного щита электроснабжения |
В соответствии с проектом производства работ
|
В соответствии с проектом производства работ
|
В соответствии с проектом производства работ
|
| Устройство въезда на участок |
В соответствии с проектом производства работ
|
В соответствии с проектом производства работ
|
В соответствии с проектом производства работ
|
| Дорога на участке до пятна застройки | |||
| Подъем пятна застройки | |||
| Подготовка пятна застройки для фундаментных работ |
В соответствии с проектом производства работ
|
В соответствии с проектом производства работ
|
В соответствии с проектом производства работ
|
| Перемещение или вывоз грунта из котлована фундамента |
В соответствии с проектом производства работ
|
В соответствии с проектом производства работ
|
В соответствии с проектом производства работ
|
| Обеспечение строительного процесса | |||
| Доставка стройматериалов |
В соответствии с проектом производства работ
|
В соответствии с проектом производства работ
|
В соответствии с проектом производства работ
|
| Генератор для обеспечения электричеством |
В соответствии с проектом производства работ
|
В соответствии с проектом производства работ
|
В соответствии с проектом производства работ
|
| Уборка и вывоз строительного мусора |
В соответствии с проектом производства работ
|
В соответствии с проектом производства работ
|
В соответствии с проектом производства работ
|
| Организация проживания рабочих (бытовка) |
В соответствии с проектом производства работ
|
В соответствии с проектом производства работ
|
В соответствии с проектом производства работ
|
| Биотуалет для рабочих |
В соответствии с проектом производства работ
|
В соответствии с проектом производства работ
|
В соответствии с проектом производства работ
|
| Гарантия на все выполненные работы | |||
| Гарантия |
15 лет
|
15 лет
|
15 лет
|
| Свернуть | |||
|
Минимальная
|
20 908 200 ₽ |
|
Стандарт
|
26 135 250 ₽ |
|
Под чистовую отделку
|
38 331 700 ₽ |
| Показать подробные комплектации | |
|
Сравнить 0 комплектаций
Свернуть все
Развернуть все
|
Минимальная
20 908 200 ₽
|
Стандарт
26 135 250 ₽
|
Под чистовую отделку
38 331 700 ₽
|
| Кровля | |||
| Кровельное покрытие | |||
| Обрешетка | |||
| Контробрешетка | |||
| Противоконденсатная (ветро-гидроизоляционная) пленка | |||
| Стропильная система | |||
| Утепление чердачного перекрытия и стропильной системы | |||
| Подшивка свесов кровли | |||
| Подшивка потолков террас и лоджий | |||
| Водосточная система | |||
| Система снегозадержания | |||
| Молниезащита | |||
| Фундамент | |||
| Сваи ж/бетонные | |||
| Сваи стальные винтовые | |||
| Лента ж/бетонная монолитная мелкозаглубленная | |||
| Лента ж/бетонная монолитная на глубину промерзания | |||
| Лента ж/бетонная сборная (из ФБС) на глубину промерзания | |||
| Плита ж/бетонная монолитная мелкозаглубленная | |||
| УШП (Утепленная Шведская Плита) | |||
| Бетоннная отмостка по периметру дома | |||
| Дренажная система по периметру дома | |||
| Ливневая система | |||
| Облицовка цоколя фундамента | |||
| Система контурного заземления | |||
| Стены | |||
| Несущая часть стены | |||
| Фасадная отделка | |||
| Утепление стены | |||
| Внутренняя обшивка/штукатурка со стороны помещения | |||
| Пол первого этажа | |||
| Несущая часть перекрытия | |||
| Теплоизоляция цокольного перекрытия | |||
| Стяжка/подготовка под чистый пол | |||
| Перекрытия над первым и последующими этажами | |||
| Несущая часть перекрытия | |||
| Звукоизоляция/теплоизоляция в перекрытии | |||
| Стяжка/подготовка под чистый пол | |||
| Отделка потолка нижележащего этажа | |||
| Окна и внешние двери | |||
| Окна | |||
| Оконные наличники | |||
| Откосы в помещении | |||
| Отливы снаружи | |||
| Подоконники | |||
| Входные двери | |||
| Внутренние конструкции | |||
| Внутренние несущие стены | |||
| Внутренние ненесущие стены | |||
| Звукоизоляция внутренних стен/перегородок | |||
| Межэтажная строительная (черновая) лестница | |||
| Межэтажная постоянная (чистовая) лестница | |||
| Межкомнатные двери | |||
| Высота потолков 1 этажа | |||
| Высота потолков 2 этажа | |||
| Настилы полов и ограждения крылец, террас, балконов | |||
| Гидроизоляция полов балконов | |||
| Инженерное оснащение | |||
| Жидкостной теплый пол | |||
| Электрический теплый пол | |||
| Система вентиляции | |||
| Только вводы воды, электричества, выводы канализации | |||
| Электроразводка и электрощит | |||
| Разводка хол. и гор. водоснабжения (ХВС и ГВС) | |||
| Разводка батарей и/или системы теплого пола. Без оборудования котельной. | |||
| Иное инженерное оснащение | |||
| Подготовка участка для строительства | |||
| Устройство временного щита электроснабжения | |||
| Устройство въезда на участок | |||
| Дорога на участке до пятна застройки | |||
| Подъем пятна застройки | |||
| Подготовка пятна застройки для фундаментных работ | |||
| Перемещение или вывоз грунта из котлована фундамента | |||
| Обеспечение строительного процесса | |||
| Доставка стройматериалов | |||
| Генератор для обеспечения электричеством | |||
| Уборка и вывоз строительного мусора | |||
| Организация проживания рабочих (бытовка) | |||
| Биотуалет для рабочих | |||
| Гарантия на все выполненные работы | |||
| Гарантия |
|
|
|
| Свернуть | |||
|
Минимальная
|
10 279 865 ₽ |
|
Стандарт
|
11 325 275 ₽ |
|
Под чистовую отделку
|
16 552 325 ₽ |
| Показать подробные комплектации | |
|
Сравнить 0 комплектаций
Свернуть все
Развернуть все
|
Минимальная
10 279 865 ₽
|
Стандарт
11 325 275 ₽
|
Под чистовую отделку
16 552 325 ₽
|
| Кровля | |||
| Кровельное покрытие |
Металлочерепица Grand Line классик Satin 0,5 RAL 8017
|
Металлочерепица Grand Line классик Satin 0,5 RAL 8017
|
Металлочерепица Grand Line классик Satin 0,5 RAL 8017
|
| Обрешетка |
Доска обрезная 25*100
|
Доска обрезная 25*100
|
Доска обрезная 25*100
|
| Контробрешетка |
Брусок 50*50
|
Брусок 50*50
|
Брусок 50*50
|
| Противоконденсатная (ветро-гидроизоляционная) пленка |
|
|
|
| Стропильная система |
Доска обрезная 50*200 с пропиткой
|
Доска обрезная 50*200 с пропиткой
|
Доска обрезная 50*200 с пропиткой
|
| Утепление чердачного перекрытия и стропильной системы |
Минераловатные плиты (35 кг/м3)
|
Минераловатные плиты (35 кг/м3)
|
Минераловатные плиты (35 кг/м3)
|
| Подшивка свесов кровли |
|
|
|
| Подшивка потолков террас и лоджий |
|
|
|
| Водосточная система |
|
|
|
| Система снегозадержания |
|
||
| Молниезащита | |||
| Фундамент | |||
| Сваи ж/бетонные | |||
| Сваи стальные винтовые | |||
| Лента ж/бетонная монолитная мелкозаглубленная |
|
||
| Лента ж/бетонная монолитная на глубину промерзания |
|
||
| Лента ж/бетонная сборная (из ФБС) на глубину промерзания | |||
| Плита ж/бетонная монолитная мелкозаглубленная |
|
||
| УШП (Утепленная Шведская Плита) |
|
||
| Бетоннная отмостка по периметру дома |
|
|
|
| Дренажная система по периметру дома |
|
||
| Ливневая система | |||
| Облицовка цоколя фундамента |
|
||
| Система контурного заземления | |||
| Стены | |||
| Несущая часть стены |
Блок газосиликатный D600
600*375*250
|
Блок газосиликатный D600
600*375*250
|
Блок газосиликатный D600
600*375*250
|
| Фасадная отделка |
|
|
|
| Утепление стены |
|
||
| Внутренняя обшивка/штукатурка со стороны помещения | |||
| Пол первого этажа | |||
| Несущая часть перекрытия |
Пустотные плиты
|
Пустотные плиты
|
Монолитная плита
|
| Теплоизоляция цокольного перекрытия | |||
| Стяжка/подготовка под чистый пол | |||
| Перекрытия над первым и последующими этажами | |||
| Несущая часть перекрытия |
Деревянное перекрытие
|
Плиты перекрытия
|
Плиты перекрытия
|
| Звукоизоляция/теплоизоляция в перекрытии | |||
| Стяжка/подготовка под чистый пол | |||
| Отделка потолка нижележащего этажа | |||
| Окна и внешние двери | |||
| Окна |
Профиль REHAU,
энергосберегающий стеклопакет
|
||
| Оконные наличники | |||
| Откосы в помещении | |||
| Отливы снаружи |
|
|
|
| Подоконники |
|
||
| Входные двери |
Дверь входная с термо-разрывом
|
||
| Внутренние конструкции | |||
| Внутренние несущие стены |
Блок газосиликатный D600
600*300*250
|
Блок газосиликатный D600
600*300*250
|
Блок газосиликатный D600
600*300*250
|
| Внутренние ненесущие стены |
Блок газосиликатный D600
600*100*250
|
Блок газосиликатный D600
600*100*250
|
Блок газосиликатный D600
600*100*250
|
| Звукоизоляция внутренних стен/перегородок | |||
| Межэтажная строительная (черновая) лестница |
|
|
|
| Межэтажная постоянная (чистовая) лестница |
|
||
| Межкомнатные двери | |||
| Высота потолков 1 этажа |
2.7 метра
|
2.7 метра
|
2.7 метра
|
| Высота потолков 2 этажа |
2.7 метра
|
2.7 метра
|
2.7 метра
|
| Настилы полов и ограждения крылец, террас, балконов | |||
| Гидроизоляция полов балконов | |||
| Инженерное оснащение | |||
| Жидкостной теплый пол | |||
| Электрический теплый пол | |||
| Система вентиляции | |||
| Только вводы воды, электричества, выводы канализации |
Ввод всех коммуникаций
|
Ввод всех коммуникаций
|
Ввод всех коммуникаций
|
| Электроразводка и электрощит | |||
| Разводка хол. и гор. водоснабжения (ХВС и ГВС) |
|
||
| Разводка батарей и/или системы теплого пола. Без оборудования котельной. | |||
| Иное инженерное оснащение | |||
| Подготовка участка для строительства | |||
| Устройство временного щита электроснабжения |
|
|
|
| Устройство въезда на участок | |||
| Дорога на участке до пятна застройки | |||
| Подъем пятна застройки | |||
| Подготовка пятна застройки для фундаментных работ |
|
|
|
| Перемещение или вывоз грунта из котлована фундамента |
Перемещение по участку
|
Перемещение по участку
|
Перемещение по участку
|
| Обеспечение строительного процесса | |||
| Доставка стройматериалов |
|
|
|
| Генератор для обеспечения электричеством |
|
|
|
| Уборка и вывоз строительного мусора |
|
|
|
| Организация проживания рабочих (бытовка) |
Доставка и вывоз строительной бытовки
|
Доставка и вывоз строительной бытовки
|
Доставка и вывоз строительной бытовки
|
| Биотуалет для рабочих |
Доставка, обслуживание и вывоз биотуалета
|
Доставка, обслуживание и вывоз биотуалета
|
Доставка, обслуживание и вывоз биотуалета
|
| Гарантия на все выполненные работы | |||
| Гарантия |
5 лет
|
5 лет
|
5 лет
|
| Свернуть | |||
|
Минимальная
|
14 269 846 ₽ |
|
Стандарт
|
20 228 683 ₽ |
|
Под чистовую отделку
|
23 051 290 ₽ |
| Показать подробные комплектации | |
|
Сравнить 0 комплектаций
Свернуть все
Развернуть все
|
Минимальная
14 269 846 ₽
|
Стандарт
20 228 683 ₽
|
Под чистовую отделку
23 051 290 ₽
|
| Кровля | |||
| Кровельное покрытие |
|
|
|
| Обрешетка |
|
|
|
| Контробрешетка | |||
| Противоконденсатная (ветро-гидроизоляционная) пленка | |||
| Стропильная система |
|
|
|
| Утепление чердачного перекрытия и стропильной системы |
|
|
|
| Подшивка свесов кровли |
|
|
|
| Подшивка потолков террас и лоджий |
|
|
|
| Водосточная система |
|
|
|
| Система снегозадержания |
|
|
|
| Молниезащита |
|
|
|
| Фундамент | |||
| Сваи ж/бетонные | |||
| Сваи стальные винтовые | |||
| Лента ж/бетонная монолитная мелкозаглубленная | |||
| Лента ж/бетонная монолитная на глубину промерзания | |||
| Лента ж/бетонная сборная (из ФБС) на глубину промерзания | |||
| Плита ж/бетонная монолитная мелкозаглубленная |
|
|
|
| УШП (Утепленная Шведская Плита) | |||
| Бетоннная отмостка по периметру дома |
|
|
|
| Дренажная система по периметру дома |
|
|
|
| Ливневая система | |||
| Облицовка цоколя фундамента |
|
|
|
| Система контурного заземления | |||
| Стены | |||
| Несущая часть стены |
|
|
|
| Фасадная отделка |
|
|
|
| Утепление стены |
|
|
|
| Внутренняя обшивка/штукатурка со стороны помещения |
|
||
| Пол первого этажа | |||
| Несущая часть перекрытия |
|
|
|
| Теплоизоляция цокольного перекрытия |
|
|
|
| Стяжка/подготовка под чистый пол |
|
|
|
| Перекрытия над первым и последующими этажами | |||
| Несущая часть перекрытия |
|
|
|
| Звукоизоляция/теплоизоляция в перекрытии | |||
| Стяжка/подготовка под чистый пол |
|
|
|
| Отделка потолка нижележащего этажа |
|
||
| Окна и внешние двери | |||
| Окна |
|
|
|
| Оконные наличники |
|
|
|
| Откосы в помещении |
|
|
|
| Отливы снаружи |
|
|
|
| Подоконники |
|
|
|
| Входные двери |
|
|
|
| Внутренние конструкции | |||
| Внутренние несущие стены |
|
|
|
| Внутренние ненесущие стены |
|
|
|
| Звукоизоляция внутренних стен/перегородок |
|
|
|
| Межэтажная строительная (черновая) лестница |
|
|
|
| Межэтажная постоянная (чистовая) лестница |
|
||
| Межкомнатные двери |
|
||
| Высота потолков 1 этажа | |||
| Высота потолков 2 этажа | |||
| Настилы полов и ограждения крылец, террас, балконов |
|
||
| Гидроизоляция полов балконов | |||
| Инженерное оснащение | |||
| Жидкостной теплый пол | |||
| Электрический теплый пол | |||
| Система вентиляции |
|
||
| Только вводы воды, электричества, выводы канализации | |||
| Электроразводка и электрощит |
|
||
| Разводка хол. и гор. водоснабжения (ХВС и ГВС) |
|
||
| Разводка батарей и/или системы теплого пола. Без оборудования котельной. |
|
||
| Иное инженерное оснащение | |||
| Подготовка участка для строительства | |||
| Устройство временного щита электроснабжения |
|
|
|
| Устройство въезда на участок | |||
| Дорога на участке до пятна застройки | |||
| Подъем пятна застройки | |||
| Подготовка пятна застройки для фундаментных работ | |||
| Перемещение или вывоз грунта из котлована фундамента | |||
| Обеспечение строительного процесса | |||
| Доставка стройматериалов |
|
|
|
| Генератор для обеспечения электричеством | |||
| Уборка и вывоз строительного мусора | |||
| Организация проживания рабочих (бытовка) |
|
|
|
| Биотуалет для рабочих |
|
|
|
| Гарантия на все выполненные работы | |||
| Гарантия |
|
|
|
| Свернуть | |||
|
Минимальная
|
9 171 730 ₽ |
|
Стандарт
|
13 102 472 ₽ |
|
Под чистовую отделку
|
16 378 090 ₽ |
| Показать подробные комплектации | |
|
Сравнить 0 комплектаций
Свернуть все
Развернуть все
|
Минимальная
9 171 730 ₽
|
Стандарт
13 102 472 ₽
|
Под чистовую отделку
16 378 090 ₽
|
| Кровля | |||
| Кровельное покрытие |
Металлочерепица T05 (Zn140) PE-полиэстер. Цвет на выбор
|
Металлочерепица T05 (Zn140) PE-полиэстер. Цвет на выбор
|
Металлочерепица T05 (Zn140) PE-полиэстер. Цвет на выбор
|
| Обрешетка |
Доска 20х95 мм, сухая, строганная
|
Доска 20х95 мм, сухая, строганная
|
Доска 20х95 мм, сухая, строганная
|
| Контробрешетка |
Брус 45х45 мм, сухой, строганный
|
Брус 45х45 мм, сухой, строганный
|
Брус 45х45 мм, сухой, строганный
|
| Противоконденсатная (ветро-гидроизоляционная) пленка |
Гидроветроизоляция JUTA Ютавек
|
Гидроветроизоляция JUTA Ютавек
|
Гидроветроизоляция JUTA Ютавек
|
| Стропильная система |
Доска 50х200 мм
|
Доска 50х200 мм
|
Доска 50х200 мм
|
| Утепление чердачного перекрытия и стропильной системы |
Лайт Баттс СКАНДИК /ROCKWOOL
|
Лайт Баттс СКАНДИК /ROCKWOOL
|
|
| Подшивка свесов кровли |
Софиты
|
||
| Подшивка потолков террас и лоджий |
Софиты
|
||
| Водосточная система |
Docke
|
||
| Система снегозадержания |
Трубчатая
|
Трубчатая
|
|
| Молниезащита | |||
| Фундамент | |||
| Сваи ж/бетонные | |||
| Сваи стальные винтовые | |||
| Лента ж/бетонная монолитная мелкозаглубленная | |||
| Лента ж/бетонная монолитная на глубину промерзания | |||
| Лента ж/бетонная сборная (из ФБС) на глубину промерзания | |||
| Плита ж/бетонная монолитная мелкозаглубленная |
Высота над уровнем грунта 350мм
|
Высота над уровнем грунта 350мм
|
Высота над уровнем грунта 350мм
|
| УШП (Утепленная Шведская Плита) | |||
| Бетоннная отмостка по периметру дома | |||
| Дренажная система по периметру дома | |||
| Ливневая система | |||
| Облицовка цоколя фундамента | |||
| Система контурного заземления | |||
| Стены | |||
| Несущая часть стены |
380мм Кирпич щелевой рабочий 2.1 нф
|
380мм Кирпич щелевой рабочий 2.1 нф
|
380мм Кирпич щелевой рабочий 2.1 нф
|
| Фасадная отделка |
Декоративная штукатурка (фактура короед)
|
||
| Утепление стены |
Базальтовый утеплитель ROCKWOOL Фасад Баттс
|
||
| Внутренняя обшивка/штукатурка со стороны помещения | |||
| Пол первого этажа | |||
| Несущая часть перекрытия |
Бетонный пол под стяжку
|
Бетонный пол под стяжку
|
Бетонный пол под стяжку
|
| Теплоизоляция цокольного перекрытия | |||
| Стяжка/подготовка под чистый пол |
Стяжка армированная выравнивающая под чистовое покры
|
||
| Перекрытия над первым и последующими этажами | |||
| Несущая часть перекрытия |
Плита монолитная ж/б 160мм
|
Плита монолитная ж/б 160мм
|
Плита монолитная ж/б 160мм
|
| Звукоизоляция/теплоизоляция в перекрытии | |||
| Стяжка/подготовка под чистый пол |
Стяжка армированная выравнивающая под чистовое покры
|
||
| Отделка потолка нижележащего этажа | |||
| Окна и внешние двери | |||
| Окна |
Профиль Рехау, стеклопакет с энергосберегающим стекло
|
Профиль Рехау, стеклопакет с энергосберегающим стекло
|
|
| Оконные наличники | |||
| Откосы в помещении | |||
| Отливы снаружи |
Металлические по размеру проема, цвет на выбор
|
Металлические по размеру проема, цвет на выбор
|
|
| Подоконники | |||
| Входные двери |
Металлическая дверь
|
Металлическая дверь
|
|
| Внутренние конструкции | |||
| Внутренние несущие стены |
250мм Кирпич щелевой рабочий 2.1 нф
|
250мм Кирпич щелевой рабочий 2.1 нф
|
250мм Кирпич щелевой рабочий 2.1 нф
|
| Внутренние ненесущие стены |
Кирпич щелевой 120мм
|
||
| Звукоизоляция внутренних стен/перегородок | |||
| Межэтажная строительная (черновая) лестница |
Маршевая
|
Маршевая
|
Маршевая
|
| Межэтажная постоянная (чистовая) лестница | |||
| Межкомнатные двери | |||
| Высота потолков 1 этажа |
2700мм
|
2700мм
|
2700мм
|
| Высота потолков 2 этажа |
2600мм
|
2600мм
|
2600мм
|
| Настилы полов и ограждения крылец, террас, балконов | |||
| Гидроизоляция полов балконов | |||
| Инженерное оснащение | |||
| Жидкостной теплый пол | |||
| Электрический теплый пол | |||
| Система вентиляции | |||
| Только вводы воды, электричества, выводы канализации | |||
| Электроразводка и электрощит |
Разводка электропроводки под точки
|
||
| Разводка хол. и гор. водоснабжения (ХВС и ГВС) |
Сшитый полипропилен Рехау
|
||
| Разводка батарей и/или системы теплого пола. Без оборудования котельной. |
Сшитый полипропилен Рехау
|
||
| Иное инженерное оснащение | |||
| Подготовка участка для строительства | |||
| Устройство временного щита электроснабжения | |||
| Устройство въезда на участок | |||
| Дорога на участке до пятна застройки | |||
| Подъем пятна застройки | |||
| Подготовка пятна застройки для фундаментных работ | |||
| Перемещение или вывоз грунта из котлована фундамента | |||
| Обеспечение строительного процесса | |||
| Доставка стройматериалов |
До 50 км от МКАД
|
До 50 км от МКАД
|
До 50 км от МКАД
|
| Генератор для обеспечения электричеством | |||
| Уборка и вывоз строительного мусора | |||
| Организация проживания рабочих (бытовка) | |||
| Биотуалет для рабочих | |||
| Гарантия на все выполненные работы | |||
| Гарантия | |||
| Свернуть | |||
|
Минимальная
|
6 617 445 ₽ |
|
Стандарт
|
8 635 086 ₽ |
|
Под чистовую отделку
|
10 436 676 ₽ |
| Показать подробные комплектации | |
|
Сравнить 0 комплектаций
Свернуть все
Развернуть все
|
Минимальная
6 617 445 ₽
|
Стандарт
8 635 086 ₽
|
Под чистовую отделку
10 436 676 ₽
|
| Кровля | |||
| Кровельное покрытие |
Металлочерепица «GRAND LINE»
|
Металлочерепица «GRAND LINE»
|
Металлочерепица «GRAND LINE»
|
| Обрешетка |
Доска 100х25, сухая, строганная, с обработкой огнебиозащитой
|
Доска 100х25, сухая, строганная, с обработкой огнебиозащитой
|
Доска 100х25, сухая, строганная, с обработкой огнебиозащитой
|
| Контробрешетка |
Брус 45х45 мм, сухой, строганный, с обработкой огнебиозащитой
|
Брус 45х45 мм, сухой, строганный, с обработкой огнебиозащитой
|
Брус 45х45 мм, сухой, строганный, с обработкой огнебиозащитой
|
| Противоконденсатная (ветро-гидроизоляционная) пленка |
ветро-гидроизоляционная пленка Rockwool
|
ветро-гидроизоляционная пленка Rockwool
|
ветро-гидроизоляционная пленка Rockwool
|
| Стропильная система |
Доска 200х50, сухая, строганная, с обработкой огнебиозащитой
|
Доска 200х50, сухая, строганная, с обработкой огнебиозащитой
|
Доска 200х50, сухая, строганная, с обработкой огнебиозащитой
|
| Утепление чердачного перекрытия и стропильной системы |
Утеплитель Rockwool Лайт Баттс Скандик
|
Утеплитель Rockwool Лайт Баттс Скандик
|
|
| Подшивка свесов кровли |
Софит пластиковый Grand Line
|
Софит пластиковый Grand Line
|
|
| Подшивка потолков террас и лоджий |
Софит пластиковый Grand Line
|
Софит пластиковый Grand Line
|
|
| Водосточная система |
Водосточная система пластиковая Döcke
|
||
| Система снегозадержания |
Снегозадержатели трубчатые
|
||
| Молниезащита | |||
| Фундамент | |||
| Сваи ж/бетонные | |||
| Сваи стальные винтовые | |||
| Лента ж/бетонная монолитная мелкозаглубленная | |||
| Лента ж/бетонная монолитная на глубину промерзания | |||
| Лента ж/бетонная сборная (из ФБС) на глубину промерзания | |||
| Плита ж/бетонная монолитная мелкозаглубленная |
Монолитная железобетонная плита 250мм с утеплением и гидроизоляцией
|
Монолитная железобетонная плита 250мм с утеплением и гидроизоляцией
|
Монолитная железобетонная плита 250мм с утеплением и гидроизоляцией
|
| УШП (Утепленная Шведская Плита) | |||
| Бетоннная отмостка по периметру дома |
Утепленная отмостка по периметру дома
|
||
| Дренажная система по периметру дома | |||
| Ливневая система |
Ливневая система с отводом дождевой воды
|
||
| Облицовка цоколя фундамента | |||
| Система контурного заземления | |||
| Стены | |||
| Несущая часть стены |
Газобетонные блоки D500 "Bonolit" 600х400х250мм
|
Газобетонные блоки D500 "Bonolit" 600х400х250мм
|
Газобетонные блоки D500 "Bonolit" 600х400х250мм
|
| Фасадная отделка |
Мокрый фасад,короед
|
Мокрый фасад,короед
|
|
| Утепление стены |
Rockwool 100 мм
|
||
| Внутренняя обшивка/штукатурка со стороны помещения | |||
| Пол первого этажа | |||
| Несущая часть перекрытия |
Пол первого этажа - фундаментная плита
|
Пол первого этажа - фундаментная плита
|
Пол первого этажа - фундаментная плита
|
| Теплоизоляция цокольного перекрытия | |||
| Стяжка/подготовка под чистый пол | |||
| Перекрытия над первым и последующими этажами | |||
| Несущая часть перекрытия |
Плиты перекрытия
|
Плиты перекрытия
|
Плиты перекрытия
|
| Звукоизоляция/теплоизоляция в перекрытии | |||
| Стяжка/подготовка под чистый пол | |||
| Отделка потолка нижележащего этажа | |||
| Окна и внешние двери | |||
| Окна |
Пластиковые окна REHAU 50мм, двухкамерный стеклопакет
|
Пластиковые окна REHAU 50мм, двухкамерный стеклопакет
|
|
| Оконные наличники | |||
| Откосы в помещении | |||
| Отливы снаружи |
|
|
|
| Подоконники | |||
| Входные двери |
|
|
|
| Внутренние конструкции | |||
| Внутренние несущие стены |
Газобетонные блоки D500 "Bonolit" 600х350х250мм
|
Газобетонные блоки D500 "Bonolit" 600х350х250мм
|
Газобетонные блоки D500 "Bonolit" 600х350х250мм
|
| Внутренние ненесущие стены |
Газобетонный блоки D500 "Bonolit" 100мм
|
Газобетонный блоки D500 "Bonolit" 100мм
|
|
| Звукоизоляция внутренних стен/перегородок | |||
| Межэтажная строительная (черновая) лестница |
|
|
|
| Межэтажная постоянная (чистовая) лестница | |||
| Межкомнатные двери | |||
| Высота потолков 1 этажа |
2.8 метра
|
2.8 метра
|
2.8 метра
|
| Высота потолков 2 этажа |
2.8 метра
|
2.8 метра
|
2.8 метра
|
| Настилы полов и ограждения крылец, террас, балконов | |||
| Гидроизоляция полов балконов |
Оклеечная гидроизоляция
|
Оклеечная гидроизоляция
|
|
| Инженерное оснащение | |||
| Жидкостной теплый пол | |||
| Электрический теплый пол | |||
| Система вентиляции | |||
| Только вводы воды, электричества, выводы канализации |
Ввод всех коммуникаций
|
Ввод всех коммуникаций
|
Ввод всех коммуникаций
|
| Электроразводка и электрощит | |||
| Разводка хол. и гор. водоснабжения (ХВС и ГВС) | |||
| Разводка батарей и/или системы теплого пола. Без оборудования котельной. | |||
| Иное инженерное оснащение | |||
| Подготовка участка для строительства | |||
| Устройство временного щита электроснабжения |
|
|
|
| Устройство въезда на участок | |||
| Дорога на участке до пятна застройки | |||
| Подъем пятна застройки | |||
| Подготовка пятна застройки для фундаментных работ |
|
|
|
| Перемещение или вывоз грунта из котлована фундамента |
Перемещение по участку
|
Перемещение по участку
|
Перемещение по участку
|
| Обеспечение строительного процесса | |||
| Доставка стройматериалов |
Контроль поставки и качества материалов
|
Контроль поставки и качества материалов
|
Контроль поставки и качества материалов
|
| Генератор для обеспечения электричеством | |||
| Уборка и вывоз строительного мусора |
|
|
|
| Организация проживания рабочих (бытовка) |
Доставка и вывоз строительной бытовки
|
Доставка и вывоз строительной бытовки
|
Доставка и вывоз строительной бытовки
|
| Биотуалет для рабочих |
Доставка, обслуживание и вывоз биотуалета
|
Доставка, обслуживание и вывоз биотуалета
|
Доставка, обслуживание и вывоз биотуалета
|
| Гарантия на все выполненные работы | |||
| Гарантия |
5 лет
|
5 лет
|
5 лет
|
| Свернуть | |||
|
Минимальная
|
7 666 340 ₽ |
|
Стандарт
|
8 711 750 ₽ |
|
Под чистовую отделку
|
13 241 860 ₽ |
| Показать подробные комплектации | |
|
Сравнить 0 комплектаций
Свернуть все
Развернуть все
|
Минимальная
7 666 340 ₽
|
Стандарт
8 711 750 ₽
|
Под чистовую отделку
13 241 860 ₽
|
| Кровля | |||
| Кровельное покрытие |
Металлочерепица Grand Line классик Satin 0,5 RAL 8017
|
Металлочерепица Grand Line классик Satin 0,5 RAL 8017
|
Металлочерепица Grand Line классик Satin 0,5 RAL 8017
|
| Обрешетка |
Доска 25х100 (1 сорт)
|
Доска 25х100 (1 сорт)
|
Доска 25х100 (1 сорт)
|
| Контробрешетка |
Доска 25х100 (1 сорт)
|
Доска 25х100 (1 сорт)
|
Доска 25х100 (1 сорт)
|
| Противоконденсатная (ветро-гидроизоляционная) пленка |
|
||
| Стропильная система |
Пиломатериал обрезной (1 сорт)
|
Пиломатериал обрезной (1 сорт)
|
Пиломатериал обрезной (1 сорт)
|
| Утепление чердачного перекрытия и стропильной системы |
Минераловатные плиты (Изомин, Изорок, Изолайт) 35 кг/м3
|
Минераловатные плиты (Изомин, Изорок, Изолайт) 35 кг/м3
|
|
| Подшивка свесов кровли |
|
||
| Подшивка потолков террас и лоджий |
|
||
| Водосточная система |
|
||
| Система снегозадержания |
|
||
| Молниезащита | |||
| Фундамент | |||
| Сваи ж/бетонные | |||
| Сваи стальные винтовые | |||
| Лента ж/бетонная монолитная мелкозаглубленная | |||
| Лента ж/бетонная монолитная на глубину промерзания | |||
| Лента ж/бетонная сборная (из ФБС) на глубину промерзания | |||
| Плита ж/бетонная монолитная мелкозаглубленная |
Монолитная ребристая фундаментная плита (60 см над землей)
|
Монолитная ребристая фундаментная плита (60 см над землей)
|
Монолитная ребристая фундаментная плита (60 см над землей)
|
| УШП (Утепленная Шведская Плита) | |||
| Бетоннная отмостка по периметру дома | |||
| Дренажная система по периметру дома |
|
||
| Ливневая система | |||
| Облицовка цоколя фундамента |
|
||
| Система контурного заземления | |||
| Стены | |||
| Несущая часть стены |
кирпич щелевой
|
кирпич щелевой
|
кирпич щелевой
|
| Фасадная отделка |
|
||
| Утепление стены |
|
||
| Внутренняя обшивка/штукатурка со стороны помещения | |||
| Пол первого этажа | |||
| Несущая часть перекрытия |
Монолитное перекрытие 200 мм
|
Монолитное перекрытие 200 мм
|
Монолитное перекрытие 200 мм
|
| Теплоизоляция цокольного перекрытия | |||
| Стяжка/подготовка под чистый пол | |||
| Перекрытия над первым и последующими этажами | |||
| Несущая часть перекрытия |
Монолитное перекрытие 160 мм
|
Монолитное перекрытие 160 мм
|
Монолитное перекрытие 160 мм
|
| Звукоизоляция/теплоизоляция в перекрытии | |||
| Стяжка/подготовка под чистый пол | |||
| Отделка потолка нижележащего этажа | |||
| Окна и внешние двери | |||
| Окна |
|
||
| Оконные наличники | |||
| Откосы в помещении | |||
| Отливы снаружи |
|
||
| Подоконники | |||
| Входные двери |
|
||
| Внутренние конструкции | |||
| Внутренние несущие стены |
кирпич щелевой
|
кирпич щелевой
|
кирпич щелевой
|
| Внутренние ненесущие стены |
кирпич щелевой
|
кирпич щелевой
|
|
| Звукоизоляция внутренних стен/перегородок | |||
| Межэтажная строительная (черновая) лестница | |||
| Межэтажная постоянная (чистовая) лестница |
|
||
| Межкомнатные двери | |||
| Высота потолков 1 этажа |
2,7
|
2,7
|
2,7
|
| Высота потолков 2 этажа |
2,7
|
2,7
|
2,7
|
| Настилы полов и ограждения крылец, террас, балконов | |||
| Гидроизоляция полов балконов | |||
| Инженерное оснащение | |||
| Жидкостной теплый пол | |||
| Электрический теплый пол | |||
| Система вентиляции |
|
|
|
| Только вводы воды, электричества, выводы канализации |
|
|
|
| Электроразводка и электрощит | |||
| Разводка хол. и гор. водоснабжения (ХВС и ГВС) | |||
| Разводка батарей и/или системы теплого пола. Без оборудования котельной. | |||
| Иное инженерное оснащение | |||
| Подготовка участка для строительства | |||
| Устройство временного щита электроснабжения | |||
| Устройство въезда на участок | |||
| Дорога на участке до пятна застройки | |||
| Подъем пятна застройки | |||
| Подготовка пятна застройки для фундаментных работ |
|
|
|
| Перемещение или вывоз грунта из котлована фундамента |
|
|
|
| Обеспечение строительного процесса | |||
| Доставка стройматериалов |
|
|
|
| Генератор для обеспечения электричеством | |||
| Уборка и вывоз строительного мусора |
|
||
| Организация проживания рабочих (бытовка) | |||
| Биотуалет для рабочих | |||
| Гарантия на все выполненные работы | |||
| Гарантия |
|
|
|
| Свернуть | |||
|
Минимальная
|
10 454 100 ₽ |
|
Стандарт
|
13 938 800 ₽ |
|
Под чистовую отделку
|
15 681 150 ₽ |
| Показать подробные комплектации | |
|
Сравнить 0 комплектаций
Свернуть все
Развернуть все
|
Минимальная
10 454 100 ₽
|
Стандарт
13 938 800 ₽
|
Под чистовую отделку
15 681 150 ₽
|
| Кровля | |||
| Кровельное покрытие |
Металлочерепица
|
Фальцевая кровля
Мягкая черепица
Натуральная черепи
|
Фальцевая кровля
Мягкая черепица
Натуральная черепи
|
| Обрешетка |
Доска 20х95 мм, сухая, строганная
|
Доска 20х95 мм, сухая, строганная
|
Доска 20х95 мм, сухая, строганная
|
| Контробрешетка |
Брус 45х45 мм, сухой, строганный
|
Брус 45х45 мм, сухой, строганный
|
Брус 45х45 мм, сухой, строганный
|
| Противоконденсатная (ветро-гидроизоляционная) пленка |
Изоспан
|
Изоспан
|
Изоспан
|
| Стропильная система |
Доска 50х200 мм
|
Доска 50х200 мм
|
Доска 50х200 мм
|
| Утепление чердачного перекрытия и стропильной системы |
Базальтовый утеплитель 250 мм
|
||
| Подшивка свесов кровли |
|
|
|
| Подшивка потолков террас и лоджий |
|
|
|
| Водосточная система |
|
|
|
| Система снегозадержания |
|
|
|
| Молниезащита |
|
||
| Фундамент | |||
| Сваи ж/бетонные |
|
|
|
| Сваи стальные винтовые | |||
| Лента ж/бетонная монолитная мелкозаглубленная |
|
|
|
| Лента ж/бетонная монолитная на глубину промерзания |
|
|
|
| Лента ж/бетонная сборная (из ФБС) на глубину промерзания |
|
|
|
| Плита ж/бетонная монолитная мелкозаглубленная |
|
|
|
| УШП (Утепленная Шведская Плита) | |||
| Бетоннная отмостка по периметру дома |
|
|
|
| Дренажная система по периметру дома |
|
||
| Ливневая система |
|
|
|
| Облицовка цоколя фундамента |
|
|
|
| Система контурного заземления |
|
||
| Стены | |||
| Несущая часть стены |
Газобетон
Теплая керамика
|
Газобетон
Теплая керамика
|
Газобетон
Теплая керамика
|
| Фасадная отделка |
Штукатурка
Облицовочный кирпич
|
Натуральный камень
Штукатурка
Облицовочный кирпич
|
|
| Утепление стены |
|
||
| Внутренняя обшивка/штукатурка со стороны помещения |
|
||
| Пол первого этажа | |||
| Несущая часть перекрытия |
|
|
|
| Теплоизоляция цокольного перекрытия |
|
||
| Стяжка/подготовка под чистый пол |
|
||
| Перекрытия над первым и последующими этажами | |||
| Несущая часть перекрытия |
Деревянные балки
|
Монолитные ж/б перекрытия 180-200 мм
|
Монолитные ж/б перекрытия 180-200 мм
|
| Звукоизоляция/теплоизоляция в перекрытии |
Базальтовый утеплитель 200 мм
|
Базальтовый утеплитель 200 мм
|
|
| Стяжка/подготовка под чистый пол |
|
||
| Отделка потолка нижележащего этажа |
|
||
| Окна и внешние двери | |||
| Окна |
|
||
| Оконные наличники |
|
||
| Откосы в помещении |
|
||
| Отливы снаружи |
|
|
|
| Подоконники |
|
||
| Входные двери |
|
||
| Внутренние конструкции | |||
| Внутренние несущие стены |
Газобетон
Керамический блок
|
Газобетон
Керамический блок
|
Газобетон
Керамический блок
|
| Внутренние ненесущие стены |
Газобетон
Керамический блок
|
Газобетон
Керамический блок
|
Газобетон
Керамический блок
|
| Звукоизоляция внутренних стен/перегородок | |||
| Межэтажная строительная (черновая) лестница |
Монолитная
|
Монолитная
|
Монолитная
|
| Межэтажная постоянная (чистовая) лестница |
|
||
| Межкомнатные двери | |||
| Высота потолков 1 этажа |
3 м
|
3 м
|
3 м
|
| Высота потолков 2 этажа |
3 м
|
3 м
|
3 м
|
| Настилы полов и ограждения крылец, террас, балконов | |||
| Гидроизоляция полов балконов | |||
| Инженерное оснащение | |||
| Жидкостной теплый пол | |||
| Электрический теплый пол | |||
| Система вентиляции | |||
| Только вводы воды, электричества, выводы канализации |
|
|
|
| Электроразводка и электрощит | |||
| Разводка хол. и гор. водоснабжения (ХВС и ГВС) | |||
| Разводка батарей и/или системы теплого пола. Без оборудования котельной. | |||
| Иное инженерное оснащение | |||
| Подготовка участка для строительства | |||
| Устройство временного щита электроснабжения |
|
|
|
| Устройство въезда на участок |
|
|
|
| Дорога на участке до пятна застройки | |||
| Подъем пятна застройки | |||
| Подготовка пятна застройки для фундаментных работ | |||
| Перемещение или вывоз грунта из котлована фундамента | |||
| Обеспечение строительного процесса | |||
| Доставка стройматериалов |
|
|
|
| Генератор для обеспечения электричеством |
|
|
|
| Уборка и вывоз строительного мусора |
|
|
|
| Организация проживания рабочих (бытовка) |
|
|
|
| Биотуалет для рабочих |
|
|
|
| Гарантия на все выполненные работы | |||
| Гарантия |
5 лет
|
5 лет
|
5 лет
|
| Свернуть | |||
|
Минимальная
|
9 095 067 ₽ |
|
Стандарт
|
9 722 313 ₽ |
|
Под чистовую отделку
|
12 858 543 ₽ |
| Показать подробные комплектации | |
|
Сравнить 0 комплектаций
Свернуть все
Развернуть все
|
Минимальная
9 095 067 ₽
|
Стандарт
9 722 313 ₽
|
Под чистовую отделку
12 858 543 ₽
|
| Кровля | |||
| Кровельное покрытие |
|
||
| Обрешетка |
|
||
| Контробрешетка |
|
||
| Противоконденсатная (ветро-гидроизоляционная) пленка |
|
||
| Стропильная система |
|
||
| Утепление чердачного перекрытия и стропильной системы | |||
| Подшивка свесов кровли | |||
| Подшивка потолков террас и лоджий | |||
| Водосточная система | |||
| Система снегозадержания | |||
| Молниезащита | |||
| Фундамент | |||
| Сваи ж/бетонные | |||
| Сваи стальные винтовые | |||
| Лента ж/бетонная монолитная мелкозаглубленная | |||
| Лента ж/бетонная монолитная на глубину промерзания | |||
| Лента ж/бетонная сборная (из ФБС) на глубину промерзания | |||
| Плита ж/бетонная монолитная мелкозаглубленная |
|
||
| УШП (Утепленная Шведская Плита) | |||
| Бетоннная отмостка по периметру дома | |||
| Дренажная система по периметру дома | |||
| Ливневая система | |||
| Облицовка цоколя фундамента | |||
| Система контурного заземления | |||
| Стены | |||
| Несущая часть стены |
|
||
| Фасадная отделка | |||
| Утепление стены | |||
| Внутренняя обшивка/штукатурка со стороны помещения | |||
| Пол первого этажа | |||
| Несущая часть перекрытия |
|
||
| Теплоизоляция цокольного перекрытия | |||
| Стяжка/подготовка под чистый пол | |||
| Перекрытия над первым и последующими этажами | |||
| Несущая часть перекрытия |
|
||
| Звукоизоляция/теплоизоляция в перекрытии | |||
| Стяжка/подготовка под чистый пол | |||
| Отделка потолка нижележащего этажа | |||
| Окна и внешние двери | |||
| Окна | |||
| Оконные наличники | |||
| Откосы в помещении | |||
| Отливы снаружи | |||
| Подоконники | |||
| Входные двери | |||
| Внутренние конструкции | |||
| Внутренние несущие стены |
|
||
| Внутренние ненесущие стены | |||
| Звукоизоляция внутренних стен/перегородок | |||
| Межэтажная строительная (черновая) лестница |
|
||
| Межэтажная постоянная (чистовая) лестница | |||
| Межкомнатные двери | |||
| Высота потолков 1 этажа |
2,7
|
||
| Высота потолков 2 этажа |
2,7
|
||
| Настилы полов и ограждения крылец, террас, балконов | |||
| Гидроизоляция полов балконов | |||
| Инженерное оснащение | |||
| Жидкостной теплый пол | |||
| Электрический теплый пол | |||
| Система вентиляции | |||
| Только вводы воды, электричества, выводы канализации |
|
||
| Электроразводка и электрощит | |||
| Разводка хол. и гор. водоснабжения (ХВС и ГВС) | |||
| Разводка батарей и/или системы теплого пола. Без оборудования котельной. | |||
| Иное инженерное оснащение | |||
| Подготовка участка для строительства | |||
| Устройство временного щита электроснабжения | |||
| Устройство въезда на участок | |||
| Дорога на участке до пятна застройки | |||
| Подъем пятна застройки | |||
| Подготовка пятна застройки для фундаментных работ |
|
||
| Перемещение или вывоз грунта из котлована фундамента | |||
| Обеспечение строительного процесса | |||
| Доставка стройматериалов | |||
| Генератор для обеспечения электричеством | |||
| Уборка и вывоз строительного мусора | |||
| Организация проживания рабочих (бытовка) | |||
| Биотуалет для рабочих | |||
| Гарантия на все выполненные работы | |||
| Гарантия |
|
||
| Свернуть | |||
|
Минимальная
|
8 624 632 ₽ |
|
Стандарт
|
11 447 239 ₽ |
|
Под чистовую отделку
|
15 524 338 ₽ |
| Показать подробные комплектации | |
|
Сравнить 0 комплектаций
Свернуть все
Развернуть все
|
Минимальная
8 624 632 ₽
|
Стандарт
11 447 239 ₽
|
Под чистовую отделку
15 524 338 ₽
|
| Кровля | |||
| Кровельное покрытие |
Мягкая черепица Shinglas (или на выбор металлочерепица Garda
|
Мягкая черепица Shinglas (или на выбор металлочерепица Garda
|
Мягкая черепица Shinglas (или на выбор металлочерепица Garda
|
| Обрешетка | |||
| Контробрешетка | |||
| Противоконденсатная (ветро-гидроизоляционная) пленка | |||
| Стропильная система | |||
| Утепление чердачного перекрытия и стропильной системы | |||
| Подшивка свесов кровли |
Софит металлический или планкен деревянный на выбор
|
Софит металлический или планкен деревянный на выбор
|
|
| Подшивка потолков террас и лоджий | |||
| Водосточная система |
Docke Standart
|
Docke Standart
|
|
| Система снегозадержания | |||
| Молниезащита | |||
| Фундамент | |||
| Сваи ж/бетонные |
Сваи 200х200х3000
|
Сваи 200х200х3000
|
Сваи 200х200х3000
|
| Сваи стальные винтовые | |||
| Лента ж/бетонная монолитная мелкозаглубленная | |||
| Лента ж/бетонная монолитная на глубину промерзания |
|
|
|
| Лента ж/бетонная сборная (из ФБС) на глубину промерзания |
|
||
| Плита ж/бетонная монолитная мелкозаглубленная |
Плита 300 мм, бетон B25 (М350)
|
Плита 300 мм, бетон B25 (М350)
|
Плита 300 мм, бетон B25 (М350) 300 мм
|
| УШП (Утепленная Шведская Плита) |
|
||
| Бетоннная отмостка по периметру дома | |||
| Дренажная система по периметру дома | |||
| Ливневая система | |||
| Облицовка цоколя фундамента |
Камень Whitehills
|
Камень Whitehills
|
|
| Система контурного заземления | |||
| Стены | |||
| Несущая часть стены |
Газобетонные блоки Bonolit 400 мм
|
Газобетонные блоки Bonolit 400 мм
|
Газобетонные блоки Bonolit 400 мм
|
| Фасадная отделка |
Декоративная штукатурка Ceresit (силикатно-силиконовая)
|
Облицовочный кирпич
|
|
| Утепление стены | |||
| Внутренняя обшивка/штукатурка со стороны помещения | |||
| Пол первого этажа | |||
| Несущая часть перекрытия |
Пол первого этажа - фундаментная плита
|
Пол первого этажа - фундаментная плита
|
Пол первого этажа - фундаментная плита
|
| Теплоизоляция цокольного перекрытия | |||
| Стяжка/подготовка под чистый пол | |||
| Перекрытия над первым и последующими этажами | |||
| Несущая часть перекрытия |
Железобетонные перекрытия 180-230 мм (проектные решения)
|
Железобетонные перекрытия 180-230 мм (проектные решения)
|
Железобетонные перекрытия 180-230 мм (проектные решения)
|
| Звукоизоляция/теплоизоляция в перекрытии | |||
| Стяжка/подготовка под чистый пол | |||
| Отделка потолка нижележащего этажа | |||
| Окна и внешние двери | |||
| Окна |
Окна Rehau Delight 70
|
Окна Rehau Delight 70
|
|
| Оконные наличники | |||
| Откосы в помещении | |||
| Отливы снаружи |
Металлические
|
Металлические
|
|
| Подоконники | |||
| Входные двери | |||
| Внутренние конструкции | |||
| Внутренние несущие стены |
Газобетонные блоки Bonolit 400 мм
|
Газобетонные блоки Bonolit 400 мм
|
Газобетонные блоки Bonolit 400 мм
|
| Внутренние ненесущие стены |
Перегородки - газобетонные блоки Bonolit 100 мм
|
Перегородки - газобетонные блоки Bonolit 100 мм
|
Перегородки - газобетонные блоки Bonolit 100 мм
|
| Звукоизоляция внутренних стен/перегородок | |||
| Межэтажная строительная (черновая) лестница | |||
| Межэтажная постоянная (чистовая) лестница | |||
| Межкомнатные двери | |||
| Высота потолков 1 этажа |
3 м
|
3 м
|
3 м
|
| Высота потолков 2 этажа |
3 м
|
3 м
|
3 м
|
| Настилы полов и ограждения крылец, террас, балконов | |||
| Гидроизоляция полов балконов | |||
| Инженерное оснащение | |||
| Жидкостной теплый пол | |||
| Электрический теплый пол | |||
| Система вентиляции | |||
| Только вводы воды, электричества, выводы канализации |
Закладные детали для вводов воды, электричества, вывод
|
Закладные детали для вводов воды, электричества, вывод
|
Закладные детали для вводов воды, электричества, вывод
|
| Электроразводка и электрощит | |||
| Разводка хол. и гор. водоснабжения (ХВС и ГВС) | |||
| Разводка батарей и/или системы теплого пола. Без оборудования котельной. | |||
| Иное инженерное оснащение | |||
| Подготовка участка для строительства | |||
| Устройство временного щита электроснабжения |
|
|
|
| Устройство въезда на участок | |||
| Дорога на участке до пятна застройки | |||
| Подъем пятна застройки | |||
| Подготовка пятна застройки для фундаментных работ | |||
| Перемещение или вывоз грунта из котлована фундамента | |||
| Обеспечение строительного процесса | |||
| Доставка стройматериалов |
|
|
|
| Генератор для обеспечения электричеством | |||
| Уборка и вывоз строительного мусора | |||
| Организация проживания рабочих (бытовка) |
|
|
|
| Биотуалет для рабочих |
Биотуалет для рабочих с еженедельным обслуживанием
|
Биотуалет для рабочих с еженедельным обслуживанием
|
Биотуалет для рабочих с еженедельным обслуживанием
|
| Гарантия на все выполненные работы | |||
| Гарантия | |||
| Свернуть | |||
|
Минимальная
|
12 196 450 ₽ |
|
Стандарт
|
14 984 210 ₽ |
|
Под чистовую отделку
|
19 514 320 ₽ |
| Показать подробные комплектации | |
|
Сравнить 0 комплектаций
Свернуть все
Развернуть все
|
Минимальная
12 196 450 ₽
|
Стандарт
14 984 210 ₽
|
Под чистовую отделку
19 514 320 ₽
|
| Кровля | |||
| Кровельное покрытие |
|
|
|
| Обрешетка |
|
|
|
| Контробрешетка |
|
|
|
| Противоконденсатная (ветро-гидроизоляционная) пленка |
|
|
|
| Стропильная система |
|
|
|
| Утепление чердачного перекрытия и стропильной системы |
|
|
|
| Подшивка свесов кровли |
|
|
|
| Подшивка потолков террас и лоджий |
|
|
|
| Водосточная система |
|
|
|
| Система снегозадержания |
|
|
|
| Молниезащита | |||
| Фундамент | |||
| Сваи ж/бетонные | |||
| Сваи стальные винтовые | |||
| Лента ж/бетонная монолитная мелкозаглубленная | |||
| Лента ж/бетонная монолитная на глубину промерзания | |||
| Лента ж/бетонная сборная (из ФБС) на глубину промерзания | |||
| Плита ж/бетонная монолитная мелкозаглубленная |
|
|
|
| УШП (Утепленная Шведская Плита) | |||
| Бетоннная отмостка по периметру дома |
|
||
| Дренажная система по периметру дома | |||
| Ливневая система | |||
| Облицовка цоколя фундамента |
|
||
| Система контурного заземления |
|
||
| Стены | |||
| Несущая часть стены |
|
|
|
| Фасадная отделка |
|
|
|
| Утепление стены | |||
| Внутренняя обшивка/штукатурка со стороны помещения |
|
||
| Пол первого этажа | |||
| Несущая часть перекрытия |
|
|
|
| Теплоизоляция цокольного перекрытия |
|
||
| Стяжка/подготовка под чистый пол |
|
||
| Перекрытия над первым и последующими этажами | |||
| Несущая часть перекрытия |
|
|
|
| Звукоизоляция/теплоизоляция в перекрытии |
|
||
| Стяжка/подготовка под чистый пол |
|
||
| Отделка потолка нижележащего этажа | |||
| Окна и внешние двери | |||
| Окна |
|
|
|
| Оконные наличники |
|
||
| Откосы в помещении |
|
||
| Отливы снаружи |
|
|
|
| Подоконники |
|
||
| Входные двери |
|
|
|
| Внутренние конструкции | |||
| Внутренние несущие стены |
|
|
|
| Внутренние ненесущие стены |
|
|
|
| Звукоизоляция внутренних стен/перегородок | |||
| Межэтажная строительная (черновая) лестница |
|
|
|
| Межэтажная постоянная (чистовая) лестница |
|
||
| Межкомнатные двери |
|
||
| Высота потолков 1 этажа |
3 м
|
3 м
|
3м
|
| Высота потолков 2 этажа | |||
| Настилы полов и ограждения крылец, террас, балконов |
|
||
| Гидроизоляция полов балконов |
|
||
| Инженерное оснащение | |||
| Жидкостной теплый пол |
|
||
| Электрический теплый пол | |||
| Система вентиляции |
|
|
|
| Только вводы воды, электричества, выводы канализации |
|
|
|
| Электроразводка и электрощит |
|
||
| Разводка хол. и гор. водоснабжения (ХВС и ГВС) |
|
||
| Разводка батарей и/или системы теплого пола. Без оборудования котельной. |
|
||
| Иное инженерное оснащение |
|
||
| Подготовка участка для строительства | |||
| Устройство временного щита электроснабжения |
|
|
|
| Устройство въезда на участок | |||
| Дорога на участке до пятна застройки | |||
| Подъем пятна застройки | |||
| Подготовка пятна застройки для фундаментных работ | |||
| Перемещение или вывоз грунта из котлована фундамента | |||
| Обеспечение строительного процесса | |||
| Доставка стройматериалов |
|
|
|
| Генератор для обеспечения электричеством | |||
| Уборка и вывоз строительного мусора |
|
|
|
| Организация проживания рабочих (бытовка) |
|
|
|
| Биотуалет для рабочих |
|
|
|
| Гарантия на все выполненные работы | |||
| Гарантия | |||
| Свернуть | |||
|
Минимальная
|
8 014 810 ₽ |
|
Стандарт
|
9 757 160 ₽ |
| Показать подробные комплектации | |
|
Сравнить 0 комплектаций
Свернуть все
Развернуть все
|
Минимальная
8 014 810 ₽
|
Стандарт
9 757 160 ₽
|
|
| Кровля | |||
| Кровельное покрытие |
Металлочерепица «GRAND LINE»
|
Металлочерепица «GRAND LINE»
|
|
| Обрешетка |
Доска 100х25, сухая, строганная, с обработкой огнебиозащитой
|
Доска 100х25, сухая, строганная, с обработкой огнебиозащитой
|
|
| Контробрешетка |
Брус 50х50 мм, сухой, строганный, с обработкой огнебиозащитой
|
Брус 50х50 мм, сухой, строганный, с обработкой огнебиозащитой
|
|
| Противоконденсатная (ветро-гидроизоляционная) пленка |
Гидро-ветроизоляционная мембрана
|
Гидро-ветроизоляционная мембрана
|
|
| Стропильная система |
Доска 200х50, сухая, строганная, с обработкой огнебиозащитой
|
Доска 200х50, сухая, строганная, с обработкой огнебиозащитой
|
|
| Утепление чердачного перекрытия и стропильной системы |
Утеплитель Rockwool
|
||
| Подшивка свесов кровли |
Софит пластиковый «GRAND LINE»
|
||
| Подшивка потолков террас и лоджий | |||
| Водосточная система | |||
| Система снегозадержания | |||
| Молниезащита | |||
| Фундамент | |||
| Сваи ж/бетонные | |||
| Сваи стальные винтовые | |||
| Лента ж/бетонная монолитная мелкозаглубленная | |||
| Лента ж/бетонная монолитная на глубину промерзания | |||
| Лента ж/бетонная сборная (из ФБС) на глубину промерзания | |||
| Плита ж/бетонная монолитная мелкозаглубленная |
Монолитная железобетонная плита с утеплением и гидроизоляцией
|
Монолитная железобетонная плита с утеплением и гидроизоляцией
|
|
| УШП (Утепленная Шведская Плита) | |||
| Бетоннная отмостка по периметру дома | |||
| Дренажная система по периметру дома | |||
| Ливневая система | |||
| Облицовка цоколя фундамента | |||
| Система контурного заземления | |||
| Стены | |||
| Несущая часть стены |
Газобетонные блоки D500 "YTONG" 600х375х250мм
|
Газобетонные блоки D500 "YTONG" 600х375х250мм
|
|
| Фасадная отделка |
Мокрый фасад, декоративная штукатурка
|
||
| Утепление стены |
Утеплитель Rockwool
|
||
| Внутренняя обшивка/штукатурка со стороны помещения | |||
| Пол первого этажа | |||
| Несущая часть перекрытия |
Пол первого этажа - фундаментная плита
|
Пол первого этажа - фундаментная плита
|
|
| Теплоизоляция цокольного перекрытия | |||
| Стяжка/подготовка под чистый пол | |||
| Перекрытия над первым и последующими этажами | |||
| Несущая часть перекрытия |
Монолитные ж/б перекрытия 200 мм
|
Монолитные ж/б перекрытия 200 мм
|
|
| Звукоизоляция/теплоизоляция в перекрытии | |||
| Стяжка/подготовка под чистый пол | |||
| Отделка потолка нижележащего этажа | |||
| Окна и внешние двери | |||
| Окна |
Профиль Rehau, стеклопакет с энергосберегающим стеклопакетом
|
||
| Оконные наличники | |||
| Откосы в помещении | |||
| Отливы снаружи |
|
||
| Подоконники | |||
| Входные двери |
|
||
| Внутренние конструкции | |||
| Внутренние несущие стены |
Газобетонные блоки D500 "YTONG" 600х250х300мм
|
Газобетонные блоки D500 "YTONG" 600х250х300мм
|
|
| Внутренние ненесущие стены |
Газобетонные блоки D500 "YTONG" 600х100х300мм
|
||
| Звукоизоляция внутренних стен/перегородок | |||
| Межэтажная строительная (черновая) лестница |
|
|
|
| Межэтажная постоянная (чистовая) лестница | |||
| Межкомнатные двери | |||
| Высота потолков 1 этажа |
3000мм
|
3000мм
|
|
| Высота потолков 2 этажа |
3000мм
|
3000мм
|
|
| Настилы полов и ограждения крылец, террас, балконов | |||
| Гидроизоляция полов балконов |
|
||
| Инженерное оснащение | |||
| Жидкостной теплый пол | |||
| Электрический теплый пол | |||
| Система вентиляции | |||
| Только вводы воды, электричества, выводы канализации |
|
|
|
| Электроразводка и электрощит | |||
| Разводка хол. и гор. водоснабжения (ХВС и ГВС) | |||
| Разводка батарей и/или системы теплого пола. Без оборудования котельной. | |||
| Иное инженерное оснащение | |||
| Подготовка участка для строительства | |||
| Устройство временного щита электроснабжения |
|
|
|
| Устройство въезда на участок |
|
||
| Дорога на участке до пятна застройки | |||
| Подъем пятна застройки | |||
| Подготовка пятна застройки для фундаментных работ |
|
|
|
| Перемещение или вывоз грунта из котлована фундамента |
|
||
| Обеспечение строительного процесса | |||
| Доставка стройматериалов |
|
|
|
| Генератор для обеспечения электричеством |
|
||
| Уборка и вывоз строительного мусора |
|
|
|
| Организация проживания рабочих (бытовка) |
|
|
|
| Биотуалет для рабочих |
|
|
|
| Гарантия на все выполненные работы | |||
| Гарантия |
2 года
|
2 года
|
|
| Свернуть | |||
|
Минимальная
|
10 349 559 ₽ |
|
Под чистовую отделку
|
14 740 281 ₽ |
| Показать подробные комплектации | |
|
Сравнить 0 комплектаций
Свернуть все
Развернуть все
|
Минимальная
10 349 559 ₽
|
Под чистовую отделку
14 740 281 ₽
|
|
| Кровля | |||
| Кровельное покрытие |
Металлочерепица
|
|
|
| Обрешетка |
25х150 мм
|
25х150 мм
|
|
| Контробрешетка |
25х50 мм
|
25х50 мм
|
|
| Противоконденсатная (ветро-гидроизоляционная) пленка |
|
|
|
| Стропильная система |
|
|
|
| Утепление чердачного перекрытия и стропильной системы |
200 мм
|
200 мм
|
|
| Подшивка свесов кровли |
|
|
|
| Подшивка потолков террас и лоджий |
|
|
|
| Водосточная система |
|
|
|
| Система снегозадержания | |||
| Молниезащита | |||
| Фундамент | |||
| Сваи ж/бетонные |
Диаметром 300 мм,
Уширение 600 мм в сонов
|
Диаметром 300 мм,
Уширение 600 мм в сонов
|
|
| Сваи стальные винтовые | |||
| Лента ж/бетонная монолитная мелкозаглубленная |
|
|
|
| Лента ж/бетонная монолитная на глубину промерзания | |||
| Лента ж/бетонная сборная (из ФБС) на глубину промерзания | |||
| Плита ж/бетонная монолитная мелкозаглубленная | |||
| УШП (Утепленная Шведская Плита) | |||
| Бетоннная отмостка по периметру дома | |||
| Дренажная система по периметру дома | |||
| Ливневая система | |||
| Облицовка цоколя фундамента | |||
| Система контурного заземления | |||
| Стены | |||
| Несущая часть стены | |||
| Фасадная отделка | |||
| Утепление стены | |||
| Внутренняя обшивка/штукатурка со стороны помещения | |||
| Пол первого этажа | |||
| Несущая часть перекрытия | |||
| Теплоизоляция цокольного перекрытия | |||
| Стяжка/подготовка под чистый пол | |||
| Перекрытия над первым и последующими этажами | |||
| Несущая часть перекрытия | |||
| Звукоизоляция/теплоизоляция в перекрытии | |||
| Стяжка/подготовка под чистый пол | |||
| Отделка потолка нижележащего этажа | |||
| Окна и внешние двери | |||
| Окна |
|
||
| Оконные наличники | |||
| Откосы в помещении | |||
| Отливы снаружи |
|
||
| Подоконники | |||
| Входные двери | |||
| Внутренние конструкции | |||
| Внутренние несущие стены | |||
| Внутренние ненесущие стены | |||
| Звукоизоляция внутренних стен/перегородок | |||
| Межэтажная строительная (черновая) лестница | |||
| Межэтажная постоянная (чистовая) лестница | |||
| Межкомнатные двери | |||
| Высота потолков 1 этажа | |||
| Высота потолков 2 этажа | |||
| Настилы полов и ограждения крылец, террас, балконов | |||
| Гидроизоляция полов балконов | |||
| Инженерное оснащение | |||
| Жидкостной теплый пол | |||
| Электрический теплый пол | |||
| Система вентиляции | |||
| Только вводы воды, электричества, выводы канализации | |||
| Электроразводка и электрощит | |||
| Разводка хол. и гор. водоснабжения (ХВС и ГВС) | |||
| Разводка батарей и/или системы теплого пола. Без оборудования котельной. | |||
| Иное инженерное оснащение | |||
| Подготовка участка для строительства | |||
| Устройство временного щита электроснабжения | |||
| Устройство въезда на участок | |||
| Дорога на участке до пятна застройки | |||
| Подъем пятна застройки | |||
| Подготовка пятна застройки для фундаментных работ | |||
| Перемещение или вывоз грунта из котлована фундамента | |||
| Обеспечение строительного процесса | |||
| Доставка стройматериалов | |||
| Генератор для обеспечения электричеством | |||
| Уборка и вывоз строительного мусора | |||
| Организация проживания рабочих (бытовка) | |||
| Биотуалет для рабочих | |||
| Гарантия на все выполненные работы | |||
| Гарантия | |||
| Свернуть | |||
|
Под чистовую отделку
|
13 938 800 ₽ |
| Показать подробные комплектации | |
|
Сравнить 0 комплектаций
Свернуть все
Развернуть все
|
Под чистовую отделку
13 938 800 ₽
|
||
| Кровля | |||
| Кровельное покрытие |
Металлочерепица Grand Line толщиной 0,5 мм
|
||
| Обрешетка |
25*100 мм камерной сушки
|
||
| Контробрешетка |
40*40 мм камерной сушки
|
||
| Противоконденсатная (ветро-гидроизоляционная) пленка |
ветро-гидроизоляционная мембрана
|
||
| Стропильная система |
Доска 40*200 мм камерной сушки
|
||
| Утепление чердачного перекрытия и стропильной системы |
200 мм в 4 слоя перекрестным способом
|
||
| Подшивка свесов кровли |
|
||
| Подшивка потолков террас и лоджий |
|
||
| Водосточная система | |||
| Система снегозадержания | |||
| Молниезащита | |||
| Фундамент | |||
| Сваи ж/бетонные | |||
| Сваи стальные винтовые | |||
| Лента ж/бетонная монолитная мелкозаглубленная | |||
| Лента ж/бетонная монолитная на глубину промерзания | |||
| Лента ж/бетонная сборная (из ФБС) на глубину промерзания | |||
| Плита ж/бетонная монолитная мелкозаглубленная |
|
||
| УШП (Утепленная Шведская Плита) | |||
| Бетоннная отмостка по периметру дома | |||
| Дренажная система по периметру дома | |||
| Ливневая система | |||
| Облицовка цоколя фундамента | |||
| Система контурного заземления | |||
| Стены | |||
| Несущая часть стены |
Кирпич
|
||
| Фасадная отделка | |||
| Утепление стены | |||
| Внутренняя обшивка/штукатурка со стороны помещения | |||
| Пол первого этажа | |||
| Несущая часть перекрытия |
Сборное перекрытие из жб плит 220 мм
|
||
| Теплоизоляция цокольного перекрытия | |||
| Стяжка/подготовка под чистый пол | |||
| Перекрытия над первым и последующими этажами | |||
| Несущая часть перекрытия |
Сборное перекрытие из жб плит 220 мм
|
||
| Звукоизоляция/теплоизоляция в перекрытии |
|
||
| Стяжка/подготовка под чистый пол |
|
||
| Отделка потолка нижележащего этажа | |||
| Окна и внешние двери | |||
| Окна |
Пластиковые окна Rehau GRAZIO 70 мм
|
||
| Оконные наличники | |||
| Откосы в помещении | |||
| Отливы снаружи | |||
| Подоконники | |||
| Входные двери |
Металлическая дверь 2060х960 мм с фурнитурой
|
||
| Внутренние конструкции | |||
| Внутренние несущие стены | |||
| Внутренние ненесущие стены | |||
| Звукоизоляция внутренних стен/перегородок | |||
| Межэтажная строительная (черновая) лестница |
Техническая (один марш)
|
||
| Межэтажная постоянная (чистовая) лестница | |||
| Межкомнатные двери | |||
| Высота потолков 1 этажа |
3000 мм
|
||
| Высота потолков 2 этажа |
3000 мм
|
||
| Настилы полов и ограждения крылец, террас, балконов | |||
| Гидроизоляция полов балконов | |||
| Инженерное оснащение | |||
| Жидкостной теплый пол | |||
| Электрический теплый пол | |||
| Система вентиляции | |||
| Только вводы воды, электричества, выводы канализации | |||
| Электроразводка и электрощит | |||
| Разводка хол. и гор. водоснабжения (ХВС и ГВС) | |||
| Разводка батарей и/или системы теплого пола. Без оборудования котельной. | |||
| Иное инженерное оснащение | |||
| Подготовка участка для строительства | |||
| Устройство временного щита электроснабжения | |||
| Устройство въезда на участок | |||
| Дорога на участке до пятна застройки | |||
| Подъем пятна застройки | |||
| Подготовка пятна застройки для фундаментных работ |
Включено в стоимость
|
||
| Перемещение или вывоз грунта из котлована фундамента | |||
| Обеспечение строительного процесса | |||
| Доставка стройматериалов |
Включено в стоимость
|
||
| Генератор для обеспечения электричеством | |||
| Уборка и вывоз строительного мусора | |||
| Организация проживания рабочих (бытовка) |
Включено в стоимость
|
||
| Биотуалет для рабочих |
Включено в стоимость
|
||
| Гарантия на все выполненные работы | |||
| Гарантия |
5 лет + ТО дома в течение года БЕСПЛАТНО
|
||
| Свернуть | |||
|
Стандарт
|
7 666 340 ₽ |
| Показать подробные комплектации | |
|
Сравнить 0 комплектаций
Свернуть все
Развернуть все
|
Стандарт
7 666 340 ₽
|
||
| Кровля | |||
| Кровельное покрытие |
Укладка готового кровельного покрытия Заказчика
|
||
| Обрешетка |
|
||
| Контробрешетка |
|
||
| Противоконденсатная (ветро-гидроизоляционная) пленка |
|
||
| Стропильная система |
|
||
| Утепление чердачного перекрытия и стропильной системы |
|
||
| Подшивка свесов кровли |
|
||
| Подшивка потолков террас и лоджий | |||
| Водосточная система |
|
||
| Система снегозадержания |
|
||
| Молниезащита |
|
||
| Фундамент | |||
| Сваи ж/бетонные | |||
| Сваи стальные винтовые | |||
| Лента ж/бетонная монолитная мелкозаглубленная | |||
| Лента ж/бетонная монолитная на глубину промерзания |
Земляные работы
Закладные под коммуникации
Ленточный фундамент с гид
|
||
| Лента ж/бетонная сборная (из ФБС) на глубину промерзания | |||
| Плита ж/бетонная монолитная мелкозаглубленная | |||
| УШП (Утепленная Шведская Плита) | |||
| Бетоннная отмостка по периметру дома | |||
| Дренажная система по периметру дома | |||
| Ливневая система | |||
| Облицовка цоколя фундамента | |||
| Система контурного заземления | |||
| Стены | |||
| Несущая часть стены |
Двойной щелевой кирпич, М-150, ГОСТ
|
||
| Фасадная отделка | |||
| Утепление стены | |||
| Внутренняя обшивка/штукатурка со стороны помещения | |||
| Пол первого этажа | |||
| Несущая часть перекрытия |
|
||
| Теплоизоляция цокольного перекрытия |
|
||
| Стяжка/подготовка под чистый пол | |||
| Перекрытия над первым и последующими этажами | |||
| Несущая часть перекрытия |
|
||
| Звукоизоляция/теплоизоляция в перекрытии | |||
| Стяжка/подготовка под чистый пол | |||
| Отделка потолка нижележащего этажа | |||
| Окна и внешние двери | |||
| Окна | |||
| Оконные наличники | |||
| Откосы в помещении | |||
| Отливы снаружи | |||
| Подоконники | |||
| Входные двери | |||
| Внутренние конструкции | |||
| Внутренние несущие стены |
|
||
| Внутренние ненесущие стены |
|
||
| Звукоизоляция внутренних стен/перегородок | |||
| Межэтажная строительная (черновая) лестница |
|
||
| Межэтажная постоянная (чистовая) лестница | |||
| Межкомнатные двери | |||
| Высота потолков 1 этажа | |||
| Высота потолков 2 этажа | |||
| Настилы полов и ограждения крылец, террас, балконов | |||
| Гидроизоляция полов балконов | |||
| Инженерное оснащение | |||
| Жидкостной теплый пол | |||
| Электрический теплый пол | |||
| Система вентиляции | |||
| Только вводы воды, электричества, выводы канализации |
|
||
| Электроразводка и электрощит | |||
| Разводка хол. и гор. водоснабжения (ХВС и ГВС) | |||
| Разводка батарей и/или системы теплого пола. Без оборудования котельной. | |||
| Иное инженерное оснащение | |||
| Подготовка участка для строительства | |||
| Устройство временного щита электроснабжения | |||
| Устройство въезда на участок | |||
| Дорога на участке до пятна застройки | |||
| Подъем пятна застройки | |||
| Подготовка пятна застройки для фундаментных работ | |||
| Перемещение или вывоз грунта из котлована фундамента | |||
| Обеспечение строительного процесса | |||
| Доставка стройматериалов |
|
||
| Генератор для обеспечения электричеством | |||
| Уборка и вывоз строительного мусора | |||
| Организация проживания рабочих (бытовка) | |||
| Биотуалет для рабочих | |||
| Гарантия на все выполненные работы | |||
| Гарантия | |||
| Свернуть | |||
|
Стандарт
|
8 014 810 ₽ |
| Показать подробные комплектации | |
|
Сравнить 0 комплектаций
Свернуть все
Развернуть все
|
Стандарт
8 014 810 ₽
|
||
| Кровля | |||
| Кровельное покрытие |
Металлочерепица М35 Супермонтеррей
0,5 мм
|
||
| Обрешетка |
Доска естественной влажности, хвойных пород, 25*100 мм
|
||
| Контробрешетка |
Рейка естественной влажности, хвойных пород, 25*25 мм
|
||
| Противоконденсатная (ветро-гидроизоляционная) пленка |
Противоконденсатная пленка Tyvek Soft
|
||
| Стропильная система |
Доска естественной влажности, хвойных пород, 50*200 мм
|
||
| Утепление чердачного перекрытия и стропильной системы |
Базальтовый утеплитель Роквулл Лайт Баттс, 200 мм
|
||
| Подшивка свесов кровли | |||
| Подшивка потолков террас и лоджий | |||
| Водосточная система | |||
| Система снегозадержания | |||
| Молниезащита | |||
| Фундамент | |||
| Сваи ж/бетонные | |||
| Сваи стальные винтовые | |||
| Лента ж/бетонная монолитная мелкозаглубленная | |||
| Лента ж/бетонная монолитная на глубину промерзания | |||
| Лента ж/бетонная сборная (из ФБС) на глубину промерзания | |||
| Плита ж/бетонная монолитная мелкозаглубленная |
Железобетонная монолитная плита
300 мм, марка бетона М350, В25
|
||
| УШП (Утепленная Шведская Плита) | |||
| Бетоннная отмостка по периметру дома | |||
| Дренажная система по периметру дома | |||
| Ливневая система | |||
| Облицовка цоколя фундамента | |||
| Система контурного заземления | |||
| Стены | |||
| Несущая часть стены |
ЛСР Камень 10,7 NF рядовой поризованный, крупноформатный блок, 380 мм
|
||
| Фасадная отделка | |||
| Утепление стены | |||
| Внутренняя обшивка/штукатурка со стороны помещения | |||
| Пол первого этажа | |||
| Несущая часть перекрытия | |||
| Теплоизоляция цокольного перекрытия | |||
| Стяжка/подготовка под чистый пол | |||
| Перекрытия над первым и последующими этажами | |||
| Несущая часть перекрытия |
Железобетонное монолитное перекрытие,
толщина 200 мм, бетон В25
|
||
| Звукоизоляция/теплоизоляция в перекрытии | |||
| Стяжка/подготовка под чистый пол | |||
| Отделка потолка нижележащего этажа | |||
| Окна и внешние двери | |||
| Окна | |||
| Оконные наличники | |||
| Откосы в помещении | |||
| Отливы снаружи | |||
| Подоконники | |||
| Входные двери | |||
| Внутренние конструкции | |||
| Внутренние несущие стены |
ЛСР Камень 10,7 NF рядовой поризованный, крупноформатный блок, 380 мм
|
||
| Внутренние ненесущие стены |
Газобетон "АЭРОК", D500, ширина 250/200/100 мм
|
||
| Звукоизоляция внутренних стен/перегородок | |||
| Межэтажная строительная (черновая) лестница |
Доска естественной влажности, хвоя, 50*200
|
||
| Межэтажная постоянная (чистовая) лестница | |||
| Межкомнатные двери | |||
| Высота потолков 1 этажа |
В соответствии с проектом 3,0 м
|
||
| Высота потолков 2 этажа |
В соответствии с проектом
|
||
| Настилы полов и ограждения крылец, террас, балконов | |||
| Гидроизоляция полов балконов | |||
| Инженерное оснащение | |||
| Жидкостной теплый пол | |||
| Электрический теплый пол | |||
| Система вентиляции | |||
| Только вводы воды, электричества, выводы канализации | |||
| Электроразводка и электрощит | |||
| Разводка хол. и гор. водоснабжения (ХВС и ГВС) | |||
| Разводка батарей и/или системы теплого пола. Без оборудования котельной. | |||
| Иное инженерное оснащение | |||
| Подготовка участка для строительства | |||
| Устройство временного щита электроснабжения |
Да
|
||
| Устройство въезда на участок |
При необходимости
|
||
| Дорога на участке до пятна застройки | |||
| Подъем пятна застройки | |||
| Подготовка пятна застройки для фундаментных работ | |||
| Перемещение или вывоз грунта из котлована фундамента |
Перемещение грунта из котлована в место согласованное на участке
|
||
| Обеспечение строительного процесса | |||
| Доставка стройматериалов |
Доставка всех материалов по данному этапу
|
||
| Генератор для обеспечения электричеством |
Да
|
||
| Уборка и вывоз строительного мусора |
Да
|
||
| Организация проживания рабочих (бытовка) |
Бытовка
|
||
| Биотуалет для рабочих |
При необходимости
|
||
| Гарантия на все выполненные работы | |||
| Гарантия |
Гарантия на все выполненные работы 5 лет
|
||
| Свернуть | |||