Главная Проекты домов Проект одноэтажного просторного дома в стиле хай-тек с эксплуатируемой кровлей и просторной террасой

D5556 Проект одноэтажного просторного дома в стиле хай-тек с эксплуатируемой кровлей и просторной террасой

Сравнить проект В избранное
Технические характеристики
Общие
Материал стен
Кирпич
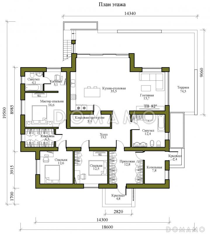
Общая площадь
252 м²
Жилая площадь
94 м²
Площадь застройки
278 м²
Приведенная площадь
190.91 м²
Количество жилых комнат/спален
4
Этажи
1 этаж
Гараж
Нет гаража
Количество машин
нет
Подвал / цокольный этаж
Без подвала
Длина дома
19.5 м
Ширина дома
18.6 м
Высота в коньке
4.9 м
Кровля
Рулонная кровля
Облицовка внешних стен
Мокрая штукатурка
Толщина несущих наружных стен
380 мм
Межэтажные перекрытия
Монолитные
Внутренние не несущие перегородки
Кирпичные
Фундамент
Малозаглубленные ростверки
Терраса
Терраса открытая
Дополнительные
Окна
Окна до пола
Сауна/баня внутри
Нет
Площадь гостиной
15.7 м²
Площадь кухни
35.5 м²
Количество санузлов
2
Окно в ванной комнате
Есть
Котельная
Есть
Кабинет
Есть
Хозяйский санузел
Есть
Хозяйская гардеробная
Есть
Кладовая
2
Планы помещений
Фасады
Описание проекта
Компания Domamo предлагает проект одноэтажного просторного дома в стиле хай-тек с эксплуатируемой кровлей и просторной террасой D5556. Общая площадь - 252 м2, размер - 19.5х18.6 м. Фундамент - малозаглубленные ростверки, кровля - рулонная кровля, внешняя отделка - мокрая штукатурка. Для заказа проекта или внесения изменений свяжитесь с нами с помощью форм обратной связи на сайте или по телефону +7 (800) 200-28-83.
Категории проекта: для постоянного проживания кирпич в стиле хай-тек современные дачные дома гостевые от 200 до 300 кв.м кирпичные дома хай-тек в европейском стиле кирпичные европейские дома с террасой из кирпича с террасой готовые в стиле минимализм гостевые из кирпича дачные из кирпича загородные из кирпича одноэтажные из кирпича одноэтажные кирпичные с котельной одноэтажные кирпичные с котельной одноэтажные с котельной с котельной дачные с верандой с плоской крышей загородные с гардеробной одноэтажные в стиле хай-тек в стиле хай-тек с плоской крышей современные кирпичные Проекты одноэтажных домов с террасой дачные одноэтажные Типовые проекты загородных одноэтажных домов без гаража одноэтажные без гаража дачные с террасой с кабинетом одноэтажные с 4 спальнями одноэтажные с плоской крышей с 4 спальнями современный с плоской крышей сложной формы одноэтажные современные одноэтажные в стиле минимализм одноэтажные с окнами в пол одноэтажные гостевые одноэтажные с кабинетом одноэтажные с 2 санузлами одноэтажные из кирпича с террасой одноэтажные из кирпича с плоской крышей одноэтажные из кирпича с 4 спальнями готовые для постоянного проживания гостевые дачные без гаража без подвала в стиле минимализм современные сложной формы современные без гаража современные с окнами в пол современные с террасой европейские с плоской крышей хай-тек для постоянного проживания гостевые в стиле хай-тек дачные в стиле хай-тек хай-тек без гаража хай-тек с окнами в пол хай-тек с террасой хай-тек нестандартные хай-тек готовые хай-тек с котельной хай-тек с кабинетом хай-тек с мастер-спальней хай-тек с 4 спальнями хай-тек без бани хай-тек без подвала хай-тек от 200 до 300 м2 в стиле минимализм для постоянного проживания в стиле минимализм гостевые в стиле минимализм дачные в стиле минимализм без гаража в стиле минимализм нестандартные в стиле минимализм с плоской крышей в стиле минимализм с окнами в пол в стиле минимализм с террасой в стиле минимализм с 4 спальнями в стиле минимализм с кабинетом в стиле минимализм с котельной в стиле минимализм элитные в стиле минимализм от 200 до 300 м2 в стиле минимализм с гардеробной в стиле минимализм с ростверкным фундаментом недорогие гостевые из клееного бруса без гаража с плоской крышей и большой террасой с плоской крышей готовые с плоской крышей для постоянного проживания с плоской крышей и окном в ванной комнате с плоской крышей сложной формы с плоской крышей и окнами в пол в гостиной с плоской крышей и окнами до пола с плоской крышей и монолитными перекрытиями с плоской крышей и облицовкой мокрой штукатуркой с плоской крышей кирпичные с плоской крышей и хозяйской гардеробной с плоской крышей и хозяйским санузлом с плоской крышей и кабинетом с плоской крышей и котельной с плоской крышей без сауны Показать все категории Скрыть категории

Похожие проекты
Состав проекта
Входит в стоимость
Цена, руб. Сроки, дней
Комплект архитектурно-строительных чертежей (АС) Входит в стоимость Готов к отправке
Готово к продаже
Цена, руб. Сроки, дней
Паспорт рабочего проекта 5 000 ₽ 3 рабочих дня в корзину
Дополнительная копия проекта формата А3 4 000 ₽ Готов к отправке в корзину
Электронная копия проекта (скан распечатанной версии) 4 000 ₽ 3 рабочих дня в корзину
Разрабатывается отдельно
Цена, руб. Сроки, дней
Адаптация фундамента (изменение типа фундамента) по запросу 14 рабочих дней
Дизайн интерьера (стоимость от 2200руб. за квад.метр площади) по запросу 30 рабочих дней
Внесение изменений в проект по запросу 20 рабочих дней
Инженерные разделы: ВК + ОВ + ЭО 40 000 ₽ 20 рабочих дней в корзину
Зеркалирование проекта (для которого нет зеркальной версии) 8 000 ₽ 5 рабочих дней в корзину
Разработка Генплана участка, в масштабе 1:250 7 500 ₽ 5 рабочих дней в корзину
Фэншуй дома 20 000 ₽ 14 рабочих дней в корзину
Фэншуй участка 15 000 ₽ 14 рабочих дней в корзину
Фэншуй полная консультация дом+участок с выездом на объект 100 000 ₽ 30 рабочих дней в корзину
Опции проекта вы можете заказать в корзине при оформлении заказа
Предложения строителей Выбрать регион
Минимальная
6 681 850 ₽
Стандарт
8 209 130 ₽
Под чистовую отделку
10 690 960 ₽
Показать подробные комплектации
Минимальная
16 227 350 ₽
Стандарт
19 091 000 ₽
Под чистовую отделку
24 818 300 ₽
Показать подробные комплектации
Минимальная
8 919 315 ₽
Стандарт
13 100 244 ₽
Под чистовую отделку
20 625 916 ₽
Показать подробные комплектации
Минимальная
7 649 763 ₽
Стандарт
8 783 769 ₽
Под чистовую отделку
11 246 889 ₽
Показать подробные комплектации
Минимальная
3 744 308 ₽
Стандарт
4 636 736 ₽
Под чистовую отделку
5 580 881 ₽
Показать подробные комплектации
Подбор строительной компании
Не знаете кому доверить строительство дома? Мы можем помочь! Подберем для вас из сотен наших партнеров несколько компаний с лучшем соотношением цена/качество под конкретно ваш запрос.
Подобрать
Посмотреть еще 20 компаний Свернуть
Отзывы покупателей
Рейтинг покупателей
0 / 5 5 5 1
На основе 1 оценок покупателей
0%
0%
0%
0%
0%
Отзывы о проекте D5556
Отзыв о проекте D5556
Чтобы оставить отзыв, пожалуйста авторизуйтесь.
Подбор строительной компании
Не знаете кому доверить строительство дома? Мы можем помочь! Подберем для вас из сотен наших партнеров несколько компаний с лучшем соотношением цена/качество под конкретно ваш запрос.
Подобрать