Главная Проекты домов Проект комфортного одноэтажного дома с косой крышей, большими террасами, панорамным остеклением дневной зоны

D4910 Проект комфортного одноэтажного дома с косой крышей, большими террасами, панорамным остеклением дневной зоны

Сравнить проект В избранное
Технические характеристики
Общие
Материал стен
Кирпич
Общая площадь
187 м²
Жилая площадь
108.98 м²
Площадь застройки
332.0 м²
Приведенная площадь
187.57 м²
Количество жилых комнат/спален
3
Этажи
1 этаж
Гараж
Пристроенный навес
Количество машин
1
Подвал / цокольный этаж
Без подвала
Длина дома
24.81 м
Ширина дома
14.51 м
Кровля
Металлочерепица
Облицовка внешних стен
Мокрая штукатурка
Толщина несущих наружных стен
380 мм
Межэтажные перекрытия
По деревянным балкам
Фундамент
Ленточный монолитный
Терраса
Терраса открытая
Дополнительные
Окна
Окна до пола
,
Панорамные окна
Камин
Есть
Сауна/баня внутри
Нет
Площадь кухни
54.3 м²
Количество санузлов
2
Окно в ванной комнате
Есть
Котельная
Есть
Хозяйский санузел
Есть
Кладовая
1
Длина участка
34.81 м
Ширина участка
20.51 м
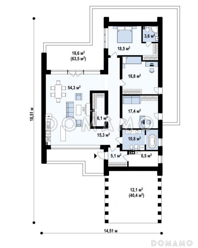
Планы помещений
Описание проекта
Компания Domamo предлагает проект комфортного одноэтажного дома с косой крышей, большими террасами, панорамным остеклением дневной зоны D4910. Общая площадь - 187 м2, размер - 24.81х14.51 м. Фундамент - ленточный монолитный, кровля - металлочерепица, внешняя отделка - мокрая штукатурка. Для заказа проекта или внесения изменений свяжитесь с нами с помощью форм обратной связи на сайте или по телефону +7 (800) 200-28-83.
Категории проекта: с гаражом для постоянного проживания кирпич современные от 100 до 200 кв.м в европейском стиле с террасой из кирпича с террасой готовые загородные из кирпича одноэтажные из кирпича одноэтажные из кирпича с гаражом одноэтажные кирпичные с котельной одноэтажные одноэтажные с гаражом кирпичные с котельной одноэтажные с котельной с котельной кирпичные до 200 кв.м до 200 кв.м загородные с камином прямоугольные с навесом для машины с панорамным остеклением современные кирпичные Проекты одноэтажных домов с террасой Типовые проекты загородных одноэтажных домов с террасой и камином одноэтажные с тремя спальнями Проекты домов с тремя спальнями с гаражом под одной крышей с односкатной крышей одноэтажные с гаражом и террасой с гаражом и террасой с панорамными окнами и террасой одноэтажные до 200 кв м одноэтажные современные одноэтажные с односкатной крышей одноэтажные прямоугольные одноэтажные с панорамными окнами одноэтажные с окнами в пол одноэтажные с камином одноэтажные с 2 санузлами одноэтажные из кирпича с террасой одноэтажные из кирпича с 3 спальнями с односкатной крышей готовые для постоянного проживания с камином без подвала современные с панорамными окнами прямоугольные современные с односкатной крышей современные с панорамными окнами современные с окнами в пол современные с террасой современные от 100 до 200 кв. м европейские с односкатной крышей недорогие с панорамными окнами из клееного бруса без гаража Показать все категории Скрыть категории

Похожие проекты
Состав проекта
Входит в стоимость
Цена, руб. Сроки, дней
Комплект архитектурно-строительных чертежей (АС) Входит в стоимость 33 рабочих дня
Готово к продаже
Цена, руб. Сроки, дней
Паспорт рабочего проекта 8 000 ₽ 33 рабочих дня в корзину
Инженерные разделы: ВК + ОВ + ЭО 27 630 ₽ 33 рабочих дня в корзину
Дополнительная копия проекта формата А3 6 500 ₽ 33 рабочих дня в корзину
Электронная копия проекта (скан распечатанной версии) 4 000 ₽ 3 рабочих дня в корзину
Разрабатывается отдельно
Цена, руб. Сроки, дней
Адаптация фундамента (изменение типа фундамента) по запросу 14 рабочих дней
Дизайн интерьера (стоимость от 2200руб. за квад.метр площади) по запросу 30 рабочих дней
Внесение изменений в проект по запросу 20 рабочих дней
Разработка Генплана участка, в масштабе 1:250 7 500 ₽ 33 рабочих дня в корзину
Фэншуй дома 20 000 ₽ 14 рабочих дней в корзину
Фэншуй участка 15 000 ₽ 14 рабочих дней в корзину
Фэншуй полная консультация дом+участок с выездом на объект 100 000 ₽ 30 рабочих дней в корзину
Опции проекта вы можете заказать в корзине при оформлении заказа
Предложения строителей Выбрать регион
Минимальная
6 564 950 ₽
Стандарт
8 065 510 ₽
Под чистовую отделку
10 503 920 ₽
Показать подробные комплектации
Минимальная
15 943 450 ₽
Стандарт
18 757 000 ₽
Под чистовую отделку
24 384 100 ₽
Показать подробные комплектации
Минимальная
8 763 270 ₽
Стандарт
12 871 053 ₽
Под чистовую отделку
20 265 062 ₽
Показать подробные комплектации
Минимальная
7 515 929 ₽
Стандарт
8 630 095 ₽
Под чистовую отделку
11 050 123 ₽
Показать подробные комплектации
Минимальная
3 678 801 ₽
Стандарт
4 555 615 ₽
Под чистовую отделку
5 483 243 ₽
Показать подробные комплектации
Подбор строительной компании
Не знаете кому доверить строительство дома? Мы можем помочь! Подберем для вас из сотен наших партнеров несколько компаний с лучшем соотношением цена/качество под конкретно ваш запрос.
Подобрать
Посмотреть еще 20 компаний Свернуть
Отзывы покупателей
Рейтинг покупателей
0 / 5 5 5 1
На основе 1 оценок покупателей
0%
0%
0%
0%
0%
Отзывы о проекте D4910
Отзыв о проекте D4910
Чтобы оставить отзыв, пожалуйста авторизуйтесь.
Подбор строительной компании
Не знаете кому доверить строительство дома? Мы можем помочь! Подберем для вас из сотен наших партнеров несколько компаний с лучшем соотношением цена/качество под конкретно ваш запрос.
Подобрать