Главная Проекты домов Проект простого комфортного двухэтажного дома из кирпича со вторым светом, тремя спальнями и гаражом

D4310 Проект простого комфортного двухэтажного дома из кирпича со вторым светом, тремя спальнями и гаражом

Сравнить проект В избранное
Технические характеристики
Общие
Материал стен
Кирпич
Общая площадь
206 м²
Площадь застройки
201 м²
Приведенная площадь
208.1 м²
Количество жилых комнат/спален
4
Этажи
2 этажа
Гараж
Встроенный гараж
Количество машин
1
Подвал / цокольный этаж
Без подвала
Длина дома
11.11 м
Ширина дома
11.61 м
Высота в коньке
8.94 м
Кровля
Металлочерепица
Облицовка внешних стен
Мокрая штукатурка
,
Фасадные панели
Толщина несущих наружных стен
380 мм
Межэтажные перекрытия
Монолитные
Внутренние не несущие перегородки
Кирпичные
Фундамент
Ленточный заглубленный из ФБС
Терраса
Терраса открытая
Дополнительные
Окна
Окна до пола
Второй свет
Есть
Камин
Есть
Площадь гостиной
20 м²
Площадь кухни
15.7 м²
Количество санузлов
2
Окно в ванной комнате
Есть
Котельная
Есть
Кабинет
Есть
Постирочная
Есть
Кладовая
1
Длина участка
18.95 м
Ширина участка
19.45 м
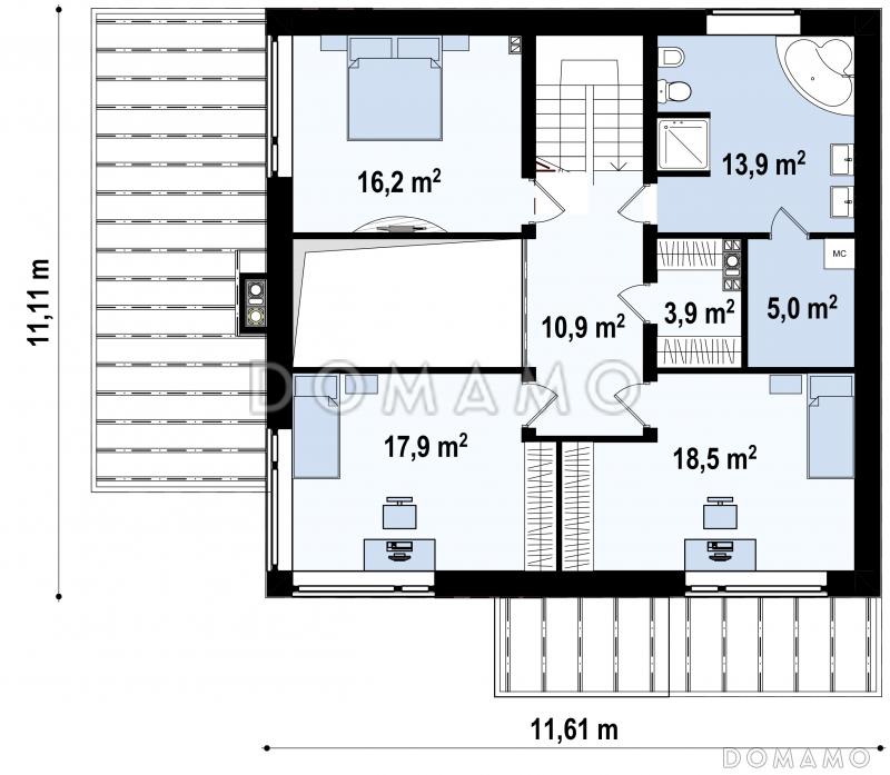
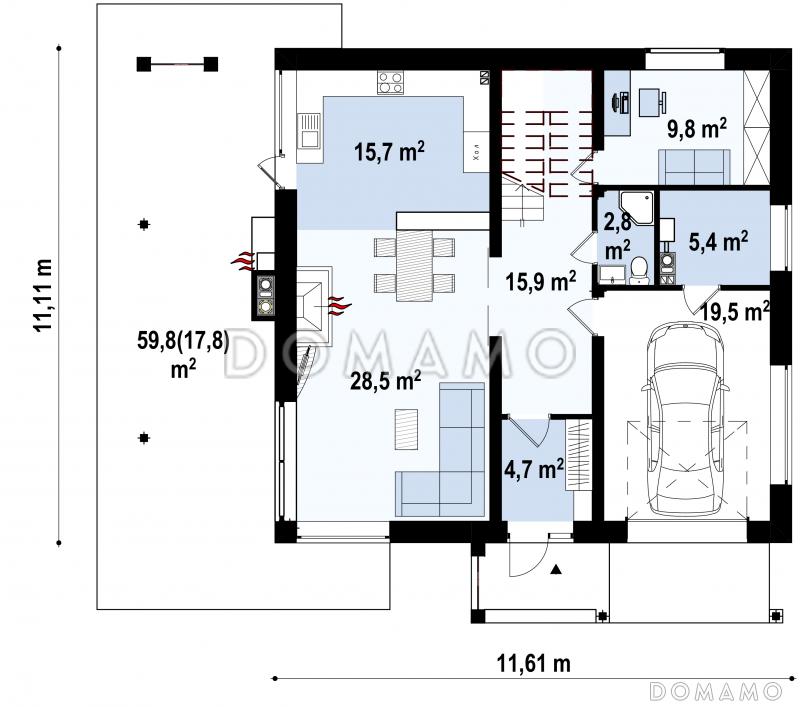
Планы помещений
Описание проекта
Компания Domamo предлагает проект простого комфортного двухэтажного дома из кирпича со вторым светом, тремя спальнями и гаражом D4310. Общая площадь - 206 м2, размер - 11.11х11.61 м. Фундамент - ленточный заглубленный из фбс, кровля - металлочерепица, внешняя отделка - фасадные панели мокрая штукатурка. Для заказа проекта или внесения изменений свяжитесь с нами с помощью форм обратной связи на сайте или по телефону +7 (800) 200-28-83.
Категории проекта: с гаражом для постоянного проживания кирпич в классическом стиле от 200 до 300 кв.м кирпичные дома хай-тек классические кирпичные дома дома из кирпича с гаражом с террасой из кирпича с террасой готовые загородные из кирпича двухэтажные из кирпича двухэтажные кирпичные с гаражом двухэтажные двухэтажные с гаражом кирпичные с котельной с котельной со вторым светом 9х12 загородные с четырехскатной крышей с камином квадратные с барбекю со встроенным гаражом 10х12 Проекты двухэтажных домов с террасой Проекты двухэтажных домов с верандой с террасой и камином с кабинетом с гаражом под одной крышей двухэтажные 10 на 12 с гаражом и террасой двухэтажные с террасой и гаражом с 4 спальнями от 200 до 250 м двухэтажные с камином двухэтажные со вторым светом двухэтажные с 4 спальнями двухэтажные в классическом стиле классические для постоянного проживания классические с гаражом классические с 4 спальнями классические с окнами в пол классические с террасой классические готовые классические с котельной классические с большой кухней классические без подвала классические с 2 санузлами классические с прачечной классические со вторым светом классические квадратные классические с камином классические с четырехскатной крышей классические с кабинетом из клееного бруса без гаража Показать все категории Скрыть категории

Похожие проекты
Состав проекта
Входит в стоимость
Цена, руб. Сроки, дней
Комплект архитектурно-строительных чертежей (АС) Входит в стоимость 33 рабочих дня
Готово к продаже
Цена, руб. Сроки, дней
Паспорт рабочего проекта 8 000 ₽ 33 рабочих дня в корзину
Дополнительная копия проекта формата А3 6 500 ₽ 33 рабочих дня в корзину
Электронная копия проекта (скан распечатанной версии) 4 000 ₽ 3 рабочих дня в корзину
Разрабатывается отдельно
Цена, руб. Сроки, дней
Адаптация фундамента (изменение типа фундамента) по запросу 14 рабочих дней
Дизайн интерьера (стоимость от 2200руб. за квад.метр площади) по запросу 30 рабочих дней
Внесение изменений в проект по запросу 20 рабочих дней
Инженерные разделы: ВК + ОВ + ЭО 29 610 ₽ 33 рабочих дня в корзину
Разработка Генплана участка, в масштабе 1:250 7 500 ₽ 33 рабочих дня в корзину
Фэншуй дома 20 000 ₽ 14 рабочих дней в корзину
Фэншуй участка 15 000 ₽ 14 рабочих дней в корзину
Фэншуй полная консультация дом+участок с выездом на объект 100 000 ₽ 30 рабочих дней в корзину
Опции проекта вы можете заказать в корзине при оформлении заказа
Варианты проекта Сравнить все варианты
Избранные проекты
Избранные строители
Предложения строителей Выбрать регион
Минимальная
7 283 500 ₽
Стандарт
8 948 300 ₽
Под чистовую отделку
11 653 600 ₽
Показать подробные комплектации
Минимальная
17 688 500 ₽
Стандарт
20 810 000 ₽
Под чистовую отделку
27 053 000 ₽
Показать подробные комплектации
Минимальная
9 722 432 ₽
Стандарт
14 279 822 ₽
Под чистовую отделку
22 483 124 ₽
Показать подробные комплектации
Минимальная
8 338 567 ₽
Стандарт
9 574 681 ₽
Под чистовую отделку
12 259 587 ₽
Показать подробные комплектации
Минимальная
4 081 454 ₽
Стандарт
5 054 239 ₽
Под чистовую отделку
6 083 397 ₽
Показать подробные комплектации
Подбор строительной компании
Не знаете кому доверить строительство дома? Мы можем помочь! Подберем для вас из сотен наших партнеров несколько компаний с лучшем соотношением цена/качество под конкретно ваш запрос.
Подобрать
Посмотреть еще 20 компаний Свернуть
Отзывы покупателей
Рейтинг покупателей
0 / 5 5 5 1
На основе 1 оценок покупателей
0%
0%
0%
0%
0%
Отзывы о проекте D4310
Отзыв о проекте D4310
Чтобы оставить отзыв, пожалуйста авторизуйтесь.
Подбор строительной компании
Не знаете кому доверить строительство дома? Мы можем помочь! Подберем для вас из сотен наших партнеров несколько компаний с лучшем соотношением цена/качество под конкретно ваш запрос.
Подобрать