Главная Проекты домов Проект небольшого одноэтажного дома из кирпича с двумя спальнями и террасой

D4079 Проект небольшого одноэтажного дома из кирпича с двумя спальнями и террасой

Сравнить проект В избранное
Технические характеристики
Общие
Материал стен
Кирпич
Общая площадь
70 м²
Площадь застройки
86.8 м²
Приведенная площадь
75.3 м²
Количество жилых комнат/спален
2
Этажи
1 этаж
Гараж
Нет гаража
Подвал / цокольный этаж
Без подвала
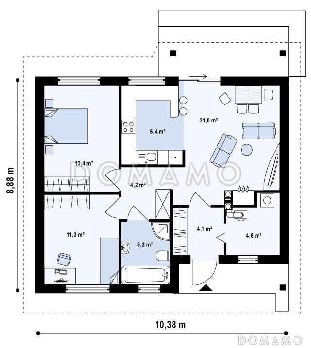
Длина дома
8.88 м
Ширина дома
10.38 м
Высота в коньке
5.67 м
Кровля
Металлочерепица
Облицовка внешних стен
Деревянная вагонка
,
Мокрая штукатурка
Толщина несущих наружных стен
380 мм
Межэтажные перекрытия
По деревянным балкам
Внутренние не несущие перегородки
Кирпичные
Фундамент
Ленточный заглубленный из ФБС
Терраса
Терраса крытая
Дополнительные
Окна
Окна до пола
Камин
Есть
Сауна/баня внутри
Нет
Площадь гостиной
21 м²
Площадь кухни
6.4 м²
Количество санузлов
1
Окно в ванной комнате
Есть
Котельная
Есть
Кладовая
1
Длина участка
16.88 м
Ширина участка
16.38 м
Планы помещений
Фасады
Описание проекта
Компания Domamo предлагает проект небольшого одноэтажного дома из кирпича с двумя спальнями и террасой D4079. Общая площадь - 70 м2, размер - 8.88х10.38 м. Фундамент - ленточный заглубленный из фбс, кровля - металлочерепица, внешняя отделка - деревянная вагонка мокрая штукатурка. Для заказа проекта или внесения изменений свяжитесь с нами с помощью форм обратной связи на сайте или по телефону +7 (800) 200-28-83.
Категории проекта: для постоянного проживания кирпич до 100 кв.м кирпичные европейские дома с террасой из кирпича с террасой готовые в стиле минимализм загородные из кирпича одноэтажные из кирпича одноэтажные кирпичные с котельной одноэтажные кирпичные с котельной одноэтажные с котельной с котельной с двухскатной крышей 6х10 9х10 9х12 загородные с камином прямоугольные Проекты одноэтажных домов с террасой Типовые проекты загородных одноэтажных домов без гаража одноэтажные без гаража с террасой и камином маленькие одноэтажные с 2 спальнями маленькие одноэтажные одноэтажные до 80 кв м до 140 кв м до 130 кв м одноэтажные в стиле минимализм одноэтажные с двухскатной крышей одноэтажные прямоугольные одноэтажные с окнами в пол одноэтажные с камином одноэтажные 9х10 одноэтажные до 180 м2 маленькие одноэтажные для постоянного проживания маленькие одноэтажные с террасой маленькие одноэтажные из кирпича одноэтажные из кирпича с террасой одноэтажные из кирпича с двухскатной крышей одноэтажные из кирпича до 80 м2 одноэтажные из кирпича с 2 спальнями готовые для постоянного проживания с камином без гаража без подвала в стиле минимализм прямоугольные до 100 кв.м для постоянного проживания до 100 кв.м с террасой до 100 кв.м с котельной до 100 кв.м с окнами в пол до 100 кв.м прямоугольные до 100 кв.м с камином до 100 кв.м в стиле минимализм до 100 кв.м с двухскатной крышей до 100 кв.м с двумя спальнями до 120 кв.м кирпичные до 120 кв.м готовые до 120 кв.м для постоянного проживания до 120 кв.м без гаража до 120 кв.м с двухскатной крышей до 120 кв.м с окнами в пол до 120 кв.м с террасой до 120 кв.м минимализм до 120 кв.м с котельной до 120 кв.м с 2 спальнями до 120 кв.м прямоугольные маленькие в стиле минимализм маленькие с террасой маленькие для постоянного проживания маленькие готовые маленькие прямоугольные маленькие с окнами до пола маленькие с двухскатной крышей маленькие с камином маленькие без бани маленькие с 2 спальнями в стиле минимализм для постоянного проживания в стиле минимализм без гаража в стиле минимализм прямоугольные в стиле минимализм с двухскатной крышей в стиле минимализм с окнами в пол в стиле минимализм с террасой в стиле минимализм с котельной в стиле минимализм с камином в стиле минимализм небольшие в стиле минимализм с ленточным фундаментом из клееного бруса без гаража Показать все категории Скрыть категории

Похожие проекты
Состав проекта
Входит в стоимость
Цена, руб. Сроки, дней
Комплект архитектурно-строительных чертежей (АС) Входит в стоимость 33 рабочих дня
Готово к продаже
Цена, руб. Сроки, дней
Паспорт рабочего проекта 8 000 ₽ 5 рабочих дней в корзину
Дополнительная копия проекта формата А3 6 500 ₽ 5 рабочих дней в корзину
Электронная копия проекта (скан распечатанной версии) 4 000 ₽ 3 рабочих дня в корзину
Разрабатывается отдельно
Цена, руб. Сроки, дней
Адаптация фундамента (изменение типа фундамента) по запросу 14 рабочих дней
Дизайн интерьера (стоимость от 2200руб. за квад.метр площади) по запросу 30 рабочих дней
Внесение изменений в проект по запросу 20 рабочих дней
Инженерные разделы: ВК + ОВ + ЭО 21 690 ₽ 33 рабочих дня в корзину
Инженерные разделы: ВК + ОВ по запросу Готов к отправке
Разработка Генплана участка, в масштабе 1:250 7 500 ₽ 15 рабочих дней в корзину
Фэншуй дома 20 000 ₽ 14 рабочих дней в корзину
Фэншуй участка 15 000 ₽ 14 рабочих дней в корзину
Фэншуй полная консультация дом+участок с выездом на объект 100 000 ₽ 30 рабочих дней в корзину
Опции проекта вы можете заказать в корзине при оформлении заказа
Предложения строителей Выбрать регион
Минимальная
2 635 500 ₽
Стандарт
3 237 900 ₽
Под чистовую отделку
4 216 800 ₽
Показать подробные комплектации
Минимальная
7 680 600 ₽
Стандарт
9 036 000 ₽
Под чистовую отделку
11 746 800 ₽
Показать подробные комплектации
Минимальная
4 096 320 ₽
Стандарт
6 016 470 ₽
Под чистовую отделку
9 472 740 ₽
Показать подробные комплектации
Минимальная
3 318 998 ₽
Стандарт
3 811 008 ₽
Под чистовую отделку
4 879 680 ₽
Показать подробные комплектации
Минимальная
1 898 813 ₽
Стандарт
2 351 381 ₽
Под чистовую отделку
2 830 176 ₽
Показать подробные комплектации
Подбор строительной компании
Не знаете кому доверить строительство дома? Мы можем помочь! Подберем для вас из сотен наших партнеров несколько компаний с лучшем соотношением цена/качество под конкретно ваш запрос.
Подобрать
Посмотреть еще 20 компаний Свернуть
Отзывы покупателей
Рейтинг покупателей
0 / 5 5 5 1
На основе 1 оценок покупателей
0%
0%
0%
0%
0%
Отзывы о проекте D4079
Отзыв о проекте D4079
Чтобы оставить отзыв, пожалуйста авторизуйтесь.
Подбор строительной компании
Не знаете кому доверить строительство дома? Мы можем помочь! Подберем для вас из сотен наших партнеров несколько компаний с лучшем соотношением цена/качество под конкретно ваш запрос.
Подобрать