Главная Проекты домов Проект коттеджа из СИП панелей в стиле шале

D4385 Проект коттеджа из СИП панелей в стиле шале

Сравнить проект В избранное
Проект коттеджа из СИП панелей в стиле шале / 1
Проект коттеджа из СИП панелей в стиле шале / 2
Проект коттеджа из СИП панелей в стиле шале / 1
Проект коттеджа из СИП панелей в стиле шале / 2
D4385
130 м²
Подготовка проекта:
25 рабочих дней
Стоимость проекта
Купить проект
Задайте вопросы по проекту нашему архитектору
8 (800) 200-28-83
Время работы: пн-вс: с 9:00 до 20:00
Задать вопрос по проекту

Технические характеристики
Общие
Материал стен
SIP
Общая площадь
130 м²
Жилая площадь
89.2 м²
Площадь застройки
112.4 м²
Приведенная площадь
137.06 м²
Количество жилых комнат/спален
4
Этажи
1 этаж + мансарда
Гараж
Нет гаража
Подвал / цокольный этаж
Без подвала
Длина дома
11.7 м
Ширина дома
11.3 м
Высота в коньке
8.0 м
Кровля
Гибкая черепица
Облицовка внешних стен
Деревянная вагонка
,
Мокрая штукатурка
Толщина несущих наружных стен
375 мм
Межэтажные перекрытия
По деревянным балкам
Внутренние не несущие перегородки
Каркасно-обшивные
Фундамент
Свайный
Терраса
Терраса крытая
Дополнительные
Камин
Есть
Сауна/баня внутри
Нет
Площадь гостиной
25 м²
Площадь кухни
10.2 м²
Количество санузлов
2
Котельная
Есть
Кладовая
1
Балкон / лоджия
Балкон
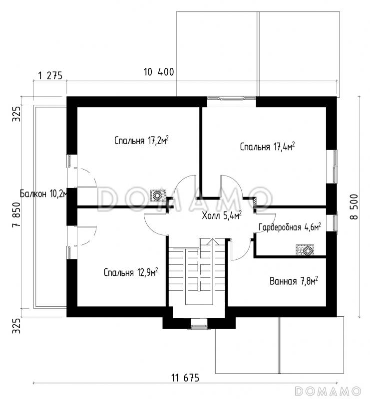
Планы помещений
Фасады
Описание проекта

Этот дом, помимо продуманного внутреннего наполнения, примечателен просторными наружными помещениями — крыльцом, большой террасой и балконом на всю длину фасада. Характерная черта шале — выступающие свесы крыши, защищающие стены дома от осадков и дополнительное укрытие от непогоды. Большую часть первого этажа занимает просторная кухня-гостиная с трехсторонним естественным светом и выходом на террасу. Входной блок — тамбур, прихожая, санузел и котельная с отдельным входом с крыльца. Имеется также гостевая спальня. На втором этаже — три спальни и гардеробная комната. Из двух спален есть выход на балкон.

Стены и 1 , и 2 этажей - из газобетонных блоков толщиной 375 мм.

Имеется зеркальный вариант проекта.

Имеется вариант проекта со стенами второго, мансардного этажа в деревянном каркасе с утеплением и обшивкой снаружи "под брус".

Категории проекта: с мансардой для постоянного проживания шале из сип панелей по технологии Velox от 100 до 200 кв.м с эркером с террасой готовые одноэтажные с мансардой одноэтажные до 150 кв. м. одноэтажные с котельной с котельной из сип панелей с мансардой до 150 кв.м до 200 кв.м с двухскатной крышей 9х12 загородные с камином прямоугольные с балконом 10х12 с эркером и мансардой Проекты одноэтажных домов из сип панелей Проекты одноэтажных домов с эркером Проекты одноэтажных домов с террасой Типовые проекты загородных одноэтажных домов без гаража одноэтажные без гаража с террасой и камином одноэтажные с 4 спальнями с мансардой до 150 кв м с мансардой и террасой полутораэтажные с 4 спальнями 9 на 12 с мансардой одноэтажные до 200 кв м до 140 кв м 10x12 с мансардой до 130 кв м с балконом и террасой с мансардой с котельной с мансардой с камином с мансардой с двухскатной крышей с мансардой шале с мансардой с балконом с мансардой прямоугольные с мансардой готовые с мансардой для постоянного проживания с мансардой до 200 кв.м с мансардой от 100 до 150 кв.м одноэтажные с мансардой из SIP-панелей одноэтажные с мансардой для постоянного проживания одноэтажные с мансардой в стиле шале одноэтажные с мансардой с балконом до 150 кв.м из SIP-панелей до 150 кв.м для постоянного проживания до 150 кв.м без гаража до 150 кв.м с двухскатной крышей до 150 кв.м готовые до 150 кв.м с балконом до 150 кв.м прямоугольные до 150 кв.м с котельной до 150 кв.м без бани до 150 кв.м с террасой до 150 кв.м без подвала до 150 кв.м с 4 спальнями до 150 кв.м с камином из клееного бруса без гаража Показать все категории Скрыть категории

Похожие проекты
Состав проекта
Входит в стоимость
Цена, руб. Сроки, дней
Комплект архитектурно-строительных чертежей (АС) Входит в стоимость 25 рабочих дней
Готово к продаже
Цена, руб. Сроки, дней
Электронная копия проекта (скан распечатанной версии) 4 000 ₽ 3 рабочих дня в корзину
Разрабатывается отдельно
Цена, руб. Сроки, дней
Адаптация фундамента (изменение типа фундамента) по запросу 14 рабочих дней
Дизайн интерьера (стоимость от 2200руб. за квад.метр площади) по запросу 30 рабочих дней
Внесение изменений в проект по запросу 20 рабочих дней
Фэншуй дома 20 000 ₽ 14 рабочих дней в корзину
Фэншуй участка 15 000 ₽ 14 рабочих дней в корзину
Фэншуй полная консультация дом+участок с выездом на объект 100 000 ₽ 30 рабочих дней в корзину
Опции проекта вы можете заказать в корзине при оформлении заказа
Предложения строителей Выбрать регион
Минимальная
3 974 740 ₽
Стандарт
4 385 920 ₽
Под чистовую отделку
7 127 120 ₽
Показать подробные комплектации
Отзывы покупателей
Рейтинг покупателей
0 / 5 5 5 1
На основе 1 оценок покупателей
0%
0%
0%
0%
0%
Отзывы о проекте D4385
Отзыв о проекте D4385
Чтобы оставить отзыв, пожалуйста авторизуйтесь.
Подбор строительной компании
Не знаете кому доверить строительство дома? Мы можем помочь! Подберем для вас из сотен наших партнеров несколько компаний с лучшем соотношением цена/качество под конкретно ваш запрос.
Подобрать