Главная Проекты домов Проект просторного одноэтажного дома из кирпича с большой гостиной, тремя спальнями, кабинетом и гаражом на два автомобиля

D1860 Проект просторного одноэтажного дома из кирпича с большой гостиной, тремя спальнями, кабинетом и гаражом на два автомобиля

Сравнить проект В избранное
Технические характеристики
Общие
Материал стен
Кирпич
Общая площадь
193 м²
Площадь застройки
365.2 м²
Приведенная площадь
224.44 м²
Количество жилых комнат/спален
4
Этажи
1 этаж
Гараж
Пристроенный гараж
Количество машин
2
Подвал / цокольный этаж
Без подвала
Длина дома
18.41 м
Ширина дома
16.61 м
Высота в коньке
6.93 м
Кровля
Металлочерепица
Облицовка внешних стен
Мокрая штукатурка
,
Облицовочный кирпич
Толщина несущих наружных стен
380 мм
Межэтажные перекрытия
По деревянным балкам
Внутренние не несущие перегородки
Кирпичные
Фундамент
Cборно-монолитный
Терраса
Терраса открытая
,
Терраса крытая
Дополнительные
Окна
Окна до пола
Камин
Есть
Сауна/баня внутри
Нет
Площадь гостиной
32.2 м²
Площадь кухни
14.9 м²
Количество санузлов
3
Окно в ванной комнате
Есть
Котельная
Есть
Кабинет
Есть
Хозяйский санузел
Есть
Хозяйская гардеробная
Есть
Кладовая
4
Длина участка
28.41 м
Ширина участка
22.61 м
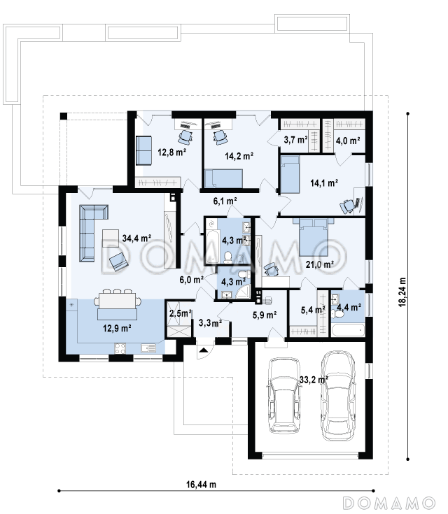
Планы помещений
Описание проекта
Компания Domamo предлагает проект просторного одноэтажного дома из кирпича с большой гостиной, тремя спальнями, кабинетом и гаражом на два автомобиля D1860. Общая площадь - 193 м2, размер - 18.41х16.61 м. Фундамент - cборно-монолитный, кровля - металлочерепица, внешняя отделка - облицовочный кирпич мокрая штукатурка. Для заказа проекта или внесения изменений свяжитесь с нами с помощью форм обратной связи на сайте или по телефону +7 (800) 200-28-83.
Категории проекта: с гаражом для постоянного проживания кирпич в классическом стиле от 100 до 200 кв.м от 200 до 300 кв.м кирпичные дома хай-тек классические кирпичные дома дома из кирпича с гаражом с террасой из кирпича с террасой готовые загородные из кирпича одноэтажные из кирпича одноэтажные из кирпича с гаражом одноэтажные кирпичные с котельной одноэтажные одноэтажные с гаражом кирпичные с котельной одноэтажные с котельной с котельной загородные с четырехскатной крышей с камином с гардеробной угловые Проекты одноэтажных домов с террасой Типовые проекты загородных одноэтажных домов с террасой и камином облицованные кирпичом с кабинетом с гаражом под одной крышей одноэтажные с 4 спальнями одноэтажные с гаражом и террасой с гаражом на 2 машины с гаражом и террасой с 4 спальнями г-образные от 200 до 250 м одноэтажные в классическом стиле одноэтажные с четырехскатной крышей одноэтажные с окнами в пол одноэтажные с камином одноэтажные с кабинетом одноэтажные из кирпича с террасой одноэтажные из кирпича с 4 спальнями с четырехскатной крышей готовые для постоянного проживания с камином с гаражом на 2 машины без подвала классический стиль угловые с большой гостиной классические для постоянного проживания классические с гаражом классические с гаражом на 2 машины классические с 4 спальнями классические с окнами в пол классические с террасой классические готовые классические с котельной классические без подвала классические угловые классические с камином классические с четырехскатной крышей классические с кабинетом из клееного бруса без гаража Показать все категории Скрыть категории

Похожие проекты
Состав проекта
Входит в стоимость
Цена, руб. Сроки, дней
Комплект архитектурно-строительных чертежей (АС) Входит в стоимость 33 рабочих дня
Готово к продаже
Цена, руб. Сроки, дней
Паспорт рабочего проекта 8 000 ₽ 33 рабочих дня в корзину
Инженерные разделы: ВК + ОВ + ЭО 25 840 ₽ 33 рабочих дня в корзину
Дополнительная копия проекта формата А3 6 500 ₽ 33 рабочих дня в корзину
Электронная копия проекта (скан распечатанной версии) 4 000 ₽ 33 рабочих дня в корзину
Разрабатывается отдельно
Цена, руб. Сроки, дней
Адаптация фундамента (изменение типа фундамента) по запросу 14 рабочих дней
Дизайн интерьера (стоимость от 2200руб. за квад.метр площади) по запросу 30 рабочих дней
Внесение изменений в проект по запросу 20 рабочих дней
Разработка Генплана участка, в масштабе 1:250 7 500 ₽ 15 рабочих дней в корзину
Фэншуй дома 20 000 ₽ 14 рабочих дней в корзину
Фэншуй участка 15 000 ₽ 14 рабочих дней в корзину
Фэншуй полная консультация дом+участок с выездом на объект 100 000 ₽ 30 рабочих дней в корзину
Опции проекта вы можете заказать в корзине при оформлении заказа
Варианты проекта Сравнить все варианты
Избранные проекты
Избранные строители
Предложения строителей Выбрать регион
Минимальная
7 855 400 ₽
Стандарт
9 650 920 ₽
Под чистовую отделку
12 568 640 ₽
Показать подробные комплектации
Минимальная
18 886 626 ₽
Стандарт
22 219 560 ₽
Под чистовую отделку
28 885 428 ₽
Показать подробные комплектации
Минимальная
9 911 270 ₽
Стандарт
14 557 178 ₽
Под чистовую отделку
22 919 812 ₽
Показать подробные комплектации
Минимальная
8 993 310 ₽
Стандарт
10 326 484 ₽
Под чистовую отделку
13 222 209 ₽
Показать подробные комплектации
Минимальная
4 192 314 ₽
Стандарт
5 191 521 ₽
Под чистовую отделку
6 248 634 ₽
Показать подробные комплектации
Подбор строительной компании
Не знаете кому доверить строительство дома? Мы можем помочь! Подберем для вас из сотен наших партнеров несколько компаний с лучшем соотношением цена/качество под конкретно ваш запрос.
Подобрать
Посмотреть еще 20 компаний Свернуть
Отзывы покупателей
Рейтинг покупателей
0 / 5 5 5 1
На основе 1 оценок покупателей
0%
0%
0%
0%
0%
Отзывы о проекте D1860
Отзыв о проекте D1860
Чтобы оставить отзыв, пожалуйста авторизуйтесь.
Подбор строительной компании
Не знаете кому доверить строительство дома? Мы можем помочь! Подберем для вас из сотен наших партнеров несколько компаний с лучшем соотношением цена/качество под конкретно ваш запрос.
Подобрать