Главная Проекты бани Баня из клееного бруса с панорамными окнами в комнате отдыха

D327 Баня из клееного бруса с панорамными окнами в комнате отдыха

Сравнить проект В избранное
Баня из клееного бруса с панорамными окнами в комнате отдыха / 1
Баня из клееного бруса с панорамными окнами в комнате отдыха / 1
D327
84 м²
Проект с подрядом
Артикул проекта: БАНЯ 84
Компания: Ecohouse Group
Стоимость строительства
2 530 000 ₽
Заказать подробную смету
+7 (812) XXX-XX-XX Показать телефон
Задать вопрос по проекту
Технические характеристики
Общие
Материал стен
Клееный брус
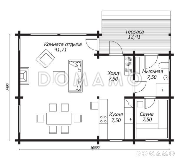
Общая площадь
84 м²
Приведенная площадь
75.42 м²
Этажи
1 этаж
Гараж
Нет гаража
Подвал / цокольный этаж
Без подвала
Длина дома
10.5 м
Ширина дома
7.4 м
Облицовка внешних стен
Без облицовки
Толщина несущих наружных стен
160 мм
Межэтажные перекрытия
По деревянным балкам
Внутренние не несущие перегородки
Каркасно-обшивные
Терраса
Терраса крытая
Дополнительные
Окна
Окна до пола
,
Панорамные окна
Сауна/баня внутри
Есть
Площадь кухни
7.5 м²
Количество санузлов
1
Окно в ванной комнате
Есть
Планы помещений

Похожие проекты
Состав проекта
Входит в стоимость
Цена, руб. Сроки, дней
Комплект архитектурно-строительных чертежей (АС) Входит в стоимость Готов к отправке
Разрабатывается отдельно
Цена, руб. Сроки, дней
Адаптация фундамента (изменение типа фундамента) по запросу 14 рабочих дней
Дизайн интерьера (стоимость от 2200руб. за квад.метр площади) по запросу 30 рабочих дней
Внесение изменений в проект по запросу 20 рабочих дней
Фэншуй дома 20 000 ₽ 14 рабочих дней в корзину
Фэншуй участка 15 000 ₽ 14 рабочих дней в корзину
Фэншуй полная консультация дом+участок с выездом на объект 100 000 ₽ 30 рабочих дней в корзину
Опции проекта вы можете заказать в корзине при оформлении заказа
Комплектации
Отзывы покупателей
Рейтинг покупателей
0 / 5 5 5 1
На основе 1 оценок покупателей
0%
0%
0%
0%
0%
Отзывы о проекте D327
Отзыв о проекте D327
Чтобы оставить отзыв, пожалуйста авторизуйтесь.
Подбор строительной компании
Не знаете кому доверить строительство дома? Мы можем помочь! Подберем для вас из сотен наших партнеров несколько компаний с лучшем соотношением цена/качество под конкретно ваш запрос.
Подобрать